

Site Plan

<하온이의 집>이 있는 경기도 양평은, 거주민들이 서울로 출퇴근하기도 가깝고 여가시간과 주말에는 온전히 자연을 즐길 수 있는 지역이다. 하온의 가족은 경치가 좋은 양평의 전원주택지역에 땅을 샀다. 그들은 육아를 위해 재택근무를 하게 된 엄마의 작업공간과 상상력이 풍부한 4살 아이를 위한 놀이공간이 포함된 집을 원했다.


Elevation

Elevation


한국의 전형적인 가정은 부부와 조부모, 아이들 3대로 구성되어 왔다. 그러나 시간이 지나며 자녀들은 독립하고, 부부만 남거나 한 부모와 자녀, 혼자 사는 1인 가구, 혹은 개나 고양이도 가족의 범주에 들어오고 있다. ‘집’이라는 고정된 공간이 그런 변화를 어떻게 받아들일 수 있을까? ‘집’과 ‘가족’은 인건의 삶에 있어 가장 기본이 되는 배경이다. 나는 그 두 개의 명사가 인간의 최후의 보루라고 생각한다. 그러나 세상의 모든 것은 변한다. 변화는 우리가 선택할 문제가 아니다. 그런 변화에 대한 두려움을 당연한 것으로 받아들이고, 달라진 라이프스타일에 대응하는 집을 설계하는 해법을 찾는 것은 무척 어렵지만 또한 즐거운 일이다.


Section


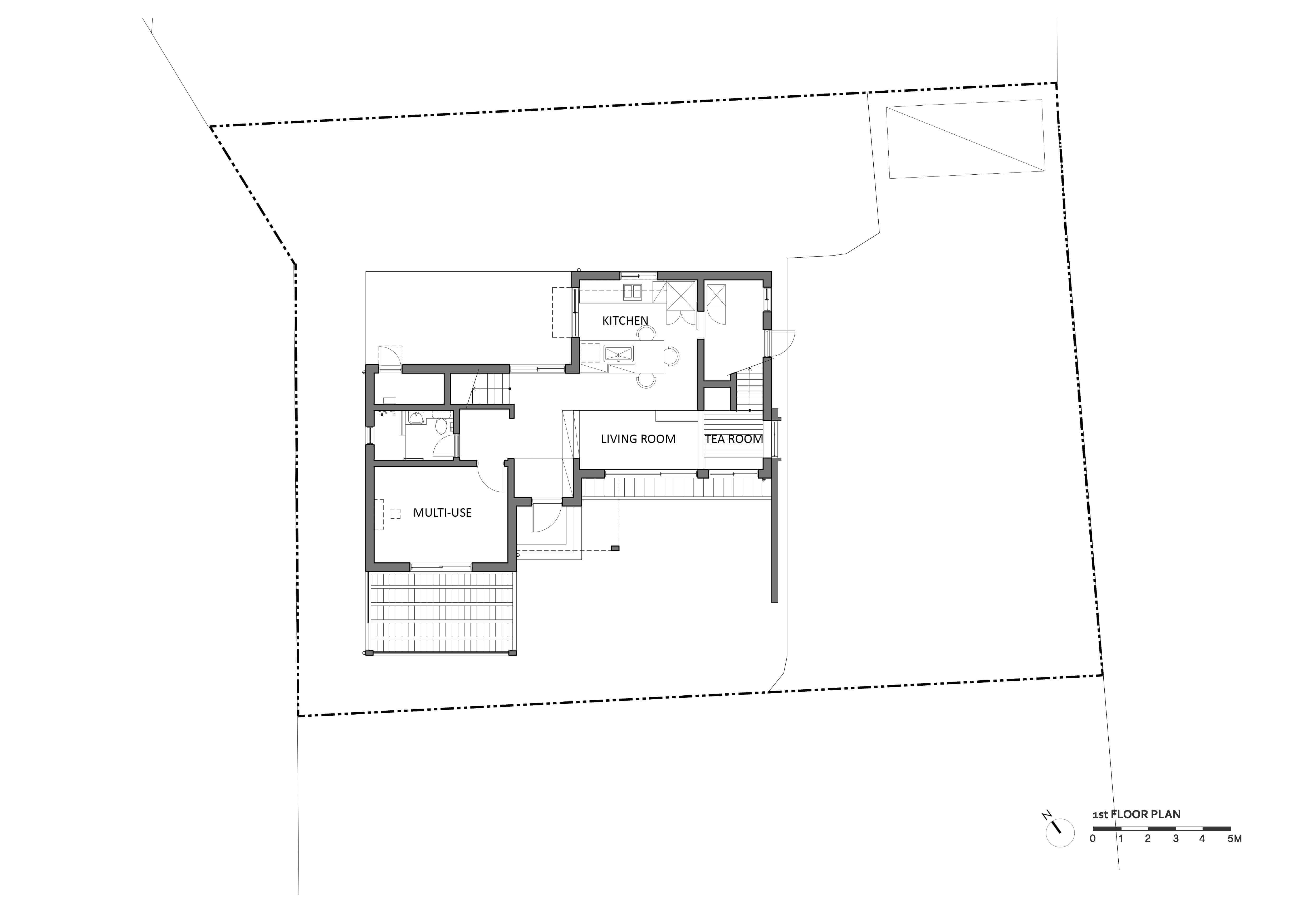
가족 구성원의 수가 만았던 과거에는, 거실이 집의 중심으로서 무척 중요한 공간이었다. 손님 접대도 주로 거실에서 이루어졌다. 그러나 요즘은 주방이 가사의 중심이자 가족들이 모이는 가장 중요한 공간이 되었다. 집을 설계할 때 실을 없애고 가족 구성원 각각의 활동을 위한 별개의 방을 배치하는 경우도 늘어나고 있다. 이 집에서도 주방과 식당은 거의 집의 중심이라 할 수 있다. 주방은 거실이나 마당, 다락, 손님방 등 모든 공간과 연결되어 있다. 그리고 하온의 아버지는 ‘안전한 집’을 원했다. 안전한 집이띾 무엇인가. 먼저 집은 태풍이나 폭우, 더위와 추위 같은 자연이나 혹은 타인의 위협으로부터 인간을 보호해야 한다.



Plan _ 1F

그런 외부의 문제와 더불어, 현대사회에서는 가족 내부의 문제 또한 생각해보아야 한다. 나와는 다른 존재가 함께 살기 때문에, 각자의 개성이 충돌할 때 문제가 시작된다. 예측할 수 없는 그런 변화에 대한 막연한 두려움으로부터도 안전한 집을 과연 만들 수 있을까? 우리는 가장 먼저 집 주위로 여러 개의 겹을 만들어, 그것이 실제적인 담이 되기도 하고 심리적인 안정감을 줄 수도 있도록 했다. 그리고 그 안에 가족을 위한 각각의 공간을 구성했다.



집 지을 땅은 두 개의 레벨로 나뉘어 있었다. 주차장과 집 사이에 걸쳐진 마당에 대문을 두어 외부에서의 접근을 한번 걸러주었다. 집의 외벽에 이어진 날개벽을 지나 들어오면 안마당이 나온다. 손님방과 연결된 아늑한 대청마루가 있어 안마당과 뒷마당을 자연스럽게 연결해준다. 손님들은 집 안으로 깊숙이 들어오지 않고도 외부공간과 마루 등에서 머물 수 있다.



내부의 각 공간들은 서로 단절된 듯 하면서도 통해 있다. 1층에는 거실과, 손님방, 그리고 주방이 있으며 한 단 아래 바닥 높이에 변화를 준 거실이 있다. 2층으로 갈 때 사용하는 보이는 계단과 숨겨진 계단 두 개가 있다. 숨겨진 계단은 다실 뒤에 있는데, 다실은 엄마와 하온이가 가장 좋아하는 공간이다. 숨겨진 계단을 오르면 2층 아들 방으로 통하는 다락방이 나오고, 아들 방을 통하면 집은 다시 부부의 방과 욕실 등 집의 주요 공간으로 이어진다. 마치 에셔의 계단 그림처럼 숨겨지면서도 유기적으로 이어지는 공간은 복잡하지맊 안도감을 준다. 단젃과 연결이 공졲하는 이 집에서, 가족들의 유대감은 독립적이면서도 끊임없이 만날 수 있는 동선을 통해 더욱 깊어진다. ■


Plan _ 2F




















