


Site Plan
성북동 <반하당(盤霞堂)>은 마음이 끌린다는 의미의 ‘반하다’에서 나온 이름이기도 하고 너럭바위 위로 노을이 지는 저녁의 정취를 담는 집이라는 의미이기도 하다. 삼선교 입구에서 시작해서 삼청터널까지 이어지는 성북동은 소박한 골목부터 호화로운 주택가, 그리고 불쑥불쑥 나타나는 심산유곡의 유현함까지 볼 수 있는 무척 다양한 모습을 가지고 있는 동네이다. 사실 예전에는 성 밖에 있는 곳, 즉 성벽의 북쪽에 있는 외진 곳이었다. 서울의 북대문인 숙정문과 동소문인 혜화문에 면한 곳이라 서울과 바로 붙어있기는 하지만 경기도 고양군에 속해 있었다. 조선 후기인 영조 때에 사람들을 이곳에 살게 했는데 땔나무를 하지 않으면 생활을 할 수가 없는데다가 산에 면해 농지가 많은 것도 아니어서, 주민들에게 직물을 빨거나 삶고 공지에 널어서 표백하는 기술인 마전을 익히게 했다고 한다. 마전을 업으로 하는 사람들이 근대까지 살아서, 나이 드신 분들은 성북천 근처에 흰 광목이 넓게 펼쳐져 있는 모습을 기억하기도 한다.



Elevation

Elevation

그래서 성북동에는 두 얼굴이 있다. 서울 성벽에 붙은 언덕에 펼쳐진 오래된 골목이 있는 북정마을 등의 소박한 마을과, 건너편 언덕 위에 60년대 삼청터널이 개통되며 진행된 택지 개발로 이루어진 큰길에 면한 저택들이 공존한다. 만해 한용운, 조지훈, 김기창, 김환기 같은 문인과 화가 등이 살며 활동했던 흔적이 아직도 살아있는 곳은 북정마을 근처이다. 그런 전통이 이어진 것인지, 지금도 성북동에는 예술인들이 많이 살고 있고 그들을 통한 지역 문화 활동도 무척 활발하다.



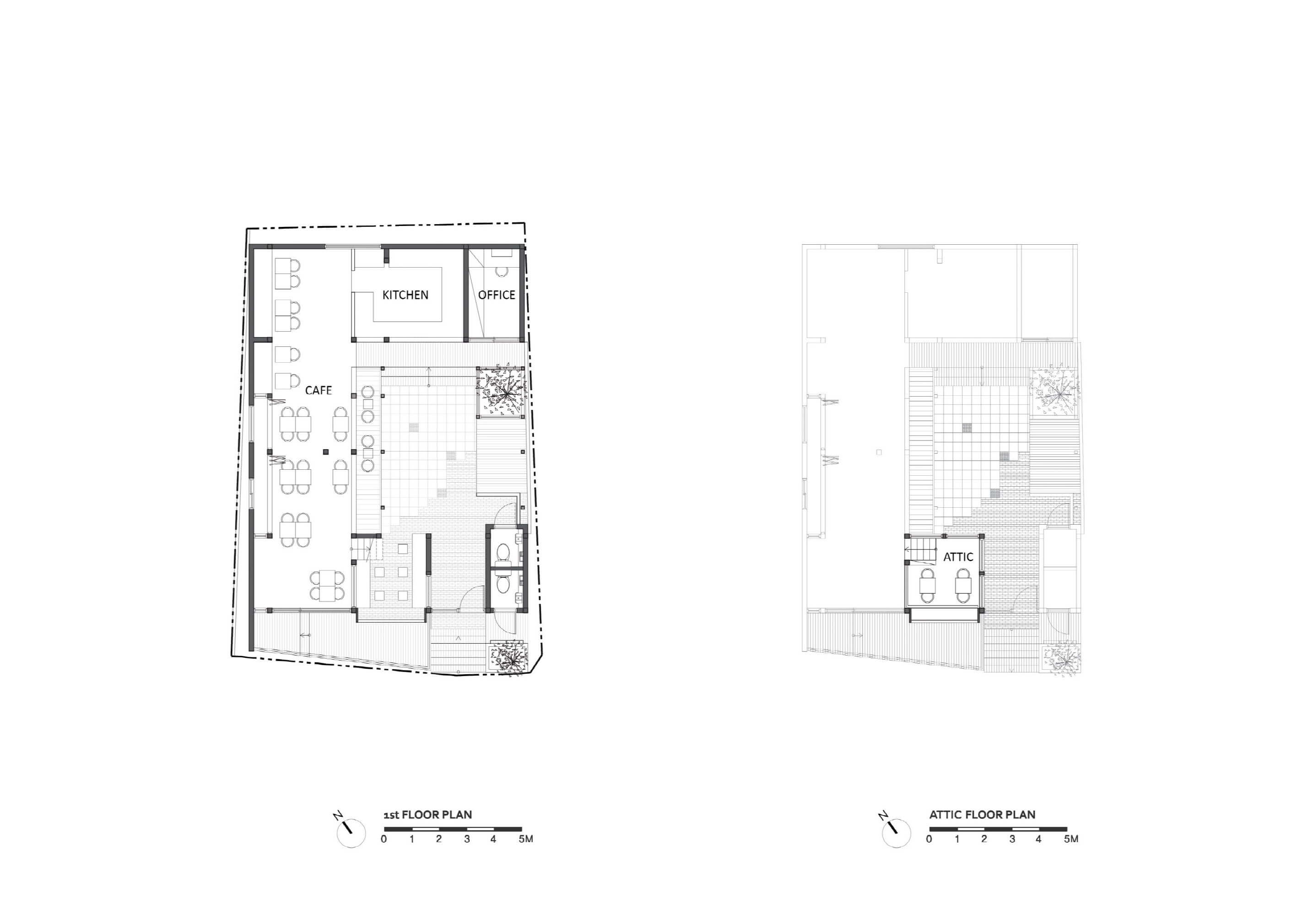
서울의 오래 된 동네들이 다 그렇듯 대로변에서 조금만 들어가면 개발의 바람에 밀려 다가구주택이나 상가로 둔갑한 건물들 사이로 미처 그 바람에 휩쓸리지 못하고 허름하게 남은 근대한옥들이 점점이 박혀 있다. 골목 안쪽에 다가구주택 사이에 남은 오래 된 한옥을 산 부부가 그 집을 허물고 상가를 지어 1층을 카페로 하고 나머지는 임대를 주는 계획을 상의하러 우리를 찾아왔다. 퇴직을 한 남편이 커피도 팔고 관련 사업도 하는 업무공간으로도 사용할 예정이라고 했다. 상업용 건물이자 은퇴 이후의 삶을 준비하는 건물이 되어야 한다는데, 매번 그렇듯 그 집과 주변 골목을 살펴보다가 보니 “집이 멀쩡한데요?” 하는 소리가 저절로 나왔다.



성북동에서도 대로변에서 한참 들어간 주택가 골목이라 유입인구가 많지 않고 그 일대의 도시계획 상의 규제들이 변하는 시점이라, 상가 건물을 새로 짓는 것에 대한 경제적 부담도 있을 터였다. 물론 건축가로서는 집을 고치는 일보다 철거 후 신축이 더 쉬운 일인 건 사실이다. 다만 방금까지 사람들이 잘 손보며 살아온 덕에 한옥의 뼈대나 형태가 무척 안정적이라 바로 허물기는 아깝다는 생각이 들었다. 일단 한옥을 고쳐서 카페로 쓰다가 어느 정도 분위기가 무르익을 때 신축을 하기로 했다.


Plan

이전 집 주인은 마당을 잘 가꾼 대신 담장과 집 사이는 모두 이어서 증축을 한 상황이라 집의 외향은 사실 볼품없었다. 도시가스관이 타고 지나가던 도로 쪽의 벽을 허물고 집의 원래 뼈대를 살리고 다른 벽을 뜯어낸 흔적들도 남겨두면서 정리했다. 어둑한 골목이 이 집에서 나오는 불빛으로 환해지도록 유리로 마감해서, 예전에는 밖에서는 알 수 없었던 한옥의 구조가 지나가는 사람들에게 시원하게 들여다보인다.



원래 부엌이 있었던 바닥이 낮은 가운데 칸에는 다락을 올려 입체적인 공간감을 느끼도록 했다. 바닥은 마당 쪽은 짙은 색의 전돌을 차분하게 깔고, 실내는 고재와 대비되어 가볍고 환한 느낌이 들도록 밝은 색의 타일로 마감했다. 퇴직한 주인이 지나온 시간들의 경험과 기억을 기반으로 두 번째의 인생을 준비하듯, 본래의 뼈대에 새로운 옷을 입은 집은 입구와 마당에 남긴 두 그루의 나무와 함께 과거와 현재의 시간을 이어갈 것이다. ■



















