






Elevation

Elevation
대전은 한국의 남과 북, 동과 서를 철도로 이어주는 교통의 요지이다. 도심지에 있는 대전역에서 동광장 방향으로 나가면, 뜻밖에도 고즈넉하고 한가한 풍경을 만나게 된다. 넓은 주차장과 철도 관련 시설들이 듬성듬성 놓여 있고, 곧 지어질 아파트 단지 때문에 미리 6차선 도로로 넓힌 길이 있다. 그리고 너머 오래 된 집들이 다닥다닥 붙어 있다. 언뜻 보면 마치 20세기 초의 근대로 돌아간 듯한 풍경인데, 바로 그곳에 철도 관사촌이 있었기 때문이다. 1920년대 전후 철도 관련 일에 종사하던 사람들이 살던 일본식 집들이 대전역 주변에 남북으로 더 있었다고 한다. 그러나 세월이 흐르며 다 사라지고, 이제 40여 채의 건물이 동관 사촌의 흔적으로 남아있다.
말하자면 소제동은 망점과도 같은 곳이다. 대전의 한가운데 있으나 그 곳을 아는 사람은 그리 많지 않았다. 대전에 오래 살았던 사람들도 대전역 바로 옆에 그런 동네가 있다는 것을 의식하지 못했다. 일본의 관사들이 있었던 시절은 접히고 포개져 서랍에 수납된 기억의 장소가 됐다.




Section
그런 장소에 새로 건물을 짓는 건물을 설계하는 일은 무척 의미가 있지만, 부담스럽기도 하다. 시간의 맥락과 기억의 맥락이 끊임없이 계획으로 파고든다. 집 지을 땅은 큰 길 이면으로는 오래된 동네의 흔적이 고스란히 남아있는 외곽에 위치한, 말하자면 동네의 껍질 같은 곳이다. 도로 맞은편에는 새로 거대한 주거 단지가 들어올 예정이고, 뒤편에는 100여 년의 역사적 시간을 담은 동네가 있는 시간적, 지리적 경계 지점에 자리잡게 된 것이다.




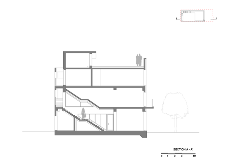
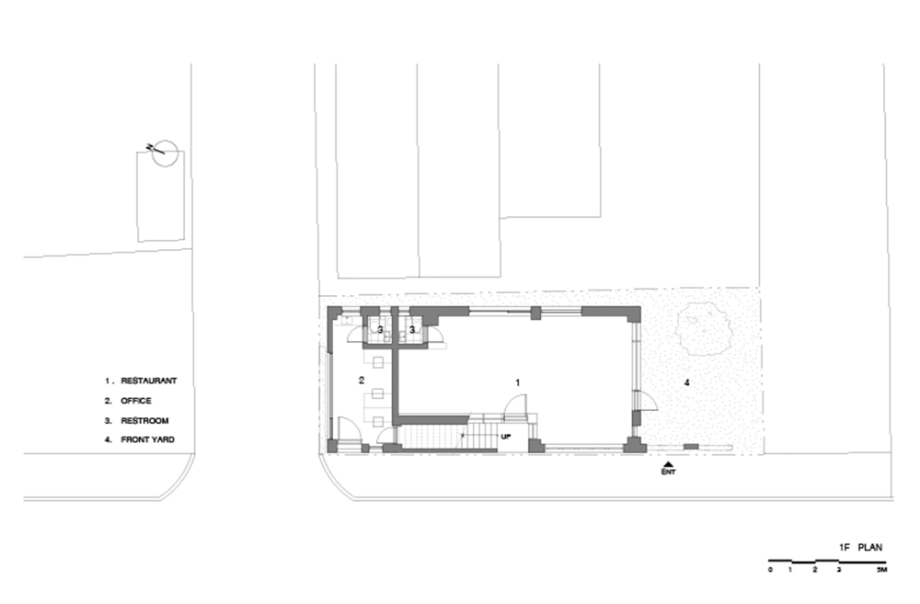
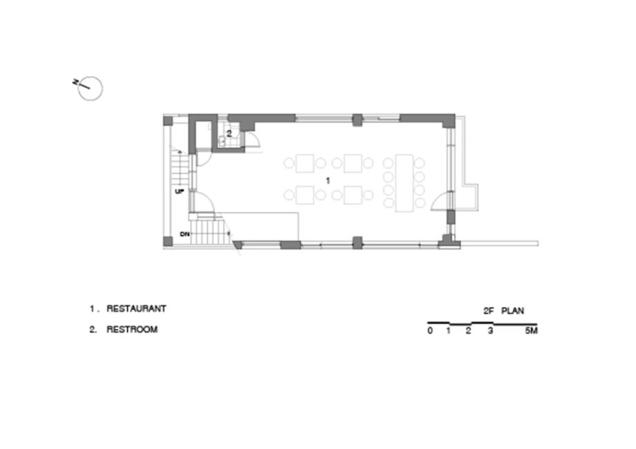
기존의 도시 문맥을 살리는 방법으로 전면에 건물로 들어가는 길을 만들었다. 각 층으로 진입하는 외부계단은 내부로 넣거나 눈에 띄지 않게 구석으로 돌려도 되지만, 이왕이면 오르내릴 때마다 주변의 풍경을 감상할 수 있도록 건물의 전면으로 당겨왔다. 계단은 건물의 옆구리를 파고들며 단순한 이동의 목적뿐만이 아니라, 입면을 좌우하는 중요한 디자인 요소가 됐다. 건물에 생동감을 불어넣는 옥외계단을 오르며 이용자들은 계속 다른 방향의 풍경을 만나게 되고 시선마다 과거와 현재가 혼재된 동네가 담기게 된다.




Plan_1F
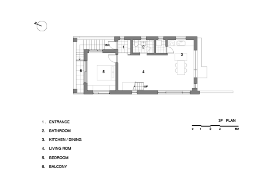
도로 확장으로 인해 땅이 분할되면서 원래 있던 건물이 철거되어, 새로 건물을 지을 수밖에 없는 상황이었다. 대지의 면적은 그리 넓지 않았으나 폭이 넓고 깊이가 얕았다. 2개 층은 건축주 본인의 사무실을 포함한 상업시설로, 3층은 주거로 구성된다. 3층 건물을 높다고 할 수는 없지만, 주변의 전반적인 높이에 비해서는 껑충한 건물이 될 수밖에 없었다. 그래서 밝은 색상으로 건물의 인상을 부드럽게 만들고 다양한 개구부와 사선으로 열리는 계단의 개구부를 통해 건물의 스케일을 낮췄다.





Plan_2F

Plan_3F
건물 정면의 좌측은 건물을 감싸고 도는 계단이 있고, 우측 대전역 쪽으로 바라보는 부분에는 작은 발코니가 돌출되어 있다. 하나는 움직이는 시선을, 하나는 정지된 시선을 가질 수 있다. 무채색의 동네에 단지 흰색의 건물을 넣은 것만으로도 마치 과거와 현재가 대비되는 듯한 이미지가 생성됐다.
과거의 기억과 현재의 시간을 이으며, 도시의 변화를 지켜볼 건물의 이름은 '시간의 거울'이다.◼︎


















