
시공사





Sketch

Elevation

Elevation
낡은 로봇 주택, 어느 페인트 회사의 사옥으로...
덕우 PCI 프로젝트는 1980년대 후반 포스트모던 양식으로 지어진 용인시 하갈동의 노후 주택을 현대적 사옥으로 리노베이션하는 작업이다. 기존 건물은 마치 일본 애니메이션의 로봇과도 같이 생긴 독특한 기하학적 형태와 원형창을 비롯한 포스트모던 특유의 건축적 언어를 간직하고 있었으나, 노후화된 외장재와 내부 구조적 한계로 인해 사옥으로써 기능 수행에 어려움이 있을 수밖에 없었다.
건축주는 페인트 전문 업체인 덕우 PCI로, 1층은 페인트 대리점, 2/3층은 사무실 공간으로 설계를 요청했다. 우리는 기존의 독특한 로봇 형상은 유지하여, 기존 건물축물의 유니크함을 존중하는 한편, 철골 보강 후 기존 벽체를 해체하고 독특한 색채를 가미하여, 페인트 업체만의 정체성을 드러낼 수 있는 독특한 로봇 사옥을 디자인했다.





Section

Section
색채, 어느 페인트 사옥의 정체성 -버건디/그린/화이트/그레이를 중심으로 한 색채 디자인-
우리는 이 건축물이 페인트 회사를 위한 공간이라는 점에서 색채를 중심으로 한 설계가 이 건축물의 정체성을 가장 잘 대변할 수 있다고 생각했다. 이 프로젝트에서 색채는 단순한 시각적 효과를 넘어 회사의 철학과 기술력을 공간 속에 명확히 투영하는 중요한 매개체로 사용되길 원했다.
이를 위해 버건디는 건물의 기둥에, 그린은 보에, 화이트는 지붕의 골강판에, 그레이는 외부 스타코 마감에 사용하여 네 가지 색상과 텍스처를 명료하게 구분하고, 각각의 색상은 건축물의 요소(기둥/보/창호/벽체/지붕)에 다양하게 적용시켜 건축물 자체가 페인트 회사의 정체성과 전문성을 명확하게 드러낼 수 있도록 디자인 됐다.
거기에 더해 건축주가 직접 페인트 도장을 시공함으로써 덕우 PCI의 기술적 완성도와 전문성을 공간에 직접 구현하였고, 이를 통해 회사의 아이덴티티를 건축적으로 더욱 의미 있게 표현하는 기회를 가질 수 있었다.





Sketch
철골 구조, 그 순수한 노출 - 장식적 포스트모던의 현대적 극복 -
우리는 단순하게 색채를 입히는 것에 안주하고 싶지 않았는데, 기존 포스트모던 건축이 외형적 유희와 장식, 단순한 색채에 몰입하여 건축 공간의 본질적인 기능과 구조적 투명성을 간과했던 과거의 건축을 답습하고 싶지 않았기 때문이다. 이러한 한계를 극복하기 위해 건물의 기존 기하학적 형태와 대칭성을 고려하여 구조적 보강을 실시하고, 이 철골 구조를 그대로 노출시켜 구조적 솔직함과 투명성을 강조하는 디자인을 선택했다.
기존 벽돌 벽체와 철골 구조가 지닌 순수한 구조미를 있는 그대로 드러내면서도, 다채로운 컬러와 은은한 빛(간접조명)의 조합을 통해 구조 본연의 아름다움을 더욱 극적이고 감각적으로 표현하려 했다. 철골/조적 구조의 명료한 노출과 섬세한 색채 표현이 만나면서, 건축물은 단지 보이는 대상이 아니라 사용자와 적극적으로 소통하고 호흡하는 살아있는 공간적 존재로 재탄생하게 되었다. 이를 통해 우리는 과거 포스트모던 건축에서 보지 못한 구조적 투명성과 장식적 표현 사이의 균형을 현대적으로 재정립하고자 노력했다.









Sketch

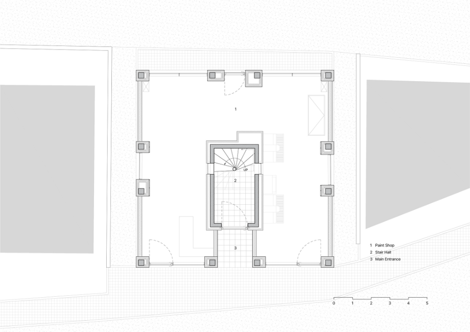
Plan_1F

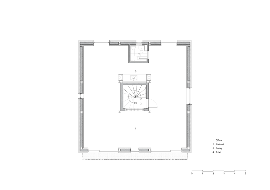
Plan_2F
반투명 골강판, 시간을 투영하는 재료, 거친 벽돌벽체, 시간을 품은 구조체 - 시간을 담는 건축적 언어 -
기존 건물은 항상 아름다운 시간의 흐름을 내포하고 있다. 이런 흐름은 무엇으로 감싸기 보다 그 자체로 하나의 공간적 요소로써 남기고 드러냄으로써 자연스러운 시간의 공간으로 재탄생 된다. 우리가 남긴 흔적들 - 오래된 콘크리트 보 / 계단실 벽돌 벽체 / 원형 창 / 철제 원형 계단 / 콘크리트 천장
1층은 기존 콘크리트 보는 철골 보와 일관성 있게 그린으로 도색 후 간접조명을 통해 오래된 콘크리트 구조가 강조된 공간을 만들었고, 2/3층은 기존 벽돌 벽체의 표면 마감을 제거해 벽돌 본연의 거친 물성을 강조함으로써 시간의 흐름을 더욱 뚜렷하게 드러냈다. 계단실의 경우엔 중앙에 있는 상징적인 원형창은 통유리로 개방감을 부여하고, 철제 원형계단은 기존 기둥만 사용하고 디딤판을 교체, 버건디와 그린으로 색채 마감하여, 기존 건축물의 독특한 정체성을 유지하고자 했다.
특히 1~3층을 아우르는 콘크리트 천장은 직접 노출하기에는 지나치게 오염되고 거친 상태였기에, 반투명한 골강판을 사용하여 가림과 동시에 원래의 콘크리트 질감과 시간성을 은은하게 드러낼 수 있도록 디자인하였다. 이는 외부 지붕에 사용된 흰색 골강판이 내부로 들어오면서 반투명한 재질로 역전된 것으로, 이러한 재료의 물성 전환은 과거의 시간성이 현대 공간 속에서 독특하게 혼재하게 만드는 중요한 요소로 사용됐다.







Plan_3F
과거와 현재가 공존하는 어느 페인트 회사의 로봇 사옥
덕우 PCI 사옥 프로젝트는 과거의 흔적을 존중하면서도, 현대적 기능성과 브랜드의 정체성을 공간 안에 녹여낸 리노베이션 작업이다. 로봇같이 생긴 건축물의 독특한 형태와 콘크리트/조적 벽체의 물성을 최대한 보존하면서, 새로운 철골 구조, 색채, 반투명 재료의 다양한 활용을 통해 과거와 현재가 공존하는 오묘한 공간감을 연출하고자 했다.
이를 통해 덕우 PCI 사옥은 단순한 리노베이션을 넘어, 시간의 결이 겹쳐진 입체적 공간으로 재탄생할 수 있었고, 앞으로도 누군가의 사옥이자 하나의 장소로서, 새로운 시간과 이야기가 스며드는 특별한 공간이 되기를 바란다.◼︎



















