





Elevation

Elevation

Elevation
서울 남산의 옛 이름은 ‘목멱산’이다. 1392년 조선 왕조가 시작되어 지금의 서울인 한양을 수도로 정했을 때부터, 남산은 풍수지리상의 ‘안산’으로 무척 중요하게 여겨졌다. 또한 이곳에는 외적으로부터의 방어를 위한 성곽과 봉수대 등이 설치되어 있었다. 현재는 공연장, 박물관, 체육시설 등 시민을 위한 다양한 건물들이 그 주변으로 세워져 있다.
남산의 북쪽 자락에는 한국의 전통건축인 한옥 몇 채가 재현된 마을이 있고, 남산골공원이 둘러싸고 있다. 그곳에는 화산 분화구처럼 생긴 ‘서울천년임캡슐광장’이 있는데, 서울의 문물 600점을 넣고 봉인해 둔 곳이다. 1994년 11월 29일에 묻힌 타임캡슐이 다시 열리는 시점은 2394년 11월 29일이다. 과연 370년 후의 서울은 어떤 모습이 되어 있을까?



Site Plan
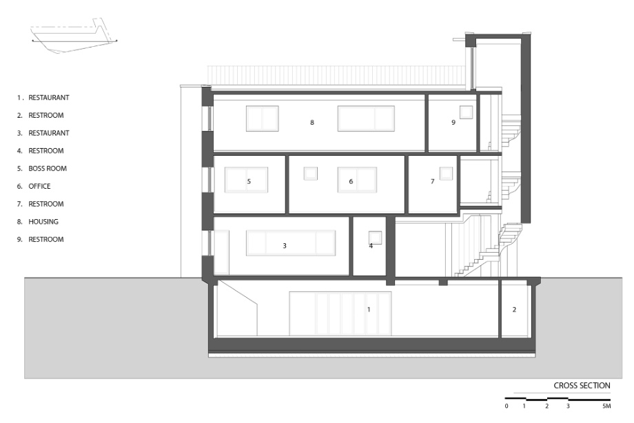
역사도시로서의 서울에는 건축 혹은 도시 개발 계획에 있어 수많은 제약이 있다. 특히 집을 지으려는 대지 인근에 문화재가 있을 경우 규모와 높이, 용도, 건물의 마감재 등이 모두 지극히 제한적이다. 남산골공원의 끝자락에 맞닿은 부정형 대지는 아름다운 전망을 가졌으나, '지적불부합지'라는 명칭의 측량이 불가능한 곳이었다. 즉 여기에 건물 신축을 하는 것은 거의 '불가능한 미션'이었다. 이 집의 설계를 맡긴 의뢰인은 우연히 근처를 지나다 이 땅을 발견했다. 그는 남산골 공원이 시원하게 내려다보이는 조용한 골목 안쪽의 이 땅이 너무나 마음에 들었다고 한다.
그런데 대지의 형상 때문에 반듯한 형태의 건물이 나올 수는 없었고, 그는 땅에 어울리는 집을 설계해 달라고 우리를 찾아왔다. 일단 각 층의 가용 면적이 50㎡가 채 되지 않고, 용도도 모두 달랐다. 대지의 위치 때문에 서울시에서 의무로 부여한 각종 심의까지, 마치 이리저리 꼬아 만든 수학문제를 풀듯 수많은 제약 조건도 해결해야 했다. 어느 각도에서의 사진도 피하지 못한 복잡한 전깃줄은 이 집이 겪었던 지난한 시련을 상징하는 듯 하다.






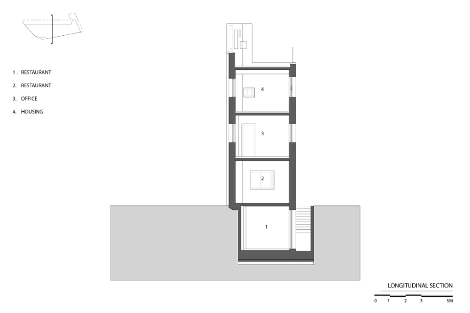
Section

Section
서울 한복판에서 이렇듯 자연과 도시, 그리고 역사적 유산의 경계가 직접적으로 맞닿는 곳은 드물다. 건축가로서는 도전하기에 매력적인 곳이었지만, 지적도상의 대지 형태와 실제 대지 모양이 달랐다. 두 조건을 모두 충족시키는 배 같기도 하고 칼 같기도 한 뾰족한 다각형의 평면이 먼저 구성되었다.
외장재는 역사 지구에 적합하도록 무채색 컬러를 적용해야 하므로, 전통 궁궐이나 성곽에 많이 사용되었던 전돌을 선택했다. 마침, 끊기며 이어지는 서울 성곽의 흔적이 근처에 있었고, 우리는 타임캡슐이 묻힌 공원을 보호한다는 의미로 수원 화성에서 본 ‘보루’(堡壘 , stronghold)의 이미지를 떠올렸다. 게 썰린 땅의 조각을 단단하고 갑옷처럼 무거운 전돌로 감싸고, 예각으로 만나는 모서리는 어긋나게 쌓아 날카로움을 상쇄시켰다.








Plan_1F

Plan_3F

Plan_RF
2층과 3층의 창을 연결하는 문양을 넣어 무덤덤한 입면에 변화를 주었다. 쪽 창은 공원을 향한 시원한 전망을 갖고, 남쪽의 출입구는 지나가는 사람들도 공원을 넘겨다 볼 수 있도록 부분 필로티로 개방했다. 최소한의 면적을 할애한 계단을 오르면 사방으로 탁 트인 옥상정원이 나온다.
옥상 부분은 양쪽 단순히 난간을 설치한 것이 아니라 양쪽 벽을 올려 계단실로서의 기능과 더불어 성의 망루 같은 역할을 부여했다. 난간도 전통건축의 '평난간' 형태를 모티브로 하여, 좀더 은유적으로 한국 건축의 부분 요소를 담는 건축으로 완결지었다.◼︎


















