
사진



Before

Diagram
의뢰인은 이 집에서 10년 거주. 산책 중에 에이코랩 사무소의 선홈통이 마음에 들어 설계를 의뢰하였다. 지금의 골목 풍경과 옆집의 조망권이 유지되길 바랐다. 의뢰인은 뭐든 쉽게 버리는 것을 원하지 않았다. 쓰던 낡은 화장대와 옷장, 값싼 이케아 등도 다시 쓰기를 원했다. 평생을 검소하게 살며 모은 돈으로 짓는 주택 겸 작업실이다. 차는 꼭 필요한 날만 20년 넘은 아반테 투어링을 탄다.







Before

Section

Diagram
기존의 담장과 지붕 물매를 유지해 기존 건물이 골목, 자연, 이웃과 맺고 있던 관계를 유지하고자 했다. 또한 1층(주거)와 2층(일)의 연결을 실내가 아닌 담장 밖 골목 계단을 이용했던 과거 삶의 방식을 존중하고 은유하는 태도로 접근했다. 부엌에서 마당과 대문을 지나, 골목까지가 모두 주거의 풍경이 된다.
기존 건물의 외벽과 바닥의 수직 수평이 모두 맞지 않았기 때문에, 비정형 벽체와 슬라브의 안쪽에 프로그램 조닝(Zoning)을 고려한 정형의 '田'자 그리드 구조를 형성했고, 그 틀 안에서 지하와 다락으로 증축했다. 구조재는 마감재로 노출이 가능하면서 주거 기능에 적합하다고 생각되는 나무로 기존의 콘크리트를 보강하였다. 일반적인 금속 대신, 자연 재료인 목재로 가장 인공적인 재료인 콘크리트를 받친다.



도로 측 입면을 위해 벽돌을 구하던 중 마침 자주 오가는 길에 재개발이 진행 중이었고, 본 주택과 같은 외장의 건물을 찾아 치장 벽돌을 해체 및 수거하고 몰탈을 떼내어 본 주택에 사용했다. 새로운 벽돌 벽과 기존의 벽이 만나는 부분을 톱니 형태로 기존 치장 벽돌을 해체하여 조적을 시공했다.






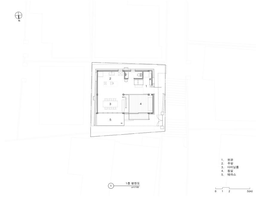
Plan_1F

Plan_2F
주어진 조건에서 최소의 손길로 해답을 찾고자 했다. 외벽을 해체하고 보강하면서, 전면 외벽을 후퇴하여 못쓰던 마당과 테라스를 확장했다. 후퇴한 외벽을 대신하여 기존 2층 바닥의 역보를 유지하고, 역보 하부에 선홈통과 기둥을 결합하여 물 처리와 구조 보강을 동시에 충족시켰다. 1층 구조 보강 기둥에 보를 걸어 지하 상부에 띄워진 평상을 만들고 지하를 1층과 한 공간으로 조성했다.
띄워진 평상은 외부로 확장되어 툇마루를 형성하고, 띄워진 평상 아래로 지하 채광창을 설치했다. 처마 물받이는 노출해 지붕의 끝을 정리하고, 선홈통은 구조축에 놓거나, 실외 구조보강을 겸하도록 했다. 가구적 요소나 사소한 장치 등이 구조의 일부이자 전체 시스템의 부분으로 정리되어 작동되길 희망했다.◼︎


















