




Elevation

Elevation

Elevation

Diagram
구산동 단독주택: 한 사람을 위한 도심 속 작은 집
구산동 단독주택은 ‘한 사람을 위한 집’이라는 개념을 발전시킨 두 번째 프로젝트로, 기존 건물을 리모델링하여 완성한 사례이다. 충북 영동의 산 중턱에 첫 번째 집을 지은 이후, 도심 환경에 맞춰 새롭게 설계되었다. 좁은 골목과 높은 밀도의 도시 환경 속에서도 효율적인 공간을 창출하여 쾌적한 생활이 가능하도록 계획했다.
구산동 단독주택은 층당 21㎡(약 6.4평)의 바닥 면적을 가진 2층 구조로, 최소한의 공간을 최대한 활용할 수 있도록 설계했다. 거주자의 동선을 간결하게 구성하는 동시에 공간의 모든 부분을 실용적으로 사용할 수 있도록 배려했다. 좁은 골목길과 밀집된 주거 환경을 고려하여, 외관은 주변 건물들과 조화를 이루면서도 자연스러운 형태를 지니도록 디자인했다. 이를 통해 건축물이 과도하게 돋보이지 않으면서도 고유한 존재감을 갖추고, 거주자에게는 쾌적한 생활 환경을 제공한다.




Plan_1F

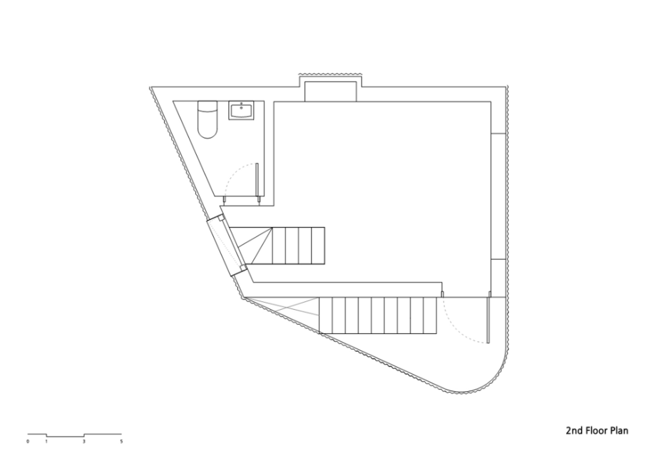
Plan_2F
도심 속 작은 주택의 가능성
구산동 단독주택 에서는 기존 외부 계단을 철거하고, 1층을 주차장과 주 출입구로 활용하는 동선을 계획했다. 주차장에서 바로 이어지는 현관과 1층 주방, 그리고 2층으로 연결되는 내부 계단은 건물의 흐름을 단순하고 명확하게 구성한다. 계단을 따라 이동하는 동선은 2층의 방과 테라스, 옥상으로 자연스럽게 확장되며, 최소한의 기능으로 최대한의 효율성을 갖춘 공간이 되도록 했다.
구산동 단독주택은 도시에서 작은 주택이 지닐 수 있는 가능성을 탐구한 프로젝트이다. 1층 주차 공간에는 철골 프레임을 추가하여 구조적 안전성을 강화하면서도 면적 활용도를 극대화했다. 건축주의 주차 공간 확보 요구를 충족시키면서도 기능적 유연성을 제공하는 접근 방식이었다.
2층에는 남향 창을 두어 채광을 극대화하였으며, 북쪽 창을 최소화해 에너지 효율을 높였다. 또한 테라스와 옥상으로 이어지는 동선을 통해 실내외의 유기적 연결을 강조했다. 이는 단순한 기능적 배치를 넘어 거주자가 주변 환경과 더욱 깊이 소통할 수 있도록 한 설계적 시도이다.



Section
조용한 존재감
건축물은 삼거리 모퉁이에 위치한 점을 활용하여, 세 방향에서 모두 드러나는 구조로 계획했다. 이를 통해 골목길에서 상징적 역할을 하면서도, 구도심의 풍경에 자연스럽게 녹아들도록 했다. 과도한 장식이나 화려한 외관보다는 재료의 질감과 형태의 흐름을 통해 도시 경관에 부드럽게 스며드는 방식을 택했다.
외장재는 저렴하면서도 내구성이 뛰어난 골강판을 사용했다. 기성 제작된 세 가지 규격의 골강판을 조합하여 획일적이기 쉬운 입면에 자연스러운 질감을 부여했다. 골의 규격을 다양하게 적용함으로써, 단조롭지 않으면서도 조화로운 외관을 완성했다. 이는 작은 변화만으로도 입면에 깊이감과 생동감을 부여하는 효과적인 방법이었다.


작은 변화가 만드는 도시의 새로운 가능성
구산동 단독주택은 단순한 리모델링을 넘어, 도심 속에서 작은 집이 어떻게 기능성과 심미성을 겸비할 수 있는지를 보여준다. 기존 건축물의 공간적 맥락을 존중하면서도 현대적인 생활 방식에 맞는 변화를 더 해, 도시 환경에 자연스럽게 녹아드는 건축을 실현하고자 했다.
이 프로젝트를 통해, 작은 규모의 건축이라도 적절한 디자인과 계획이 적용된다면 충분한 기능성과 쾌적한 주거 환경을 제공할 수 있음을 증명하고자 했다.◼︎

















