


Diagram
풍년빌라는 동네와 건물, 건물에 사는 3세대가 어떻게 상호 간에 적절한 관계를 가질 수 있을지에 대한 고민에서 시작한 프로젝트다. 건축은 개인의 소유이기도 하지만, 동시에 도시를 구성하는 요소다. 즉, 건축은 개인적인 결과물인 동시에 사회적 결과물이며, 개인과 사회를 연결하는 매개체가 된다. 건축은 사회적으로 요구되는 방향을 담는다. 경쟁적이고, 이기적인 건축은 이기적인 사회를 만들고, 반대로 이기적인 사회 또한 이기적인 건축을 만든다. 이런 사회는 스스로를 고립시키고, 서로의 대화와 관계를 축소시킨다. 그 결과는 생활은 있지만 삶이 없는 도시 속에서 살아가게 한다.
풍년빌라는 개인의 삶을 지키면서도 옆집, 동네와 적절한 관계를 만들어갈 방법을 고민한 결과이다. ■





Plan_1F



Plan_2F



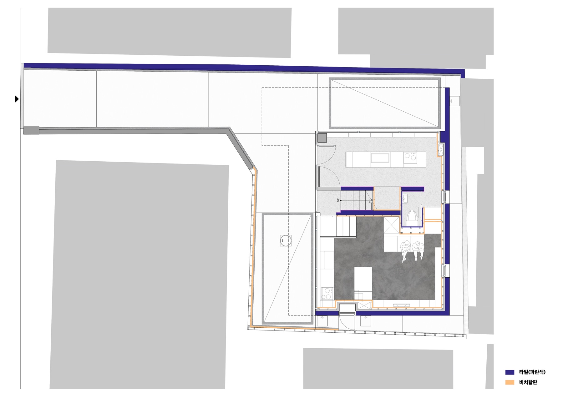
Plan_3F



Plan_4F

















