
사진
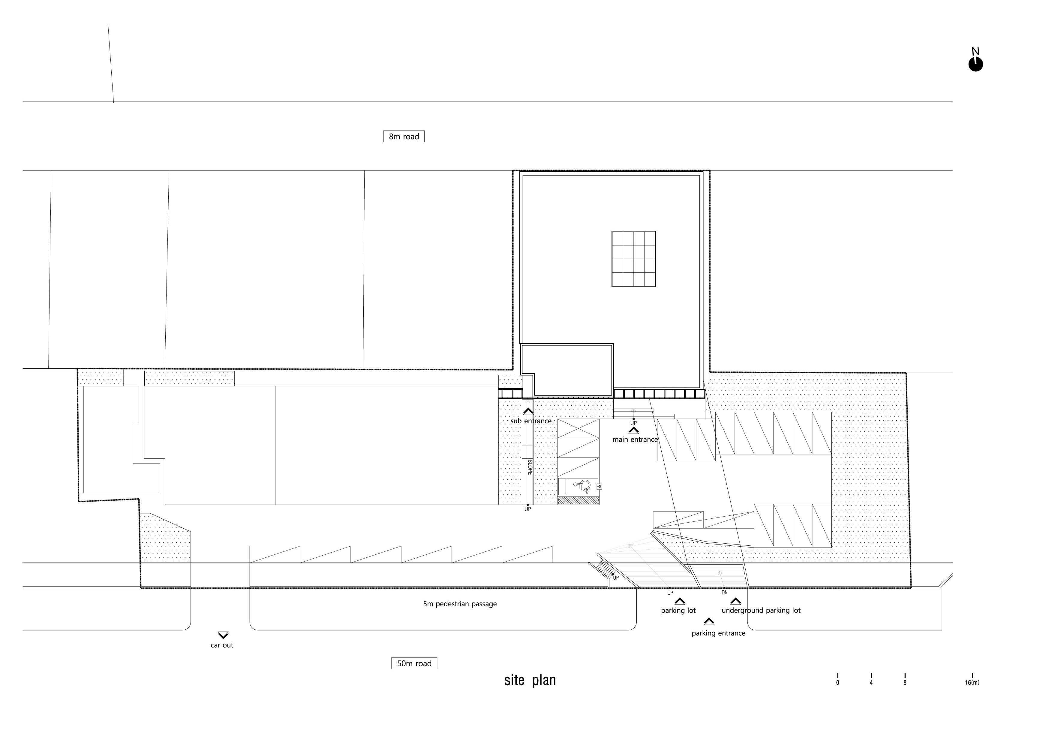
Site Plan
Elevation
독산동 축산물시장의 초입에 위치한 건물은 한동안 사용하지 않은 듯 커다란 임대광고 현수막만이 덩그러니 걸린 채 텅 비어있었다. 1973년에 설립된 독산동 우시장은 마장동, 가락동과 함께 서울의 대표적인 축산물 도매시장이다. 하지만, 대부분의 재래시장이 그렇듯 이곳 역시 낙후된 시설과 불편한 교통 때문에 점점 손님수가 줄어들었고 최근에는 40층의 오피스 타운으로 변신하는 대규모 재개발 계획까지 발표되었다. 건축주는 이러한 개발계획과 상관없이 기존 창고를 리모델링하겠다는 의지를 가지고 우리를 찾았다.




스타덤 사옥은 독산동 우시장의 버려진 창고를 개조해 스타를 키우는 산실로 재생시키는 리모델링 프로젝트이다. 창고형 마트를 산부인과 병원으로 재생시킨 쉬즈메디병원에 이어 디림건축의 두번째 재생 프로젝트이다. 한류의 열풍이 한창인 현시점에 스타를 키우는 엔터테인먼트회사의 사옥이라는 점이 더욱 의미가 있다. 20세기 초반까지 도축장과 가공공장으로 가득 찼던 맨해튼의 미트패킹지역은 1960년대부터 지역상권이 쇠퇴하면서 80년대까지 마약과 매춘이 성행하는 대표적인 도시 슬럼가였다. 하지만, 90년대 이후 문화와 패션의 거리로 탈바꿈했고, 현재는 부티크 상점들과 레스토랑이 즐비한 관광명소가 되었다. 맨해튼 미트패킹지역의 긍정적인 변화가 독산동에서도 시작되길 기대해 본다.



시흥대로에 면한 2층 건물의 리모델링은 남길 것과 버릴 것의 구분에서 시작됐다. 건축적인 가치를 떠나 도축장으로 사용하던 예전의 모습을 과도한 디자인으로 성형하는 것은 피했다. 결론적으로, 건물 내외 부는 이전의 모습을 거의 그대로 간직하게 되었고, 덤으로 건축주에게 예산절감이라는 선물도 안겨 주었다. 거친 재료의 질감을 그대로 노출시키고 구조적으로 취약한 부분만을 선별적으로 보강했다.
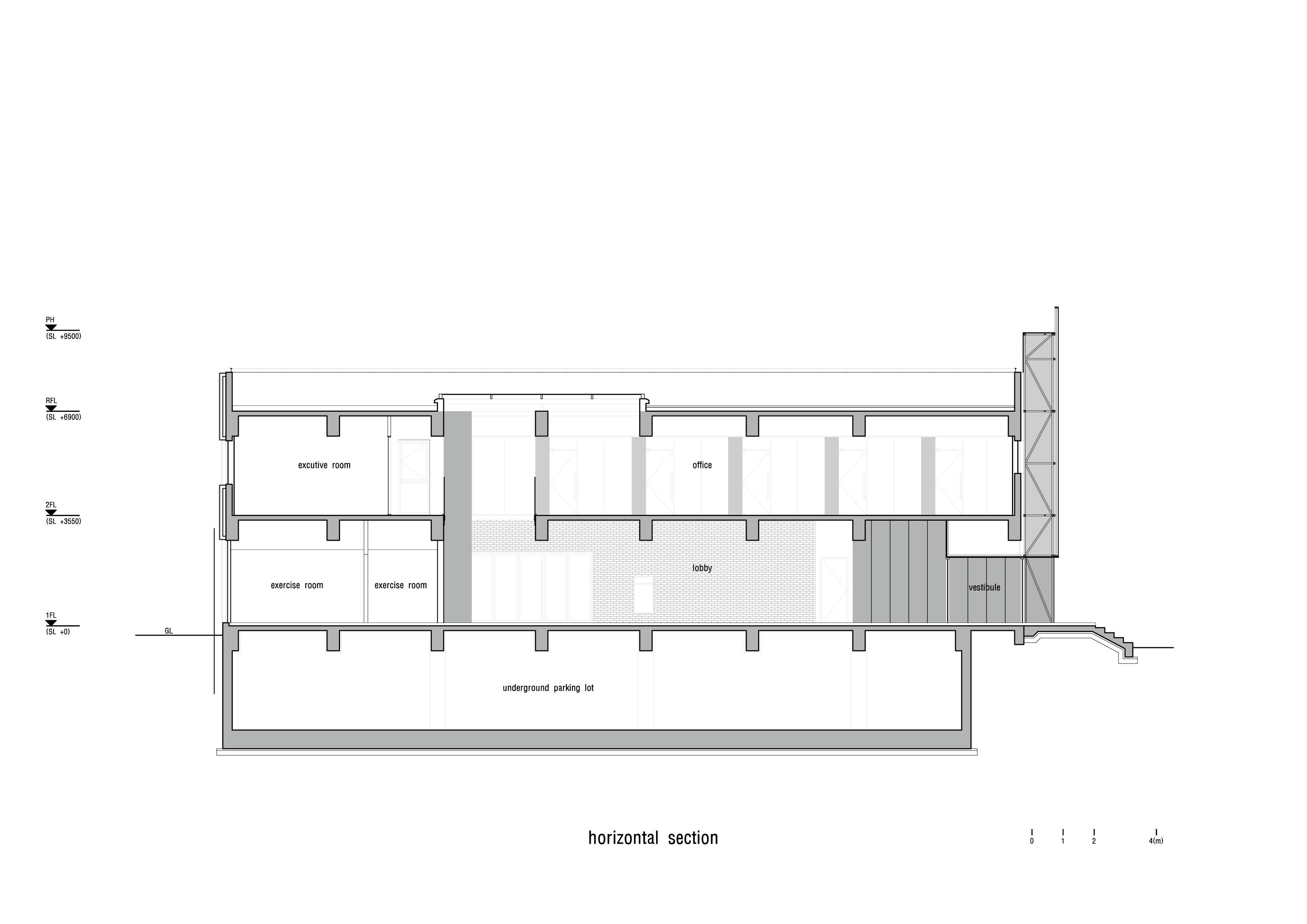
Section


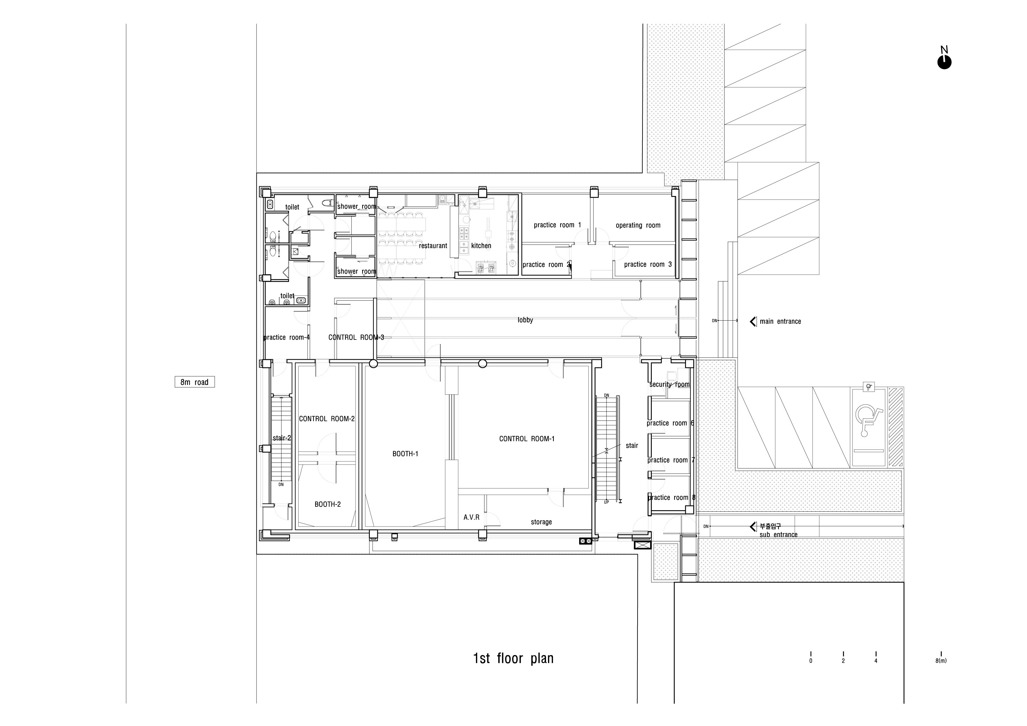
1층으로 들어서면 넓고 긴 라운지가 제일 먼저 보인다. 출입구의 천정고는 낮으며 라운지 바닥에는 철판을 접어 만든 레이스선이 그려져 있다. 건물의 출입구는 스타가 되기 위해 치열하게 노력하는 연습생을 위한 출발선인 것이다. 레이스의 끝에는 천장까지 열려진 중정을 통해 따뜻한 햇살이 비춘다. 원래 카리프트(Car Lift)와 물탱크 실이었던 자리에는 계단실이 들어갔다. 콘크리트 부스러기가 떨어질 정도로 거칠고 오래된 벽이지만, 그래서 오히려 정겹다.
Plan_1F

기존 외부마감은 타일과 드라이비트가 섞여 있었다. 여러 차례의 덧대기로 누더기처럼 보이지만 한편으론 독산동 우시장의 세월의 흔적이다. 오랫동안 풍파에 쓸려 여기저기 구멍이 나있고 부서진 곳도 많았지만 간단한 손질 후에 페인트도장으로만 마감을 했다. 전면에 반투명한 폴리카보네이트 패널을 덧대고, 그 안에 스타덤의 창립자인 조PD의 은퇴앨범 자켓 사진을 그래피티(Graffiti)한 것이 건물에 입힌 유일한 사치이다. 반투명의 외피 안에 그래피티 이미지는 힙합음악으로 대표되는 스타덤의 브랜드이미지이며, 독산동의 새로운 변화를 상징한다. ■


















