





동촌댁은 은퇴를 앞둔 대학교수와 그의 부인이 안성 동촌리에 지은 집입니다. 자녀들은 모두 출가했고 은퇴 후에 부부 둘이서만 이 집에서 살 예정입니다. 집의 2층은 북쪽의 도로에서 들어와 남쪽으로 크게 열리고 1층은 경사지에 기대 동쪽을 향합니다. 각층의 배치가 맞물려 건물은 꺾인 막대기처럼 생겼습니다. 동쪽으로 내려가는 경사와 남쪽으로 열린 전망이라는 땅의 조건이 원하는 건물 모양이었습니다. 한층 만큼 차이지는 경사지에 계단처럼 건물이 놓였으니 2층과 1층은 각자의 입구를 가집니다. 2층에는 식당과 주방과 안방이 있고 1층에는 서재와 영상실이 있습니다. 집의 공식적인 입구는 1층에 있지만 도로에서 직접 들어오는 2층이 더 친절한 층입니다. 부부의 주무대인 식당과 주방과 안방이 그래서 2층에 있습니다. 집이 작아 거실은 생략하고 식당을 넓게 씁니다. 식당은 남쪽 창을 건너 언덕 위 마당으로 열립니다. 은퇴 후 저 멀리의 풍경을 향해 여행을 떠나는 부부의 갑판을 상상했습니다. 그래서 동촌 Deck입니다.
집을 지으려고 새로 구한 땅이 아닙니다. 예전부터 갖고 있었습니다. 집을 지을 계획도 예전부터. 지역의 설계사무실 작업이 마음에 차지 않아 늦어지던 참에 건축주는 재직 중인 대학교의 건축과 학생에게 건축가 소개를 부탁했습니다. 학생은 같은 학교에 출강 중인 저희를 소개했고 그렇게 인연이 시작되었습니다.








Section

Section
다른 건축가가 작업한 원안이 있었습니다. 좋은 설계였지만 규모가 크고 예산을 많이 초과해서 처음부터 다시 설계해야 했습니다. 원안은 경사지를 크게 성토해 평지를 만들고 그 위에 집을 놓는 안이었습니다. 많은 경사지 전원주택이 이렇게 시작합니다. 평지가 아니어서 아쉬운 것처럼. 일리 있는 선택이나 저희는 경사지에 짓는 집은 경사지에 짓는 집답기를 바랐습니다. 경사 따라 계단식으로 놓인 건물이 땅에도 어울리고 공사비도 아낀다고 판단했습니다. 성토한 옹벽을 오르고 평탄한 마당을 지나 1층을 거쳐 2층에 도달하는 등산같은 집이 아니라 어느 층에서도 땅에 닿아있는 계단식 건물이 경사지에 어울린다고 생각합니다. 그러니 집에서 가장 전망 좋은 2층에 식당과 주방과 안방이 있어도 이상하지 않습니다.
대지의 남쪽에 면한 더 큰 땅도 건축주의 땅입니다. 혹시 모를 건축에 대비해 집 앞에 사도 개설을 위한 공지를 마련해 두었습니다. 그만큼의 건폐율도 남겼고요. 지금 당장은 건축주의 은퇴 후 직업인 농사를 위한 땅입니다. 그래서 동촌댁은 귀농주택이기도 합니다. 농사도구의 보관을 위해 1층 안쪽에 창고도 만들었지만 건축주는 창고의 활용에 대해 다른 계획을 갖고 계신 듯합니다.






Plan_1F
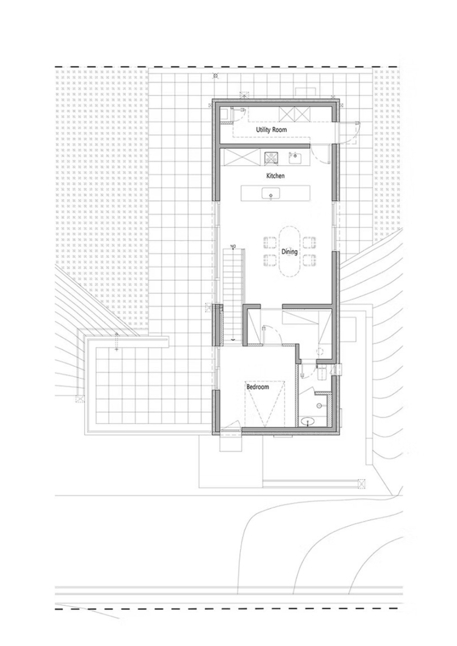
부부의 주무대인 식당과 주방입니다. 북쪽의 도로에 닿아있고 남쪽의 언덕 위 마당으로 이어지는 공간입니다. 주방에서 바라보면 양쪽으로 큰 창이 나 있고, 식당 건너편에 안방이 보입니다. 식탁과 창문 사이에 1층으로 내려가는 계단이 있습니다. 계단과 안방 사이의 유리블럭을 통해 서로의 인기척을 느낄 수 있습니다. 경사 지붕의 끝에는 부드럽고 균일한 빛이 들어오는 북향창이 나 있습니다. 이 모든 장면을 한 눈에 담을 수 있는 아일랜드 주방이 단연 공간의 주인입니다. 주방의 뒤편에는 제법 큰 다용도실이 자리했습니다. 다용도실을 통해 2층 현관으로 나갈 수 있습니다. 2층 현관 앞에는 짐 부리기 좋도록 잠깐 주차할 수 있는 작은 공터를 만들었습니다. 2층 집이지만 2층에도 차를 댈 수 있습니다. 경사지에서만 누릴 수 있는 특혜입니다.







Plan_2F
주방 건너편 안방 영역은 침실과 드레스룸과 안방화장실과 다락으로 이루어져 있습니다. 옷과 짐을 수납공간으로 치워 침실을 깨끗하게 유지하고 싶었습니다. 앞집 너와지붕 너머의 풍경을 바라보며 남쪽의 데크로 나갈 수 있습니다. 안방과 식당은 남쪽을 향해 나란히 놓였습니다. 계단을 따라 내려간 1층은 2층과 다르게 경사를 등지고 동쪽을 향해 나란히 놓입니다. 2층이 풍경을 향했다면 1층은 지형을 따른 셈입니다. 계단은 1층 현관과 직접 이어지도록 배치했습니다. 계단을 오르면 오른편의 큰 창을 통해 남쪽 마당이 보입니다. 1층 현관 양 옆에는 서재와 영상실을 배치했습니다. 안방의 일부분이었을 기능을 때어내 서재를 만들고 거실의 일부분이었을 기능을 때어내 영상실을 만들었습니다. 기능마다 별도의 방을 만들어 각자의 기능이 더욱 충실해지도록 배려했습니다. 현관에서 각 방으로 갈라지고 계단을 통해 2층으로 올라가니 동선도 각자 따로입니다. 지금은 모든 방이 주인 부부의 것이지만 나중에 방의 역할이 달라져도 이상하지 않도록 영역의 독립성도 챙겼습니다.
깊은 곳과 얕은 곳이 따로 없고 위층과 아래층이 따로 없는 집이 되기를 바랐습니다. 도로에서 보듯 밀실하고 견고하되 마당에서 보듯 어디서든 바깥과 닿는 집이 전원의 집이라고 생각합니다. 경사를 따라 놓인 건물로 어느 정도는 그렇게 된 것 같습니다. 건축주 부부의 은퇴 후의 여정이 동촌댁을 타고 따뜻하게 이어지기 바랍니다.◼︎


















