




Elevation
위치
안양의 경수대로 왕복 10차로 도로변에 위치한다. 이 도로 주변은 대부분 1970~80년대 지어진 허름한 건물들로 이루어져 있다. 이런 이유로 주변 건물들과는 다른, 새롭고 참신한 형태와 재료를 사용하여 새로운 밝은 도시경관을 만들고자 했다.
배치
대지의 동쪽에 위치한 경수대로 측에 건물의 전면을 배치했다. 건물을 도로에서 최대한 이격시켜서 자동차들의 소음을 최소화하려 했다. 이로 인해 생기는 전면공간에 옥외 주차가 가능하게 공간을 만들었다. 걸어 지나가는 사람들과 건물 사이의 거리를 최대한 확보함에 따라 위압감을 최소화할 수 있었다.
입면
일반적인 상가 형태의 모습을 과감하게 탈피하고자 했다. 이를 위하여 전면에 그리드를 이용한 2중 구조의 철골 구조물과 목재 그릴을 계획하였다. 이는 도로 측에 배치된 병실의 프라이버시를 확보하는 역할을 하기도 한다. 유리와 돌을 적절히 사용하여 2단으로 디자인하고, 간판 설치를 위한 가벽을 설치하고 있다.




Section
단면
건물의 뒷면은 석축으로 지지된 급격한 경사가 있었다. 이 경사를 이용하여 건물의 지하 1층을 지상 1층과 같이 사용할 수 있는 아이디어를 생각하여 적용하였다. 남측에 계획한 3개 층 오픈 공간은 각층에 자연광을 인입하도록 고려된 장치이다.




Plan_B3~1F

Plan_2F~5F
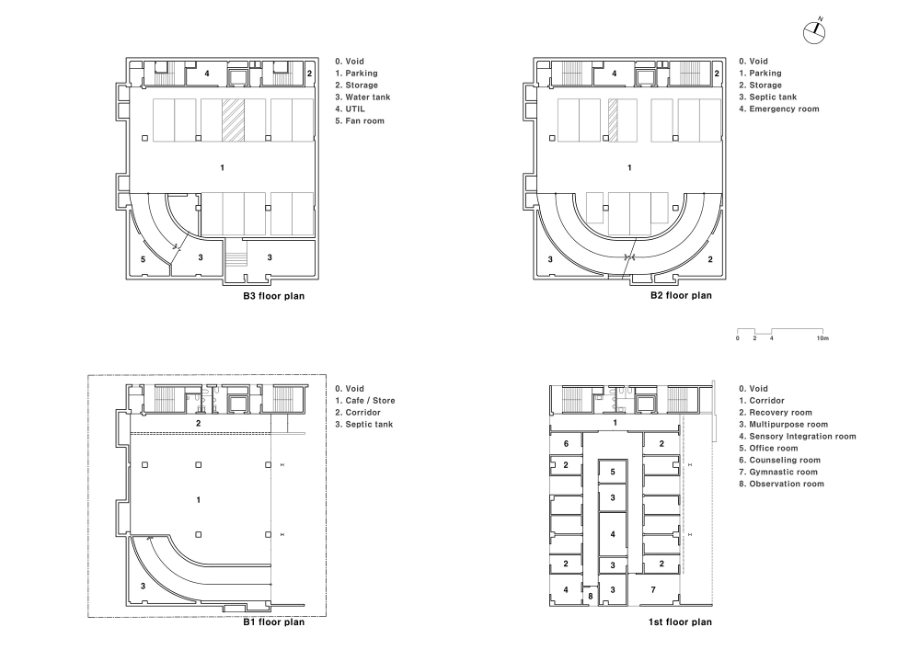
평면
반듯한 직사각형 평면을 기본으로 하지만, 코어 부분은 일부 매스에서 돌출된 형태이다. 돌출된 매스는 건물로 진입하는 사람들에게 입구 위치를 알려주는 작용을 하기도 한다. 3층부터는 건물의 중앙부에 남측으로 오픈 공간을 만들어서 보이드 공간과 테라스가 층별로 위치하여 복도에 자연광이 도달한다.
인테리어
건물의 인테리어는 최대한 단순하게 설계되었다. 각층의 용도와 성격에 따라, 흰색 페인트, 자작나무, 타일을 적절하게 사용하였다. 가구도 직접 디자인하여 건물과 일체화하는 것을 목표로 했다. 공용부분은 조도가 높은 다운 라이트를 사용했지만, 진료실과 병실, 휴게실과 같은 곳은 간접 조명을 최대한 적용했다.
디테일
재료들이 만나는 곳은 모두 1:1 마감이 되도록 하고 있다. 또한, 창문의 프레임은 벽면과 일치하도록 하여 창문의 프레임이 보이지 않고, 유리만 보이도록 하였다. 계단실이나 화장실도 최대한 단순화된 디테일을 사용하여 마무리하고 있다.◼︎


















