










Elevation

Elevation

Elevation
산과 숲으로 둘러싸인 넓은 규모의 대지 위, 곧게 뻗은 벽들이 켜켜이 겹쳐져 있다. 낮고 긴 벽으로 구성된 매스는 벽 너머의 형태와 용도조차 짐작하기 어렵게 만든다.
상업시설 혹은 문화시설로 연상되는 이 공간은 부부와 반려견들을 위한 삶의 공간이다. 건축주는 미술관 같은 주거공간을 원했고, 선형이 강조되는 디자인과 매트하고 차가운 느낌의 질감을 선호했다. 건축가는 오롯이 자연으로 둘러싸인 대지에 선형이 강조된 차가운 느낌의 매스를 계획하며 두 요소 사이의 양극성에 대해 고민했다. 고민을 해결하기 위한 일환으로 건축가는 이우환 화백의 ‘관계항’과 ‘조응’에 담긴 철학적 요소를 모티브로 사용하여 이를 건축적으로 재해석하고자 했다.









Section

Section
이우환 화백의 작품세계에서 중요한 요소는 관계이다. 그의 작품은 점, 선, 돌, 철판과 같은 단순한 요소들, 그리고 그 사이의 여백으로 구성된다. 그는 개별 요소들이 각기 고유한 주체로 존재하며 서로 관계를 맺는 동시에 관람객 역시 이 관계 속에서 매개체로서 중요한 역할을 한다고 말한다.







마찬가지로, 건축가는 주변 자연환경과 건축물 사이의 여백을 세심히 고려하여 단순한 매스의 건축물을 계획했다. 그 여백은 자연과 건축물이 상호작용하며 관계를 맺는 공간이 되고, 사용자 역시 그 안의 일부로 참여하게 된다. 이러한 과정 속에서 자연, 건축, 사람 간의 조화를 통해 건축주가 새로운 경험을 느끼길 원했다.








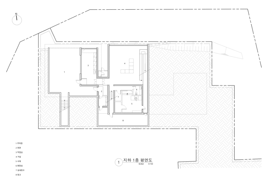
Plan_B1
주택 내부의 공간 구성 또한 단순하다. 크게 작업공간, 공용공간, 개인공간 세 개의 구성으로 이루어져 있다. 현관을 들어서면 블랙 컬러콘크리트로 만들어진 식탁이 제일 먼저 눈에 들어온다. 주방을 지나면 그 너머 커다란 통창을 가진 거실이 위치하며 통창을 통해 산 아래 경치를 시원하게 느낄 수 있다. 현관 오른쪽 긴 복도를 따라가면 부부를 위한 개인생활공간이 위치한다. 침실, PT룸, 욕실, 드레스룸, 세탁실이 효율적으로 이용할 수 있는 동선을 따라 배치됐다. 계단을 내려가면 지하1층에 서재 및 개인작업실이 위치한다. 1층과 지하 1층을 연결하는 반려견을 위한 슬로프 또한 이 주택의 특별한 요소이다.











Plan_1F
건축물은 땅에 고정된 변하지 않는 사물이 아니라 시간과 관계 속에서 끊임없이 변화하는 요소이다. 건축주의 손길이 깃들고, 시간이 흐르며, 그 관계 안에서 아름다운 세월을 담아내는 공간이 되길 바란다.◼︎




















