




Before

Elevation
본 프로젝트는 울산의 비교적 외곽이라고 할 수 있는 도심에 있는 근린생활시설 + 주택 건물의 리모델링이다. 건물은 각 층 45평, 전체 연면적 130평 정도 규모의 3층 건물로 1층과 2층은 근린생활시설로, 3층은 주택으로 쓰이던 건물이었다.
현장에서 처음 접한 건물은 도심 어디서나 보던, 전형적인 박스형 건물이었다. 다만, 삐뚤빼뚤한 필지가 많은 서울의 구도심과는 다르게 필지가 네모반듯하다 보니, 그것을 반영해서 건물의 평면이나 입면이 모난 곳 없이 딱 부러지는 직사각형 형상이라는 것이 특징이라면 특징이었다. 정면에서 본 건물은 각 층에 가로로 긴 창이 있었고, 저층부와 계단부는 비교적 큰 창을 두어서 채광과 개방성을 고려한 모습이었다. 전면에는 고급 재료인 화강석을, 측면과 배면에는 비교적 싼 재료인 스톤코트 뿜칠을 적용했었다. 2000년대 초반에 완공되어 20년 정도의 세월이 지난 건물이지만, 전면에 많은 간판이 붙은 건물의 상태는 그다지 좋다고 볼 수 없었다.





건축주는 한정된 예산을 가지고, 건물 외장에서는 단열재 추가와 외장재 및 창호 교체 / 내부에서는 3층 주거 부분의 인테리어 작업을 하고자 하였다. 리모델링 후에는 실제 거주를 목적으로 하고 있었다. 한정된 예산 안에서, 어떻게 최대한 가성비 있는 리모델링을 할지가 전체적인 설계과정에서 최대의 목표가 됐다.
여러 번의 미팅 끝에, 외장재는 정면에 외장용 타일과 석재, 측면과 배면에는 스타코플렉스 재료를 적용하기로 하였다. 정면에서는 창호의 라인들을 정리하고, 비교적 고급재료들을 적용해서 파사드의 분위기를 만들었다. 측면과 배면의 스타코플렉스는 그와 최대한 잘 어울리는 색상을 선정해서 깔끔한 분위기를 만들고자 하였다. 주 재료인 외장용 타일과 스타코플렉스를 포함한 전체적인 색상은 흰색 계통을 적용해서 밝은 이미지의 건물을 만들고자 하였고, 하단부에는 묵직한 색상의 석재를 사용해서 전체 건물의 무게를 잡아주는 역할을 하도록 했다. 외장용 타일은 일본에서 생산되는 정교한 패턴의 제품을 적용하였는데, 전체 건물의 인상을 깔끔하고 단정하게 만드는 데 큰 효과를 봤다. 창호는 PVC 재질의 고성능 시스템 창호를 적용해서 기밀성과 단열성을 확보하였고, 단열재는 외단열과 내단열을 동시에 적용해서 건물의 단열성능을 향상 시켰다.






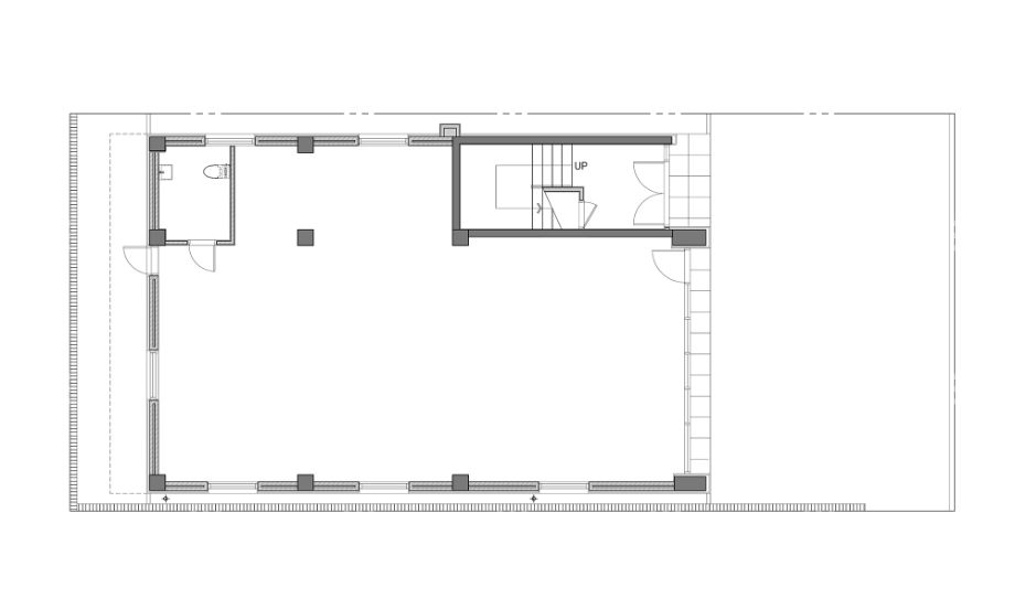
Plan_1F

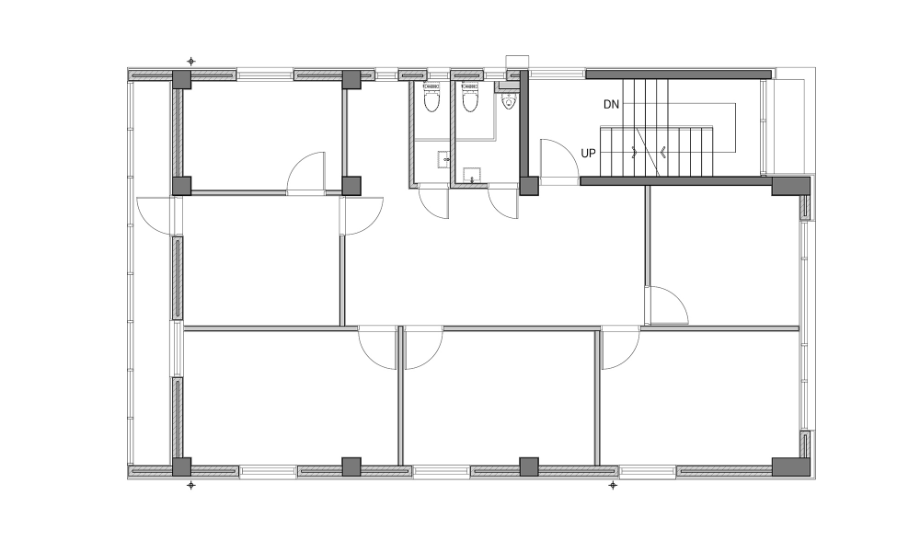
Plan_2F

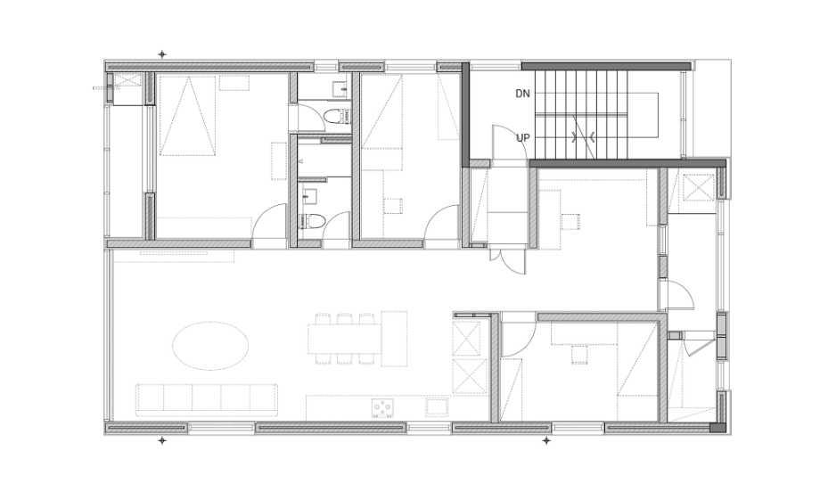
Plan_3F
기존의 내부 평면은 길쭉한 건물 형상 때문에 만들어진 과도하게 큰 거실과 구석에 박혀 있는 주방, 작은 창문으로 인해 채광이 잘 안되는 방 등 여러 가지 문제들이 있었다. 큰 거실에 주방과 식탁이 함께하도록 해서 면적을 적절히 분배하고, 기존 주방은 가족실 개념의 별도 공간으로 만들었다. 각 방의 창들도 좀 더 크게 확장하여 채광을 개선했다.
내부는 큰 장식 없이, 흰색 밝은 계통의 벽지로 벽과 천장을 마감하였고 그에 어울리는 밝은 계통 강마루로 바닥을 마감하였다. 전체 면의 평활도와 마이너스 몰딩 처리 등을 신경 써서 전체적으로 깔끔하고 단정한 분위기로 완성됐다.
본 공사는 건축주 직영으로 진행되었다. 허가 범위의 대수선 공사가 아니었기에 가능한 일이었는데, 각 공정마다 자재와 공법, 작업자의 수준, 단가를 비교 검토하고 적용하느라 건축주분께서 정말 많은 고생을 하셨다. 건축주분께서 무척 꼼꼼하고 치밀하게 작업에 임하셔서 웬만한 전문 업자가 한 것보다 좋은 퀄리티로 마무리되었다고 생각한다. 많은 과정에서 건축가의 의견을 믿고 따라주신 건축주분께 깊은 감사의 말씀을 전하고 싶다.
비교적 작은 규모의 리모델링 작업이었지만, 그에 따른 건물의 인상 변화는 정말 크다고 생각한다. 창호와 단열 보강에 따라 건물 성능도 크게 향상되었다. 그만큼 가성비 높은 결과물을 얻었다고 볼 수 있다. 거리에 환하고 밝은 건물이 들어섬으로써 얻는 인지도 상승 효과도 상당했다.
리모델링에서 반드시 굉장히 많은 비용을 들여야 좋은 결과물을 얻을 수 있는 건 아니다. 비용을 고려해서, 최대한 가성비 있게 재료와 공법을 선정하면 충분히 좋은 결과물을 얻을 수 있다. 물론 그 바탕에는 반드시 세심하고 좋은 설계가 있어야 한다. 구도심의 예전 건물을 가지고 계신 분들께서 이 정도의 리모델링을 해보신다면 예상보다 좋은 결과물을 얻을 수 있지 않을까 생각된다.◼︎


















