








Elevation

Elevation

Elevation

Site Plan
대지
대규모 아파트 단지들이 군집한 신도시의 단독주택 전용지역 지구단위계획 구역, 이런 동네의 지침은 지역에 상관없이 대체로 유사하다. 필지들은 반듯한 형태에 면적은 70~80평 내외, 인접한 도로 폭 6~8미터 내외로 기본적인 구획 체계가 균일하다. 그런 이유로 작은 필지들이 이웃하여 지침을 수세적으로 극복한 유사한 형상의 집들이 지어진다. 주차장 2면 확보, 인접경계선 이격거리, 일조권 사선을 적용하다보면 필지 대부분은 작은 마당이 조금 남고, 집 본채는 마당을 면해 ㄱ자나 일자형으로 배치된다. 지붕 경사도, 주요 재료, 건물 색감까지 지침에 명시된 현실이니 고민 없이 지침을 따라가다 보면, 처음에 원했던 집과 다른 결과물로 마무리될 수도 있음을 주시하면서 설계를 풀어갔다.




Section

Section
집에 대한 생각
건축주의 생각은 설계 방향을 잡는 가장 중요한 기준이다. 개인을 위한 주택이니 건축주의 생각만 잘 반영할 수 있다면 일단 만족이다. 핵심 사항이 해결되고 나면 나머지 조건들은 얼마든지 절충 가능하다. 무언가도 그러했다. 층별, 실별 요구사항들이 꽤 있긴 했지만, 하다보면 자연스레 해결되는 내용들이었고 정작 중요한건 크게 네 가지였다.
첫째, 추위를 많이 탑니다. 단열에 강하고 하자 없는 튼튼한 집을 원합니다.
둘째, 토지를 최대한 활용해 외관이 웅장해 보였으면 합니다. 성처럼 막힌 집도 좋습니다.
셋째, 중정이 필요합니다. 외부로부터 프라이빗한 집을 원합니다.
넷째, 거실, 주방은 하나의 큰 공간이 좋습니다. 큰 창문과 조망이 확 트이면 좋겠습니다.
첫째 조건을 제하면 나머지 셋은 하나로 묶일 수 있는 사항이었다. ‘튼튼하고 당당한 외관의 집이지만 외부의 시선은 최대한 막고 내부의 시선은 시원하게 연다‘ 개인 주택의 목표는 늘 비슷하다. 외부에 노출되는 프라이버시는 보수적으로 접근하고, 외부로 열리는 개방성은 극대화할 수 있는 집. 감추고 싶은 욕망과 드러내고 싶은 상반된 마음의 충돌, 그 모순을 잘 풀어간다면 이 집만의 특별한 정체성이 만들어질 것으로 상상했다.





벽과 담, 그리고 공간들
높은 벽은 수직이고 낮은 담은 수평이다. 대지 주변의 지배적 풍경인 대단지 아파트의 이미지는 수직적이다. 이에 대조되는 수평적 요소를 형태, 공간으로 강조하는 집이 된다면 아파트와 주택들이 겹쳐지는 동네 풍경에서 적절한 대비의 긴장감이 집의 윤곽을 확고히 만들어줄 수 있다고 판단했다.
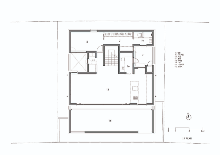
대지는 한층 높이이상 들어 올려진 성토 부지였다. 남쪽은 낮은 지대로 단지내 도로와 접하며 집의 자연스러운 지하층 출입구가 형성된다. 지하층은 취미실과 창고, 선큰, 현관이 있다. 계단을 통해 한층 오르면 갑자기 확 트여진 거실과 주방, 테라스와 그 너머의 열린 조망이 펼쳐진다. 대지 단차로 자연스럽게 만들어진 1층 테라스는 거실, 주방 공간과 면적이 동일하다. 큰 창을 통한 시각적 확장은 테라스를 실내공간의 연장처럼 느껴지게 한다. 테라스의 담과 벽은 외부 시선은 가리고, 불필요한 풍경은 트림해주는 역할이다. 거실, 주방의 넓은 실내와 테라스 그 너머의 하늘과 먼 산 능선의 풍경으로 시선이 크게 개방되도록 의도했다.










Plan_B1

Plan_1F

Plan_2F

Plan_RF
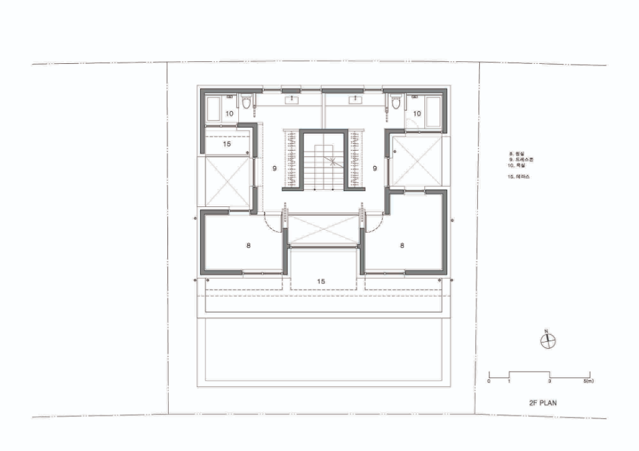
2층은 1층과 달리 오밀조밀한 벽체로 자녀 각각의 프라이버시를 최대한 보장하는 공간으로 설계했다. 각자의 침실이 좌우의 배치되는데 침실과 드레스룸, 별도의 욕실이 패키지로 묶이는 호텔 세미 스위트룸 형식을 적용했다. 성장한 자녀들이 각자의 넉넉한 개인 공간을 온전히 소유하길 바라는 부모의 의견이 반영됐다.
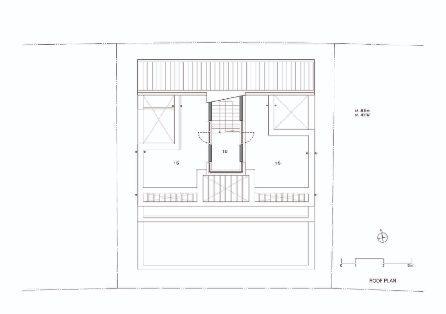
건물은 전체적으로 계단식이다. 2층은 1층보다 뒤로 물러서 테라스를 만들고, 그 위 옥상테라스도 셋백 되어 넉넉한 옥상을 만들었다. 층이 오르면서 집이 뒤로 물러나면 내부 공간의 시선은 더 열리고 외부시선 차단엔 용이해진다. 남쪽으로 충분한 일조와 조망을 확보하고 프라이버시는 효율적으로 해결해준다.
대부분 건축주들이 그러하듯 프라이버시 중요하게 생각하고 외부 시선은 막고 싶다는 가장 기본적 요구사항에서 출발한 집이다. 프라이버시를 해결하자고 좁고 깊은 중정을 만들고 외부로는 성곽을 둘러치듯 집을 감싸는 답답한 ㅁ자 배치는 벗어나고 싶었다. 막을 곳은 확실히 막고 열 곳은 확실히 여는 집, 풍부한 일조량과 시원한 조망을 갖춘 집을 상상하며 설계했다. 감추고 싶은 마음과 드러내고 싶은 마음의 조화랄까... 늘 그렇지만 한 가족의 워너비 주택을 설계한다는 건 그들 마음속에 있는 다양한 모순을 이해하고 풀어내는 과정이다.◼︎




















