




쇼룸은 ‘누군가’에게 목적물의 '무엇'을 보여준다는 기본적인 기능을 가지고 있다. 목적물은 브랜드의 제품일 수도 있지만 브랜드 자체일 수도 있다. 이번에 우리가 디자인을 진행한 쇼룸은 '한솔홈데코'라는 브랜드 자체를 '디자이너'에게 보여주는 곳이다. '한솔홈데코'는 MDF 제작을 시작으로, 현재는 가구재, 마루재 등 다양한 인테리어 마감재를 개발, 생산하며 30년 업을 지속해 온 기업이자 브랜드 이다. '한솔홈데코'의 모기업인 '한솔'이 제지 산업으로 일구어진 기업인 것을 생각하면 '한솔홈데코'가 가지고 있는 뿌리는 훨씬 더 깊고 단단하다고 할 수 있다.









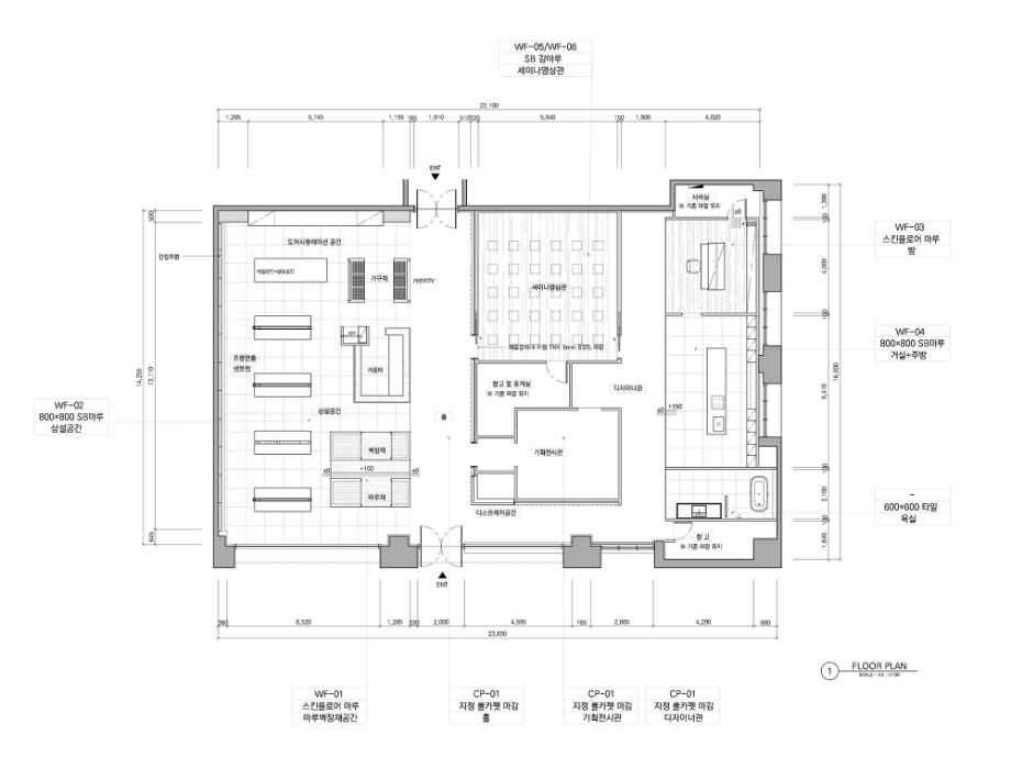
Plan_1F

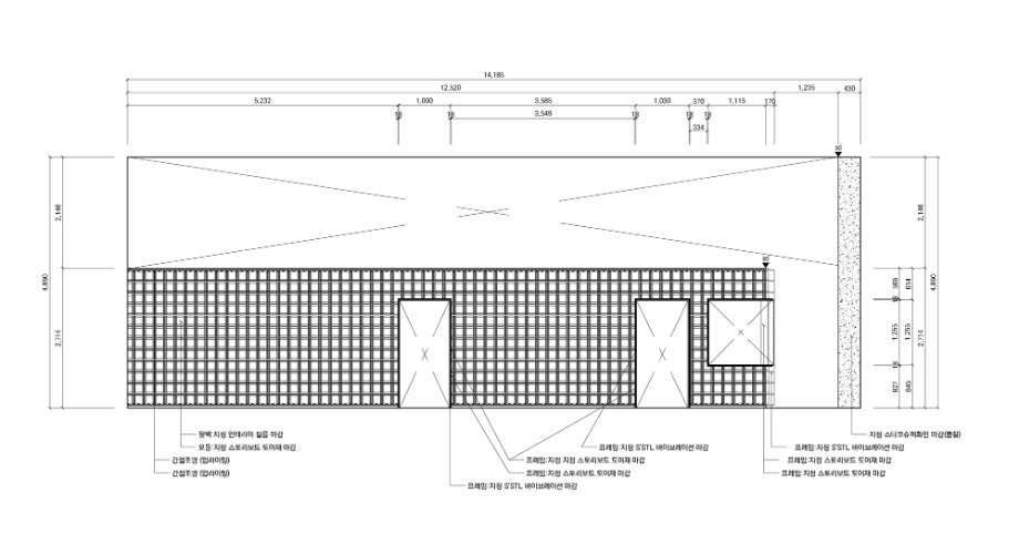
Elevation

Elevation
Museum of Hansol HomeDeco
'한솔홈데코'의 첫 번째 쇼룸을 만들어 가는데 있어 '누구'에게 '한솔홈데코'를 보여줄 것인가 라는 것은 무엇보다 중요한 사안이었다. 다행스럽게 이 부분에 있어서는 '한솔홈데코'와 공히 ‘공간 분야에 종사하고 있는 디자이너들 이라는 공감대가 바로 형성되었고, 다만 우리는 그 대상의 범위를 보다 더 예리하게 좁혀 ‘크리에이티브를 우선에 두고 시도를 아끼지 않는 디자이너들’이라 규정하였다. 그리고 그들에게 '크리에이티브', '디자인', '문화'라는 키워드를 담은 '한솔홈데코'의 이미지를 전달하는 역할을 이 쇼룸에 부여했다.
이 역할을 '한솔홈데코'가 온전히 수행하기 위해서는 '디자이너'들에게 익숙한 서비스 구조를 담아 접근할 필요에 대해 통감하였고 그 구조를 ‘미술관’과 ‘박물관’의 그것을 이식하고자 했다. 그래서 공간은 입구를 중심으로 ‘상설공간’과 ‘기획공간’이라는 2개의 영역으로 크게 쪼개져 있고 그 안에 콘텐츠를 담을 수 있는 작은 부분들로 구성되어 있다. 두 공간과 각 부분들은 시각적, 기능적으로 나누어져 있지만 서로 충돌하는 것이 아니고, 이야기의 플롯과 같이 동선의 흐름 안에서 각각의 역할을 하고 있다.







Structure & Texture of MDF
공간은 맥락 안에서 어우러지지만, 브랜드의 첫 번째 오프라인 공간이라는 상황에서 본다면 시각적으로 각인 될수 있는 디자인 언어가 보여져야 함이 중요한 부분인데 이것을 표현하는데 있어서 '한솔홈데코'의 제품이 그 역할을 하는 것이 의미를 갖을 수 있다고 생각했다. 그래서 MDF가 가지는 근본적인 구조와 특징을 드러내고, 제품의 생산 형태인 판재가 가지는 구조적 미감을 통해 보여주고자 했다. 이는 주거 공간 시장에 국한되어 활용되었던 '한솔홈데코'의 제품이 살짝 관점을 달리하면 다양한 공간에서 쓰일 수 있음을 보여주고자 하는 의지도 내포되어 있다.
공간은 담아야 할 것이 많아지면 많아 질수록 메시지의 농도는 옅어 질 수 밖에 없다. 브랜드에서 자신들 자체의 메시지를 담은 공간을 만든다면 내려 놓을 용기가 필요하다고 생각한다. 그렇게 만들어진 공간의 메시지는 단순하고 명확할 수 있다. 유구한 역사를 거치면서 보여줄 것을 많이 가지고 있는 기업과 브랜드에게는 매우 어려운 일이지만 '한솔홈데코'는 그러한 용기를 내었고 분명한 메시지를 담은 첫 번째 공간을 만들어 냈다. 이 첫 번째 공간이 '한솔홈데코'가 이야기하고자 하는 마침표 없는 장대한 서사의 좋은 서문으로서 역할을 잘 해내기를 바란다.◼︎




















