




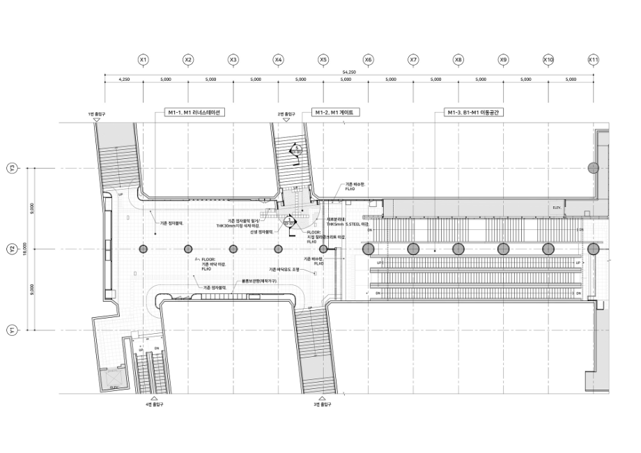
Plan_M1, B1
지하철역은 이용하는 대다수의 사람들에게는 일상과 같은 공간이다. 지하철역은 그 안에서 일어나는 행위 조차 일상의 범주에서 크게 벗어나지 않고, 공간이 주는 무난한 안정감은 마치 공기와 같아 그 공간을 이용하는 사람들에게 무감하게 스며들어 있을 것이다. 그런데 그 의식되지 않는 공기가 은은한 향기를 머금고 우리에게 다가 왔을 때, 그 순간만큼은 우리의 일상이 매우 풍요로워 지는 것을 진하게 느끼게 된다.
아마도 일상의 공간 또한 작은 움직임을 통해 그렇게 될 수 있다는 믿음에서 이 프로젝트가 기획됐을 것이라고 이 프로젝트에 참여하는 디자이너로서 최초 기획자의 의도를 헤아리는 것으로부터 우리의 일은 시작됐다.








Plan_M1
5호선 여의나루역에 기획된 '러너스테이션'는 프로젝트는 표면적으로는 지하철역이라는 공적이면서 분명한 기능의 공간에 새로운 기능을 하나 더 부여하는 프로젝트이지만, 우리는 새롭게 구현될 그것이 기존의 환경과 미적으로, 기능적으로 어떻게 잘 조화를 이룰 수 있는지 관계를 정의하는 프로젝트라고 생각됐다.
새롭게 구현된 공간은 그것대로 어필이 되는 것이 중요하지만 자칫 기존의 지하철역이라는 공간의 본질을 해치고 기능을 저해할 수도 있는 매우 민감한 자리에 놓일 수 밖에 없다. 그렇기 때문에 저희는 프로젝트가 가지고 있는 특수성으로 얽혀 있는 복잡한 이해관계와 배경은 모조리 걷어내고 온전히 '러너스테이션'을 사용하는 러너들과 '러너스테이션'을 보는 지하철역 이용자들, 즉 이 공간의 사용자에게만 집중하기로 다짐했다.









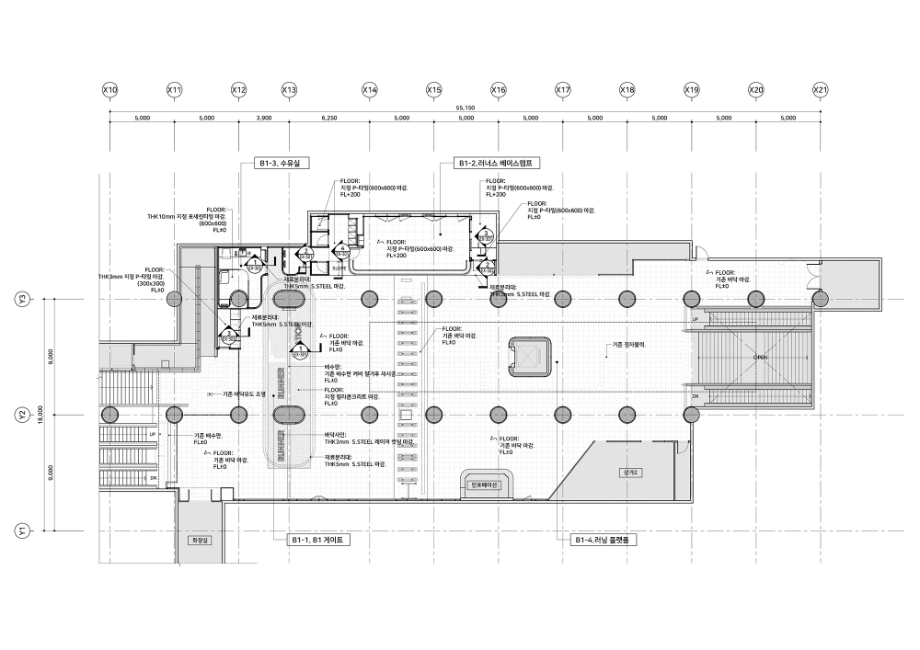
Plan_B1
우리는 공간의 사용자중 한 집단인 러너에게는 외면 받지 않는 공간이 되어 지속적인 이용의 선순환을 이루어내서 자생할 수 있는 것, 또 한 집단인 역 이용자들에게는 일상에서의 공기의 향기처럼 시각적 풍요로움을 위한 작은 계기를 만드는 것에 집중했다. 러너들을 위한 다양한 컨텐츠와 기능들에 대한 이야기와 아이디어가 오고 갔지만 결국 그들에게 가장 필요한 기본 기능을 충실히 구현하여 러너들의 안전하고 쾌적한 러닝라이프를 돕는 곳을 지향했다. 그리고 역 이용자들에게는 지하철역이라는 특수한 공간이기 때문에 매우 제한적인 가용 재료를 이용하여 기존 역의 톤앤매너를 살짝 비틀어 이용자들의 정서를 잠시 환기 시키는데 목적을 두고 디자인을 진행했다.
공공의 공간은 말 그대로 다양한 사람들을 수용하는 곳이다. 그렇기 때문에 프로젝트에 참여한 많은 이들은 더욱 더 공익을 위한 고민을 할 수 밖에 없다고 생각한다. '러너스테이션'이라는 곳이 자칫 일정한 집단을 위한 공간이라고 보여질 수 있지만 최초의 기획부터 진행 과정 안에서 많은 사람들에게 도움이 되는 공간을 만들고자하는 목적과 바람이 있었다. 공간을 만지고 사용하는 이용자와 지나가고 바라보는 이용자 모두에게 그 에너지가 전달되고 오랜 시간 함께 할 수 있길 바란다.◼︎


















