







Diagram

Elevation

Elevation
오래된 낡은 주택을 '에르메스Hermes' 라는 명품을 리셀(Re-sell)하는 판매공간이자 수선공간이자 사무실을 위한 공간으로 대수선하는 프로젝트이다.
설계의 시작은 무엇이 명품이라 불리는 제품의 본질이고 왜 사람들은 명품이라 불리는 제품들을 구매하는가 하는 근본적인 질문에서 시작했다. 그리고 그것은 건축에서 오랫동안 고전을 공부하고 참고하고 재해석하려고 노력해왔던 행위와 본질적으로 다르지 않다는 생각을 했다. 즉, 절대적 미 혹은 가치에 대한 기준으로서 오랫동안 쌓여진 시간과 그 안에 담긴 스토리 그리고 이를 바탕으로 만들어진 권위를 삼고자하는 것이다. 이것은 단기간의 성취에 의해 갖기 힘든 전통과 공감대를 제공한다. 이것이 아마도 명품이라는 것을 통해 가치있는 물건의 기준을 삼으려 하고, 고전이라는 것으로부터 아름다움이라는 것의 기준을 삼으려 하는 시도들의 이유라고 생각했다.








Section

Section
따라서 설계는 프랑스 파리에 위치한 Hermes 1호점에서 시작했다. 개점 이후 현재도 그 자리에서 운영중인 1호점이 입점한 르네상스시대 건물의 건축양식을 분석하고, 이를 지금의 관점으로 재해석하고자 했다. 이를 통해 우리는 시간을 거슬러 르네상스의 가치와 이어지고, 이는 다시 그리스/로마 시대의 건축적 가치와 연결될 수 있다고 생각한다.







계획과정은 우선 르네상스 'Palazzo'가 가진 3단 구성 등의 입면 구성원리를 분석하고, 이를 새롭게 구축할 건물 입면에 반영하는 것에서 시작했다. 여기에 절대적 아름다움이라 여겨져왔던 기하학과 비례를 사용하였으며 깊이감을 통한 투시도적 이미지를 연출하기 위해 입면에 깊이를 주었고, 격자체계가 갖는 효율성을 적용했다.
동시에 현대건축의 가장 큰 특징 중 하나인 투명성을 적용하여 입면과 내부공간을 하나로 통합하고자 했고, 간결한 형태의 조립식 입면 구축방식을 통해 고전이 갖고 있던 재료의 한계를 극복하고자 했다. 이러한 제안은 고전적 가치에 현대적 기술의 적용을 통해 연속성 있는 가치를 만들어 내기 위함이었다.










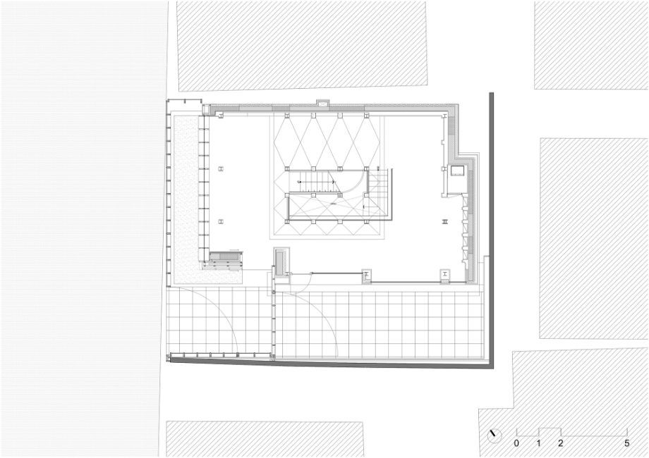
Plan_1F
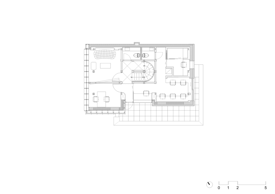
내부공간에서는 중앙의 계단을 하나의 오브제로 삼아 지하에서부터 옥상까지를 연결하고, 외부공간을 내부공간과 시각적으로 연결되도록 하였으며, 에르메스Hermes를 연상시키는 오렌지색을 사용해 오브제로서의 중심성을 강화했다. 그 외에는 무채색의 재료들을 통해 좁은 공간을 통일감있게 구성했고, 제품의 배경으로서 작동할 수 있도록 했다. 또한 내외부의 재료를 연속적으로 사용하여 외부 출입구나 외부마당까지 연속되는 공간으로 인식되도록 했다.









Plan_2F

Plan_3F
건축은 일견 단순하게 보이면서도 동시에 보는 이로 하여금 오랫동안 우리안에 내재되어 있는 아름다움이 느껴질 수 있기를 바랬다. 또한 반복되는 단순함속에서 공예스러운 정성이 읽혀지기를 바랬다. 그럼으로써 명품으로서 물건과 건축이 서로 공명하기를 또한 바란다.◼︎




















