
설계




'Knock the Door'는 1980년대 준공된 한양대학교 에리카 캠퍼스 본관의 대회의실 리모델링 프로젝트다. 이 공간은 오랜 시간 동안 중요한 행사나 귀빈 방문 시 사용해 온 장소였으나 이제 학생들과 직원들의 휴식 및 커뮤니티 공간으로 프로그램을 변경하고자 했다. 기존 공간은 당시 고급스러운 디자인과 재료를 사용하여 현재에는 고풍스러운 분위기로 권위적으로 느껴지기도 한다. 한양대학교 에리카 캠퍼스의 설립 때부터 현재까지의 시간을 고스란히 담고 있는 장소에 과거의 흔적을 보존하면서 현재의 변경된 사용자와 프로그램을 담고자 했다.





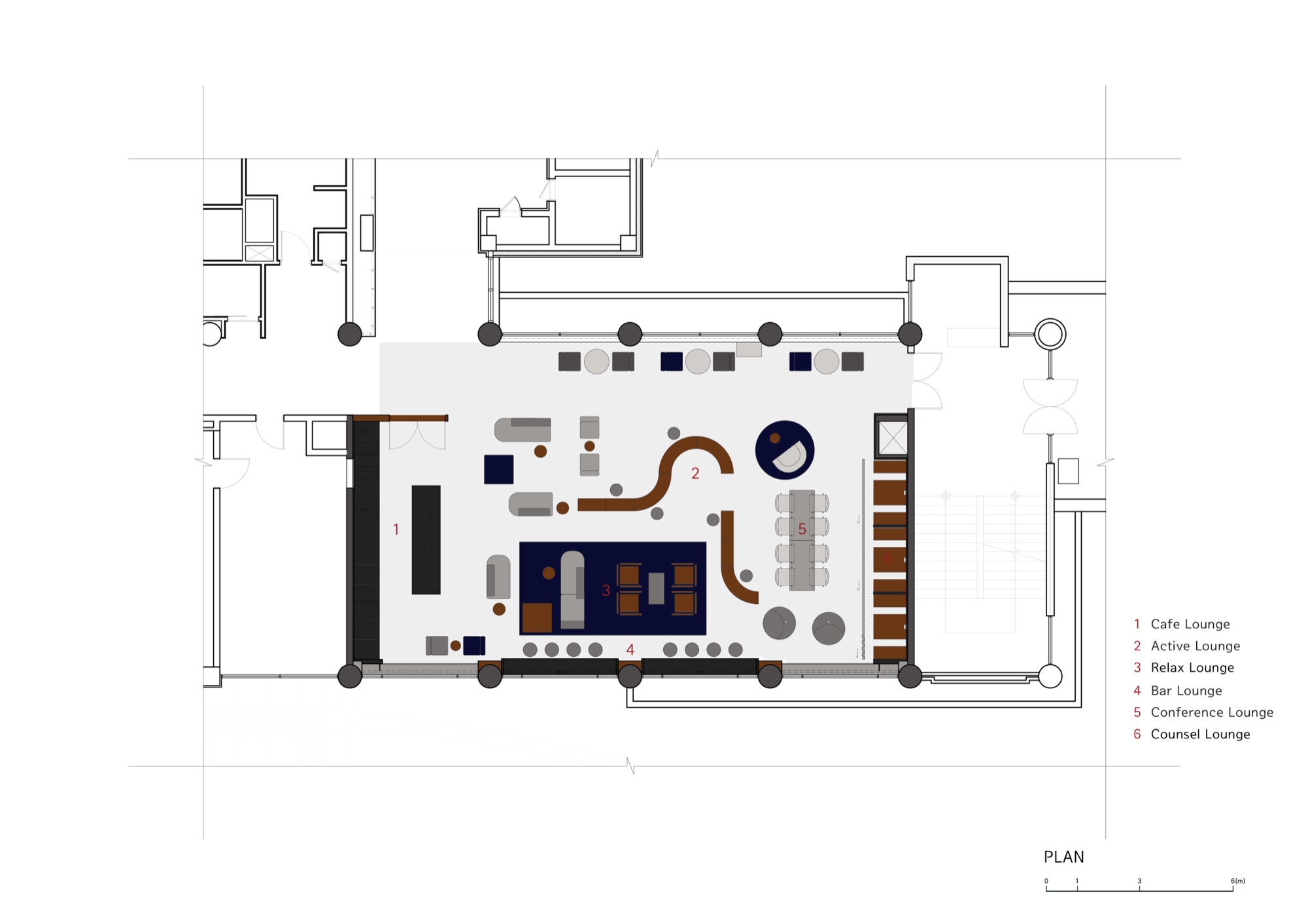
Plan
대회의실의 문은 마치 과거와 현재를 연결하는 의미로 공간과 공간 사이를 연결해주는 기능적인 문은 사라지고 시간과 사용자를 연결하는 문으로서 의미를 가진다. 대회의실을 복도와 맞닿은 벽을 철거해 개방감이 있는 열린 공간으로 계획했다. 하지만 기존 천정 일부와 우드 몰딩을 상징으로 남겨 전반적인 분위기의 통일성을 연출했다. 기존에 있던 우드 몰딩과 문을 존치하여 과거의 기억들을 지우지 않고 현대적인 것과 잘 섞어 과거와 현재가 동시에 존재하는 추억이 되는 공간을 기대했다.





Diagram
'Knock the Door'는 다양한 성격을 지닌 오픈 공간으로, 자유롭게 오고 가며 휴식을 취하고 학생들이 소통할 수 있는 환경을 제공하여 유연한 공간을 계획했다.
카페 라운지는 장애인 바리스타가 상주하는 개방형 카페로, 아일랜드 테이블과 주방가구로 카페 공간을 구성했다. 카페라운지는 천정 구조물을 설치하고 색상을 달리하여 분리된 느낌을 줬다. 영역이 분리되어 보이지만 벽으로 공간이 나눈 것이 아니기에 답답하지 않다.





Elevation
액티브 라운지는 사용자들이 휴식 공간을 어려워하지 않고 이용할 수 있도록 원형 벤치와 그네 의자를 두어 가변적이고 재미있는 공간으로 계획했다. 우드톤의 원형 벤치를 자유롭게 이동하여 목적 및 인원수에 맞춰 여러 가지 형태로 이용할 수 있다.
릴랙스 라운지에는 액티브 라운지보다는 좀 더 정적인 공간으로 소파와 4인 테이블, 2인 테이블, 러그 등을 두어 편안하게 담소를 나눌 수 있는 공간으로 계획했다. 한 공간 안에 다양한 성격의 휴식공간을 구성하여 다채로운 커뮤니티가 일어날 수 있도록 구성했다.




Elevation
바 라운지는 한양대 에리카의 호수와 잔디밭이 펼쳐지는 장면을 담은 공간으로 엠보드로 프레임을 맞추어 넣었고 그 속에서 창밖을 보며 여유를 즐길 수 있는 바테이블을 제작하였다.
회의 라운지는 많은 인원이 다 같이 앉아 대화를 나누거나 회의를 할 수 있게 큰 테이블을 두었다. 경직된 회의공간이 될 수 있었던 회의 라운지의 천정에는 원형의 천정구조물과 조명을 설치해 딱딱한 느낌을 없애고 편안한 소통의 공간으로 연출하고자 했다.
상담 라운지에는 독립적으로 사용할 수 있는 테이블 및 소파를 배치했다. 전면에는 메탈 소재의 메쉬 커튼을 활용해 답답하지 않도록 하며, 공간의 완전한 단절을 덜고자 했다.◼︎




















