



'모이핀 스카이'의 대지는 '핀란드의 아침'이라는 리조트가 있던 곳이다. 이 리조트는 남해의 아름다운 풍광과 인피니티 풀로 나름의 유명세가 있어 관광객들이 많이 찾는 명소였다. 리조트를 운영하던 건축주는 새로운 사업을 구상하다 리조트 앞 부지를 매입하여 '모이핀(안녕 핀란드)'이라는 카페를 유타건축사사무소와 함께 만들었고, 이 카페가 성공하며 리조트의 매출을 앞서는 경험을 하게 됐다. 이에 고무된 건축주는 기존의 리조트를 철거하고, 대형 카페를 짓기로 마음먹게 되었다. 대형 카페의 설계는 모이핀을 설계했던 유타 건축사사무소가 다시 맡게 됐다.




Elevation_A동

Elevation_B동
건축주는 고객들이 바다 풍경을 감상할 수 있는 디자인과 기존 모이핀 카페에서 경험한 주차 문제를 반복하지 않기 위해 주차대수를 최대한 확보해 달라고 요청했다. 경사도가 높은 지형은 주변 산세와 연속성을 가지며, 안정적으로 수년간 유지됐기에, 새로운 카페는 리조트가 철거된 후에도 기존 지형을 최대한 보존하는 방향으로 계획했다.




Elevation_A동

Elevation_B동
건물의 배치는 메인 건축물인 카페동, 직원들의 복지와 모이핀 1, 2호점의 관리를 위한 관리동 그리고 주차 전용 건물 2동으로 구성됐다. 기존의 리조트가 자리하던 평지 구간을 활용해 배치했고, 가장 넓고 바다 조망이 잘되는 위치에 카페동이 자리한다. 두 개의 카페동 사이에 관리동을 두었고, 건축물의 조망을 방해하지 않기 위해 두 개의 주차동은 제일 위쪽에 배치했다.




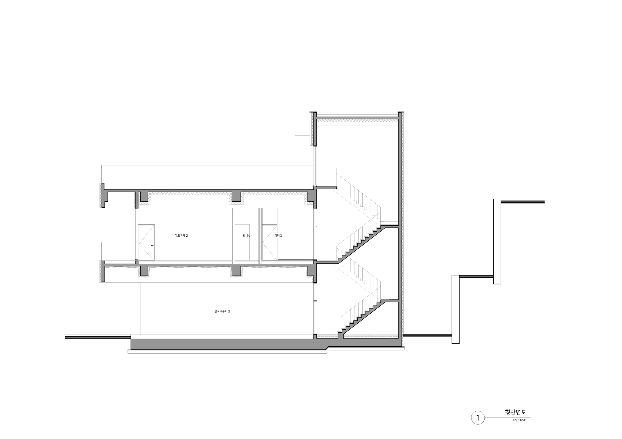
Section_A동

Section_B동
건축물의 디자인은 조망이라는 기능을 위해 벽체 대부분이 유리로 구성되어야 했다. 그 특성에 기인해 층과 층 사이의 공간은 비우고 바닥이 되는 부분만 드러내어 강조한 형태가 됐다. 드러나는 부분과 비워지는 부분의 대비를 극대화하는 방향으로 디자인 개념을 설정했다. 두꺼운 느낌의 슬라브가 공중에 부유하는 듯한 이미지와 층별로 다양한 너비를 가지고 반복되는 형태가 됐다. 단순한 요소로 표현되지만, 다양성을 가지는 개념이다.





Plan_A동_B1

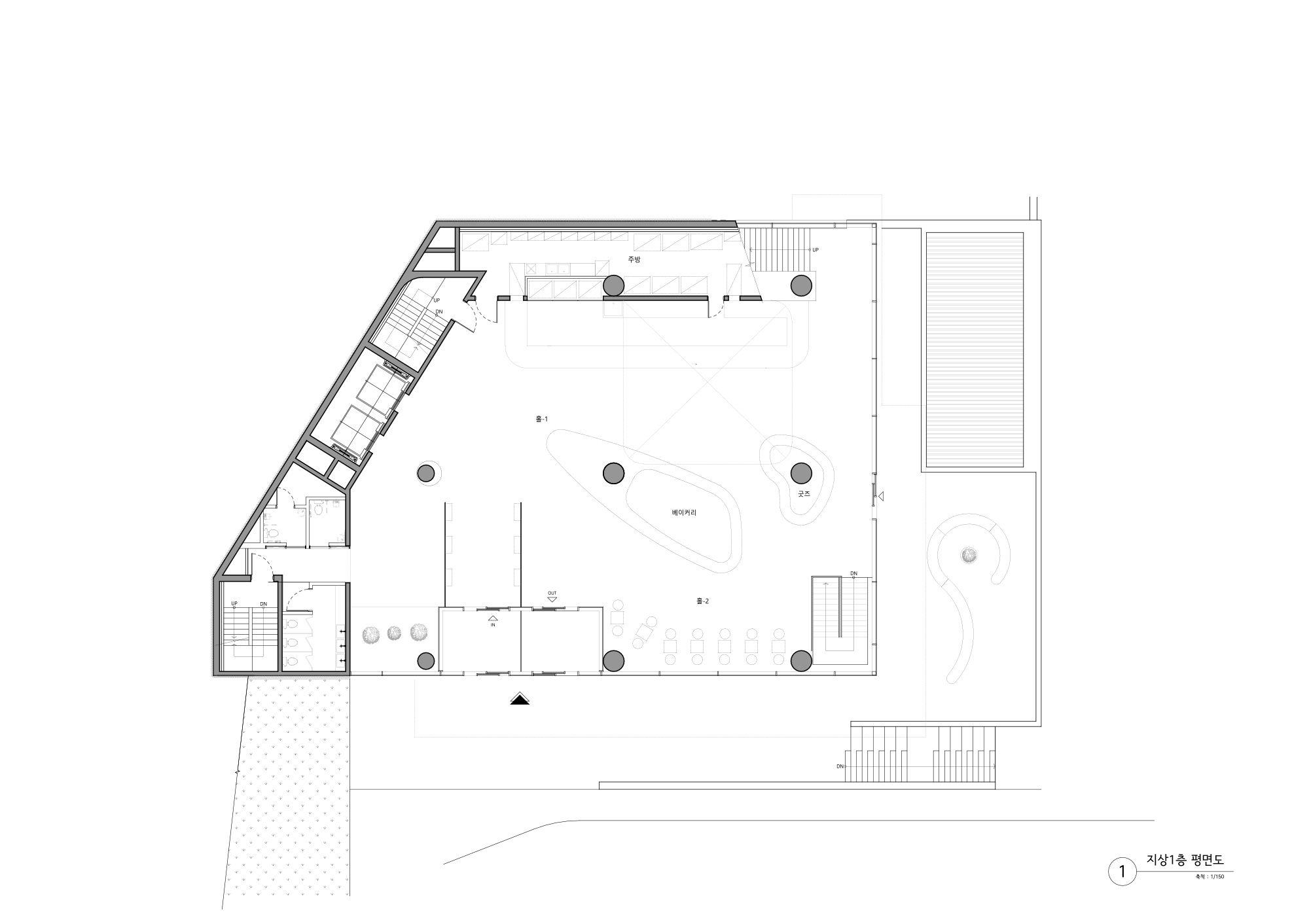
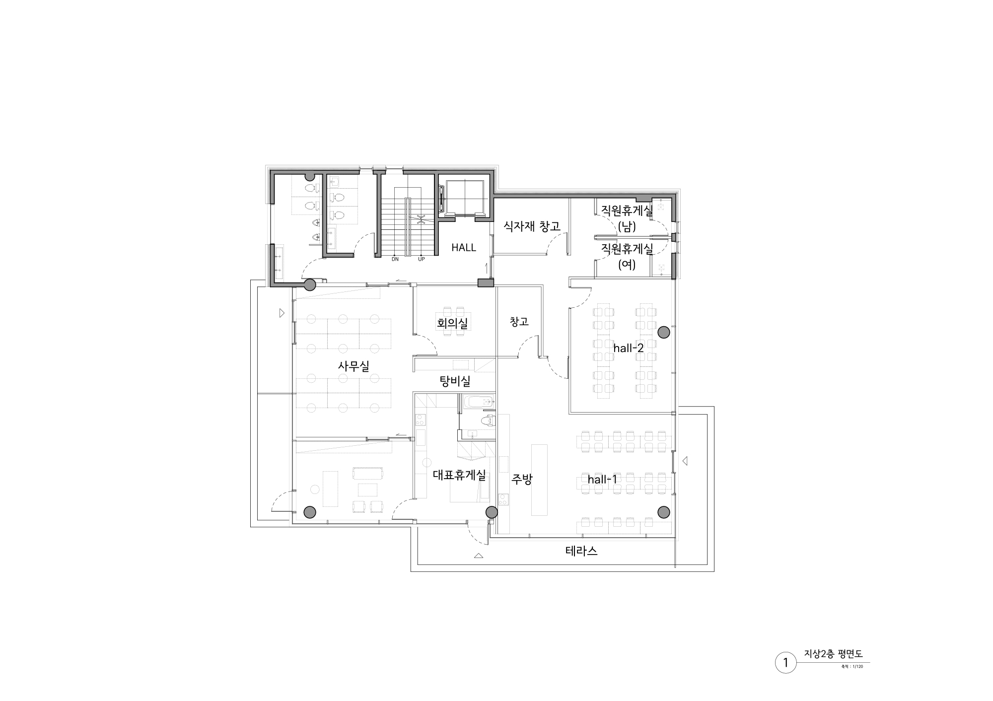
Plan_A동_1F

Plan_B동_1F
반복되는 판은 내부 공간과 외부 공간으로 구분되며, 기둥이 드러나지 않는 외부 공간은 바다를 방해물 없이 감상할 수 있는 훌륭한 장소다. 이 외부 공간은 고객들이 여유 있게 즐길 수 있는 충분한 너비를 확보하는 것이 중요했다. 이를 위해 '캔틸레버'라는 구조 시스템을 사용했다. 보통 아파트 발코니 폭인 1.5m를 일반적으로 많이 사용하지만, 모이핀 스카이에서는 6m라는 압도적인 캔틸레버 구조를 사용해 바다 조망을 위한 개방감 있는 외부 공간을 실현했다. 고도의 기술이 필요한 작업이어서 구조기술사와의 긴밀한 협업과 구조심의라는 추가적인 인허가 절차를 거쳐야 했다. 디자인 실현을 위해 더 많은 시간과 노력이 수반되었지만, 고사를 시작하고 건축물이 형태를 드러낼 즈음에 받게 된 감동은 그보다 더 진했다.





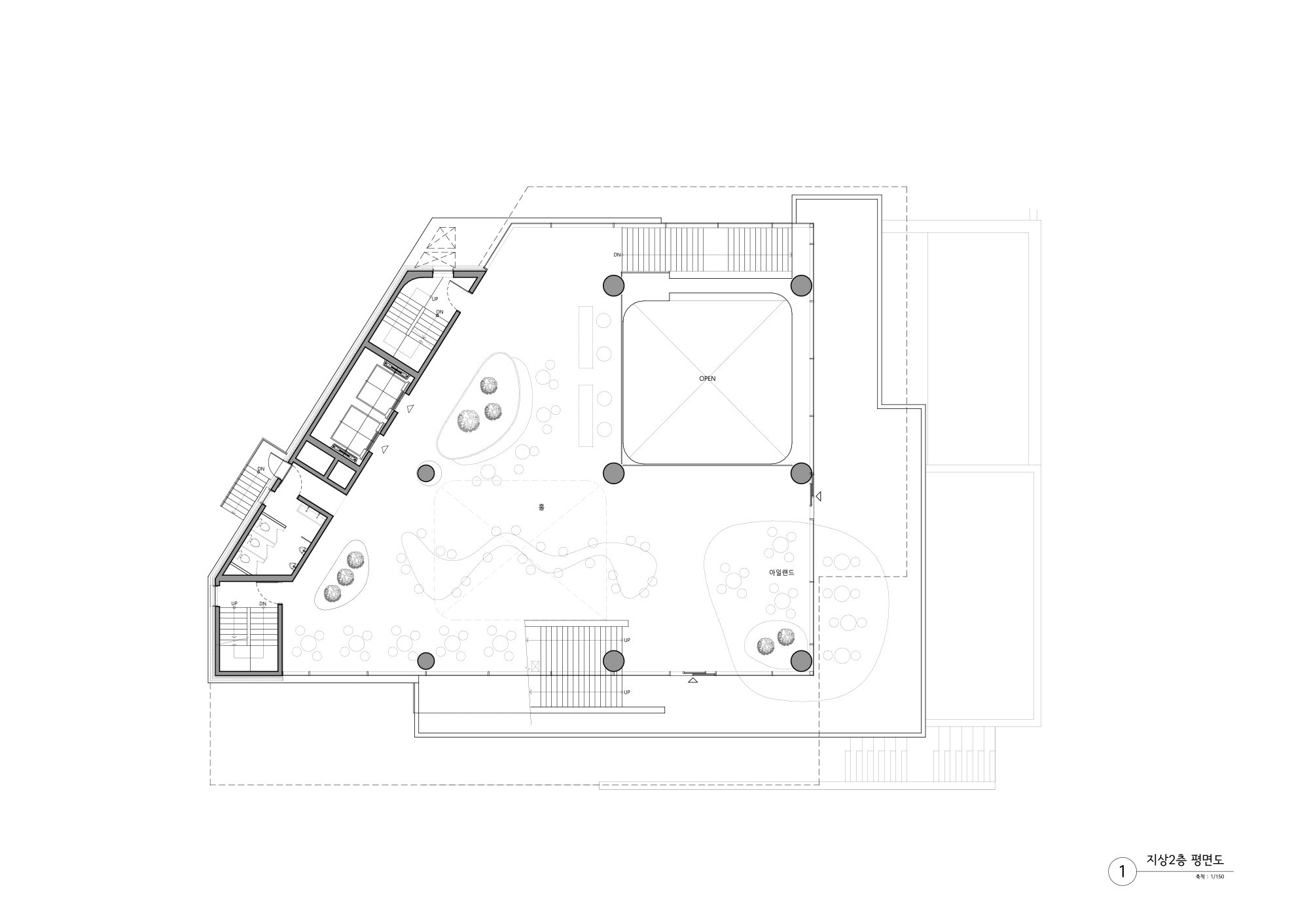
Plan_A동_2F

Plan_B동_2F
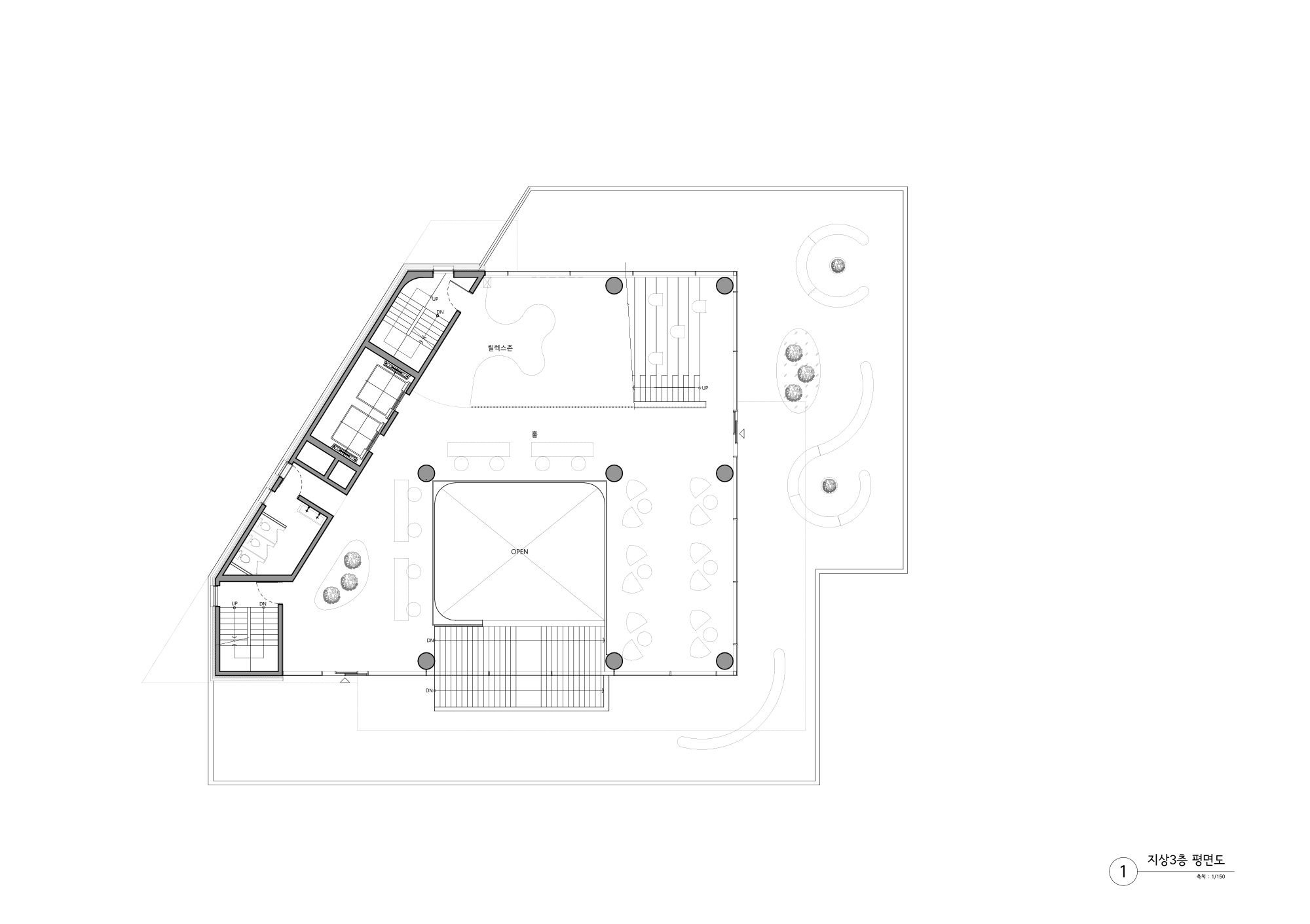
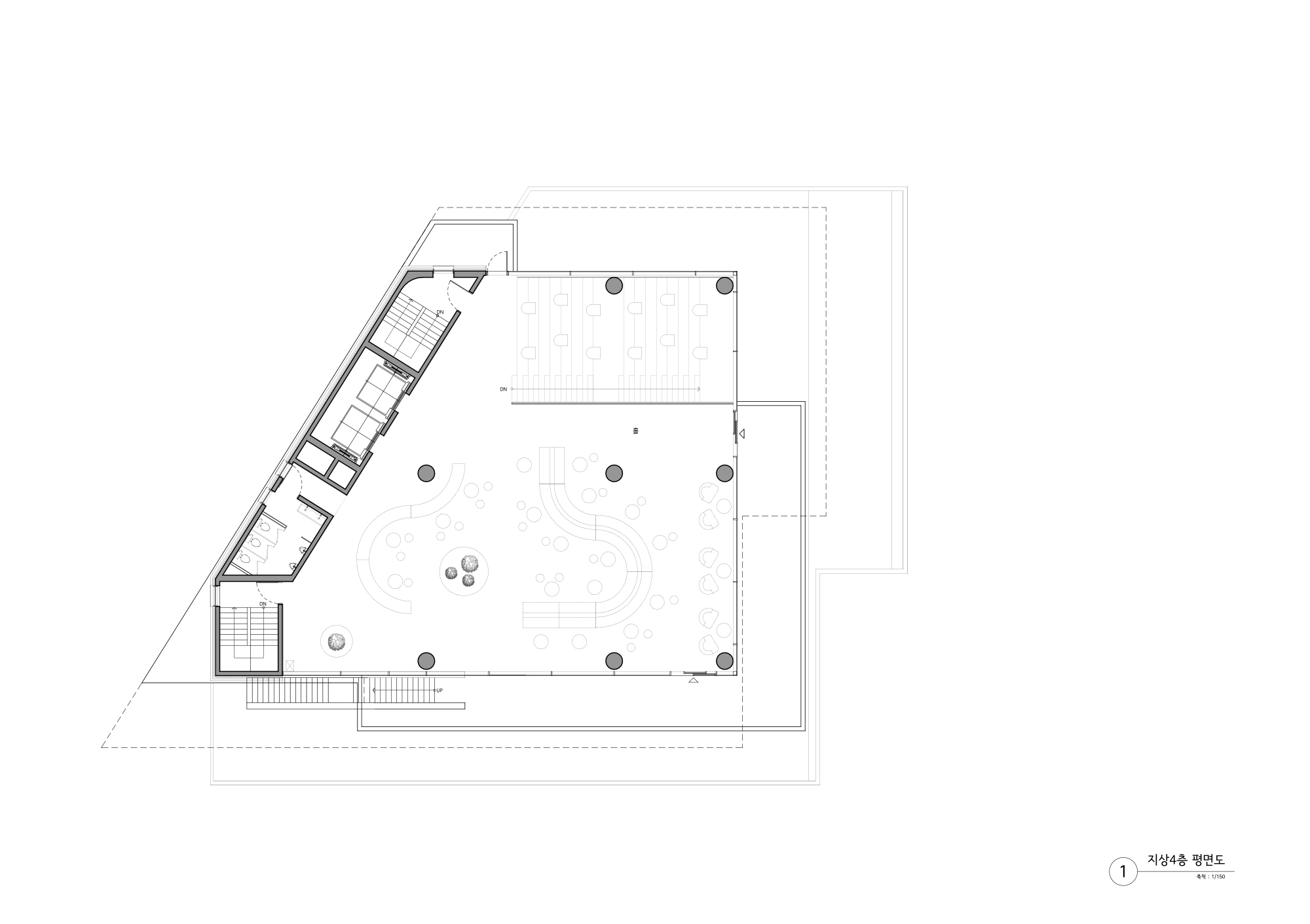
내부 콘셉트는 외부가 가지는 개방적인 이미지를 내부에서도 연속해서 느낄 수 있도록 하는 것이었다. 건축의 디자인이 내외부가 같은 지향점을 가지고 표현되는 것이 공간을 이용하는 사용자들에게는 단순하지만 명확한 경험을 제공한다. 1층 로비에 진입하면 카운터 상부는 곡선의 열린 공간과 거대한 샹들리에가 맞이하는데, 바로 옆에 설치된 대형 계단을 통해 1, 2층 공간이 연속되는 느낌을 받는다. 열린 공간을 위치를 서로 달리하며 4개 층이 동일하게 반복되는데, 이는 외부에서 보이는 동일 요소의 다양한 반복 개념과 같은 맥락을 보여준다. 수평적으로는 내부 공간, 테라스, 바다로의 연속성 있게 연결되고, 수직적으로는 4개 층이 곡선형의 열린 공간과 계단이 연속되며 사용자는 수평, 수직 공간의 시각적 확장감을 경험할 수 있다. 인테리어에 사용된 마감재의 색채 분위기를 통일하는 것, 세심하게 선택된 가구, 소품들 또한 공간의 완성도를 한 층 높이는 데 일조했다.





Plan_A동_3F

Plan_A동_4F
건축물 사용 승인을 완료한 며칠 후, 건축주에게 카페 영업이 매우 잘 되고 있다는 소식을 들었다. 건축사님 덕분이라는 건축주의 한 마디는 설계자에게 최고의 보상이다. 며칠 전 건축주에게 또 다른 프로젝트를 의뢰받게 되어 여수를 다시 방문했는데, 준공 후 오랜만에 모이핀 스카이를 찾았다. 항상 현장에서 공사 중인 모습만 보다가 고객들이 공간을 사용하는 모습을 보게 됐다. 평일임에도 불구하고 방문한 많은 사용자의 밝은 표정은 건축 설계를 직업으로 하는 사람에게 최고의 보람을 느끼게 했다. ◼︎


















