




Diagram_Cartoon
더 넓게, 더 높게, 더 싸게
‘더 넓게, 더 높게, 더 싸게’라는 꽤 익숙한 요구는 오늘만의 이야기가 아니다. 재산으로서 부동산 가치와 관계를 땔 수 없는 건축에서 건폐율과 용적률의 최대 면적을 찾아내는 것은 중요한 과제기도 하다. 2016년 베니스비엔날레 건축전 한국관 전시 테마는 ‘용적률 게임’이었고, 지난 50년간 한국 도시건축의 최대 용적률을 위한 노력을 다루었다. 당시 낮아진 금리와 상대적으로 높아진 지가는 토지를 담보로 한 대출을 통해 건축비를 지급할 수 있게 했다. 건축주의 부담이 줄자 다세대 주택 시장이 늘어났고, 이런 흐름에서 많은 건축가가 용적률 게임과 같은 다양한 방법론을 구현했다.




Diagram_Axonometeric

Diagram_Site
하지만 아름답게
2024년이 끝나가는 오늘의 상황은 달라졌다. 장기간 지속된 코로나와 글로벌 전쟁의 영향으로 금리가 오르고, 대출은 어려운 상황에서 시공 비용은 크게 상승했다. 반면 시공은 산업구조와 세대 변화로 현장 기술자의 고령화가 지속되어 품질기준 평준화가 어려워지고 있다. 이렇게 변화하는 상황 속에서 건축 볼륨은 최대화하고 비용은 최소화하며, 상대적으로 시공성은 높일 수 있는 해결책과 고민이 필요했다. 이 모든 것을 감내하더라도 미적 감각은 건축주도 건축가도 포기할 수 없는 중요한 사안이다.



Elevation

Elevation

Before

Before

Diagram_Before & After
더하기 게임
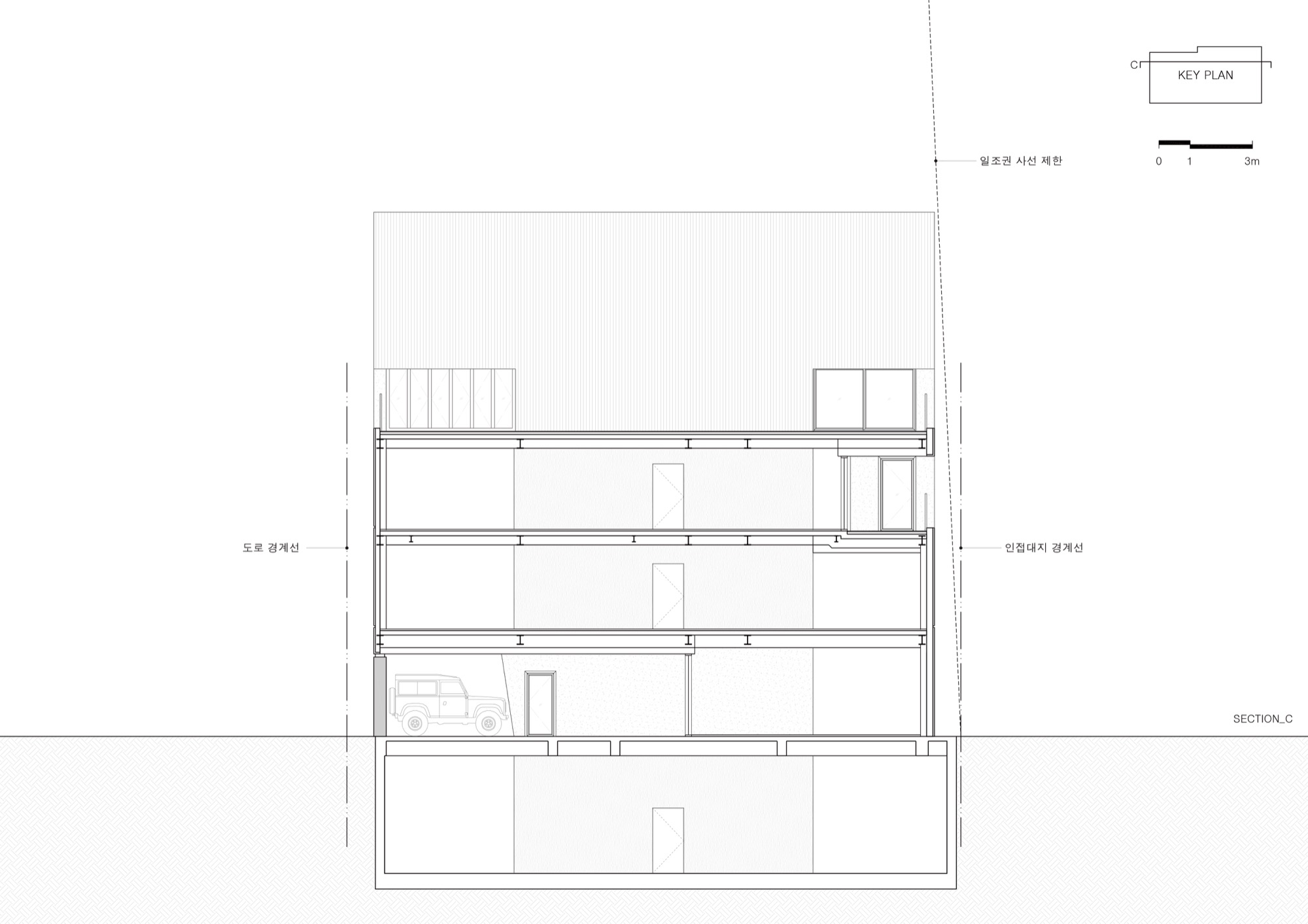
대지는 도로사선제한과 일조권을 위한 정북 방향 사선제한에 삼각뿔 형태의 건물이 기존에 자리 잡고 있었다. 도로사선제한은 2015년에 폐지됐고 정북 방향 사선제한 높이는 최근 9m에서 10m로 완화되었다. 이렇게 기존 대지의 최대 볼륨을 늘릴 수 있는 여유가 생겼고 도로 사선으로 불편했던 경사 벽체 공간의 일부는 건폐율과 용적률을 채우면서 수직으로 바꿀 수 있게 되었다.




Section

Section
용적률 게임 슬로건 같이 건축물 형태는 해당 대지의 최대 볼륨으로 키워졌다. 1층은 주차대수를 제외한 면적을 실내로 만들어 주고 3층까지 수직으로 올리니 일조권 사선제한으로 4층부터 테라스와 경사지붕이 생겼다. 비용을 최소화하기 위해 기존 코어를 비롯하여 서쪽과 남쪽은 최대한 유지하고 동쪽과 북쪽을 철거하여 새로운 철골구조로 추가적인 공간을 확보했다. 추가로 연면적에 포함되지 않는 1m 처마 깊이를 활용하여 각층에 테라스도 확보했다. 건폐율과 용적률 확보를 위한 치열한 ‘더하기 게임’ 이었다.



Site Plan

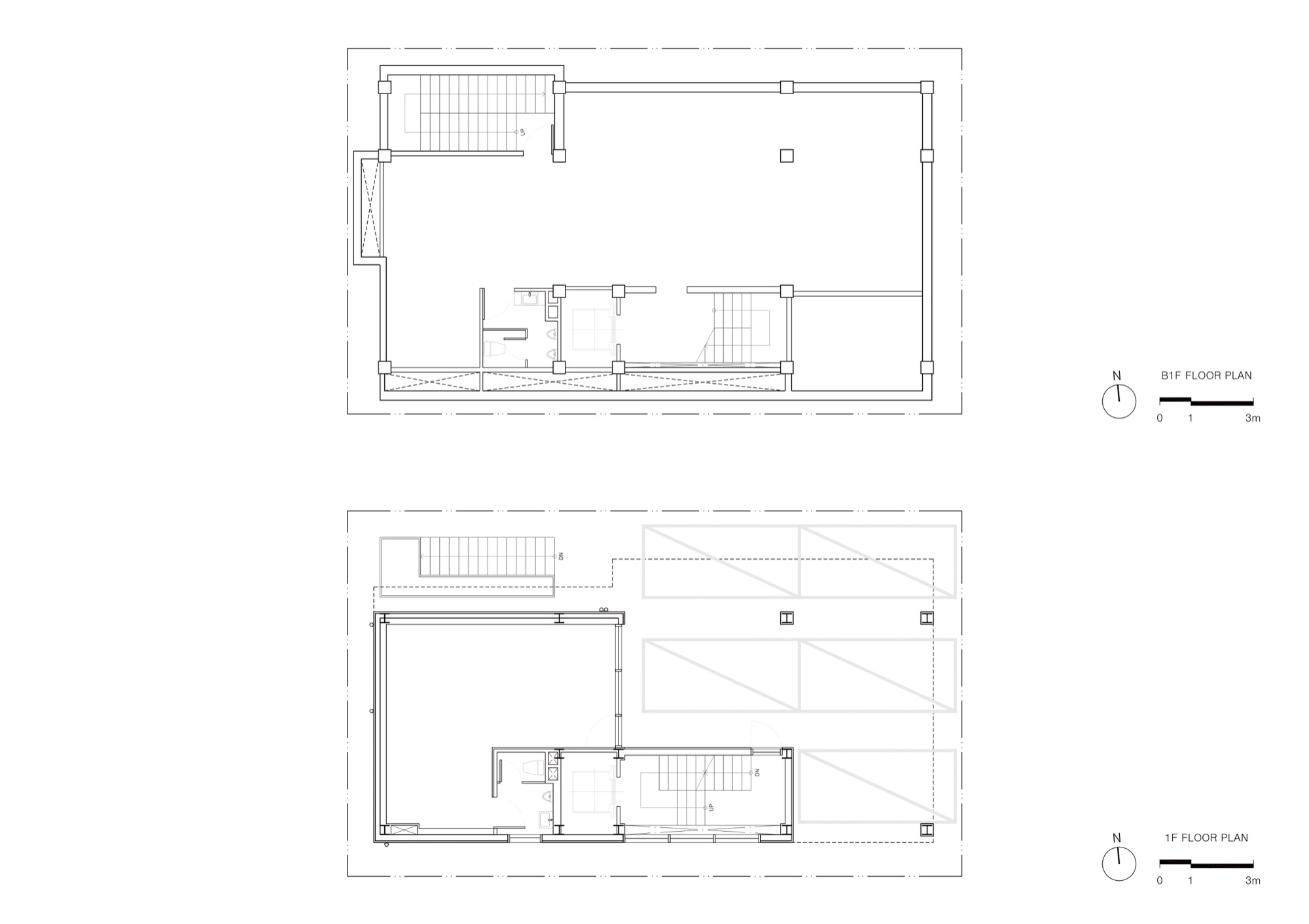
Plan_B1, 1F
빼기 게임
반면 시각적 디자인은 ‘빼기 게임’이었다. 최소한의 요소와 기성품을 활용하여 단순화하려 했다. 단열의 기준을 맞추면서도 공법을 최소화하기 위해 건식 공법인 준불연 우레탄 패널(샌드위치 패널)을 외벽으로 활용했다. 테라스에는 시공성이 용이하고 배수에 유리할 수 있도록 페데스탈을 활용하였으며 경사면은 방수 위에 골강판 한 겹만 덧씌워 최소한의 건식 공법으로 유지관리에 유리하게 했다. 우수관도 기성품을 활용하여 유지관리가 쉬우면서 디자인에 어우러지게 노출했다. 그리고 노출콘크리트 같은 외관을 원했던 건축주의 의견에 따라 외단열 시스템을 사용하여 날것의 샌드위치 패널 위 도자기의 유약과 같이 콘크리트를 정성스레 발랐다. 창호 역시 인접 대지에서 이웃과 최대한 간섭을 피하는 기준을 우선으로 삼고 채광과 환기 그리고 소방관 진입 창으로 필요한 만큼만 최소화했다.


Before



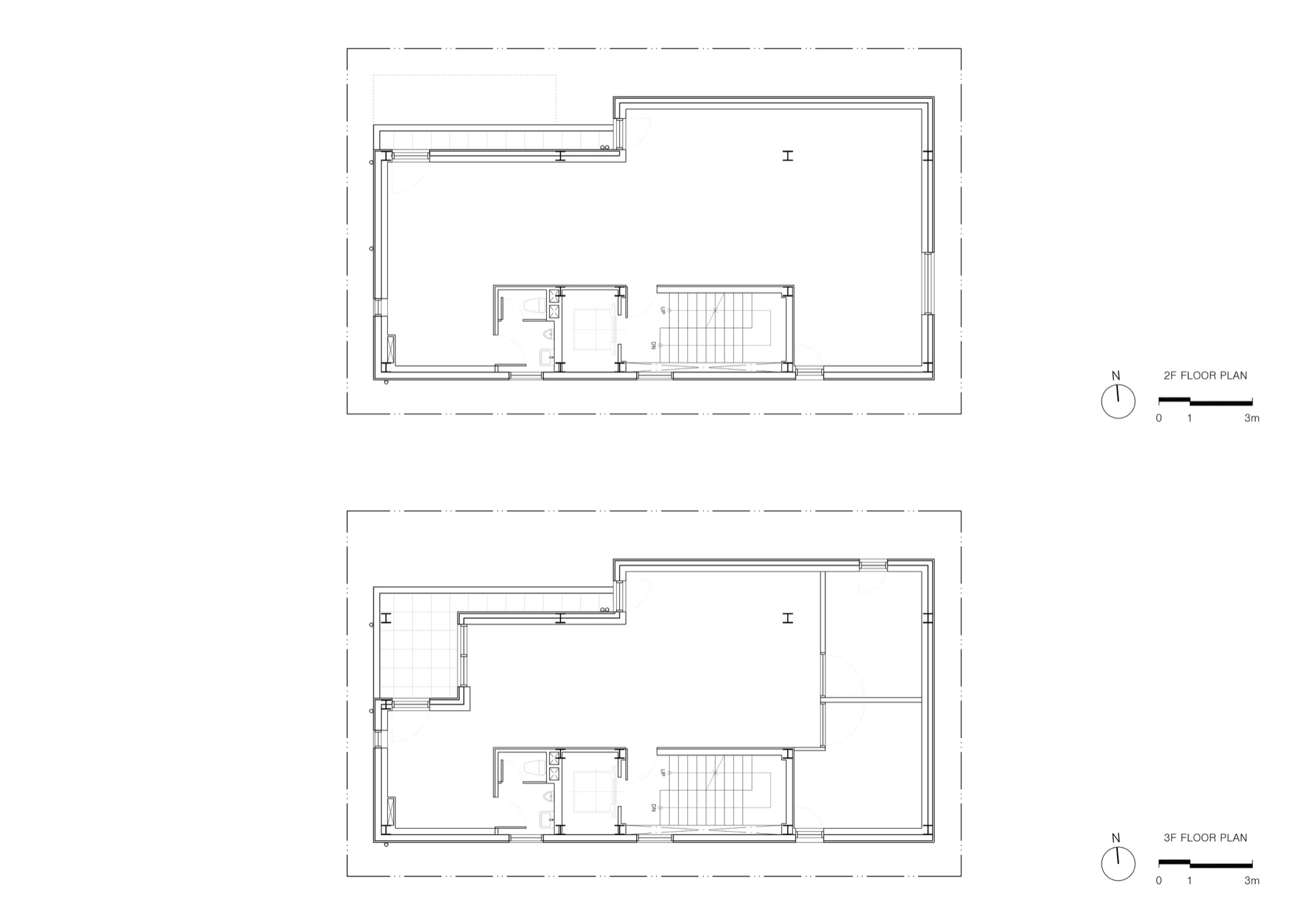
Plan_2F, 3F
이스터 에그
철골 건물을 콘크리트 건물처럼 보이고자 의도적으로 디자인했지만, 철골건물의 실체들을 틈틈이 숨겨 두었다. 전면 창을 통해 보이는 내부 천정의 철골구조와 필로티 기둥의 틈으로 보이는 날것의 H빔은 콘크리트처럼 보이는 이 건물의 실상을 보여주는 요소들이다. 딱딱하고 삭막해 보일 수 있는 겉모습에서 해학의 민족으로서 약간의 해학으로 남겨두었다. 물론 이러한 부분은 건축가들이나 알아보고 싱겁게 웃을 수 있는 정도의 소심한 이스터 에그다.






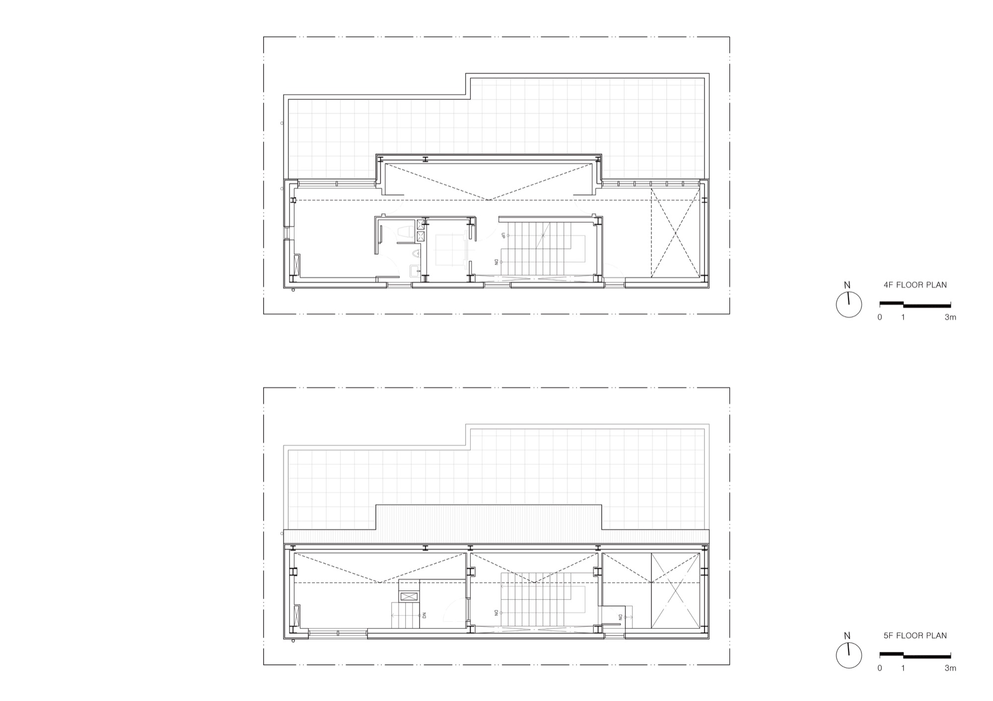
Plan_4F, 5F
외줄타기
대수선은 제한적 공사범위도 단점이지만, 노후화 상태에 따른 변수가 프로젝트의 계획에 큰 영향을 미친다. 소규모 건축물 일수록 변수로 인한 증액 비율이 높다. 그래서 대수선은 외줄타기 같다. 이번 프로젝트는 다행히도 상대적으로 낮은 비용으로 기존 건축물을 대수선하여 사용성이 좋고 쾌적한 공간으로 탈바꿈할 수 있었다. 완벽한 해법은 없지만 빠르게 변화하는 시대와 사회 속에서 벌어지는 다양한 상황들에 적절한 해결책을 찾아가는 것은 건축가에게도 건축주에게도 중요하다.◼︎




















