
사진




Diagram

Diagram

Diagram

Diagram
대지는 광진교 남단에 위치한 사다리꼴 형상의 땅으로 오랜 시간 개발되지 못하고 나대지로 방치되었던 곳이었다. ‘천호동 공구거리’라 이름 붙은 앞길의 풍경은 다소 번잡했지만, 건물이 올라가면 분명 멀리 아차산을 배경으로 한강 물의 들고나는 풍경이 그림처럼 바라보일 게 분명했다. 전면도로와 3.6m 단차를 가진 이면도로는 별도로 땅을 더 파지 않고도 지하 주차장으로 쓰이기 용이한 구조였다. 이곳에 사옥을 짓기로 결심한 건축주는 지형을 그대로 활용하여 공사비용과 기간을 최대한 줄여 빠른 시간 내 입주를 희망했다. 근린생활시설의 특성상 평면적으로는 법규와 경제적 논리가 많은 것을 결정할 수밖에 없기에 입면과 재료적 표현에서 더 많은 고민이 필요했던 프로젝트였다.




Elevation

Elevation
건축주는 TBM(Tunnel Boring Machine)을 이용한 지하터널 및 전력구 공사를 주력으로 하는 국내 굴지의 토목건설사다. 현재 사용 중인 사옥 역시 10여 년 전에 직접 지은 건물이지만 회사의 고유한 가치를 담기에 조금은 평범해 보였다. 회사가 성장세에 있는 터라 규모가 커지면 언제든 매각하고 다른 사옥을 얻을 요량이라고 했다. 사용주체와 목적이 제법 분명한 건물임에도 추후 다른 용도로 사용될 수 있는 범용성까지 고민해야 했다. 그럼에도 회사의 고유한 가치만큼은 건축에 꼭 담겼으면 좋겠다고 생각했다. 건축주의 요구라기보다는 한 분야에서 오랜 시간 독자적인 입지를 다져온 한 기업의 격에 맞는 집을 지어주고 싶은 건축가의 순전한 욕심이었다.



Section

Section
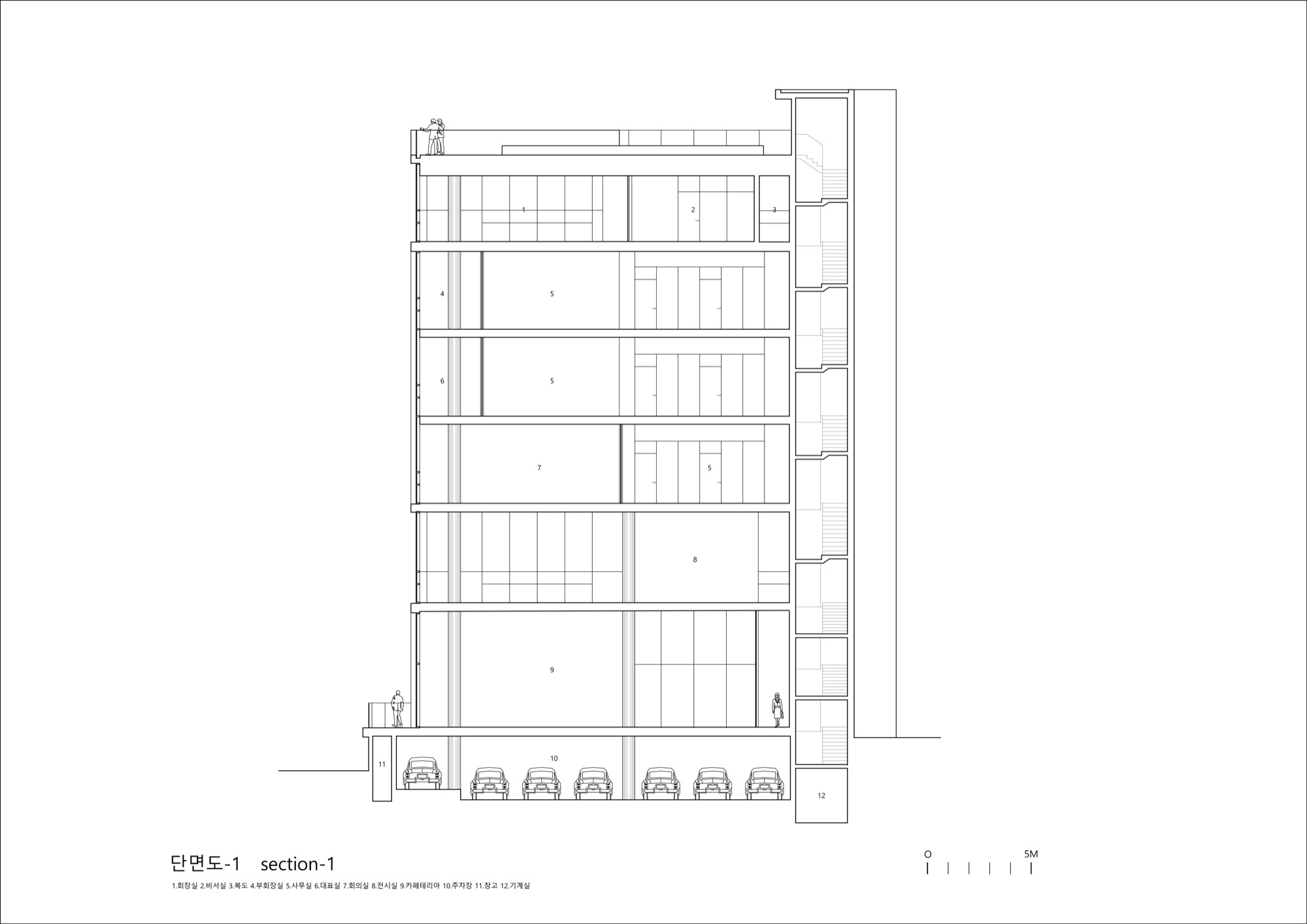
‘콘크리트 라이닝(Concrete Lining)’은 터널 공사 시 가장 안쪽에 시공되는 콘크리트 구조물을 일컫는 용어다. 일정한 두께로 매끈한 곡면을 형성하는 콘크리트 부재는 그 자체로 터널의 구조이자 마감이고 곧 내부 공간을 규정하는 유일하고도 고유한 매개체다. 나는 설계 과정 중 자진하여 지하 터널 공사 현장들까지 답사해 가며 건축주와 그 회사에 대해 공부했다. 그러고는 곧 콘크리트 라이닝의 매력에 매료되어 이를 사옥의 건축으로 담아내고자 결심하기에 이르렀다. 대지에서 솟아오르듯 시작되는 450mm 두께의 노출콘크리트 구조체는 바닥, 벽, 천장을 넘나들며 전 층의 모든 공간을 아울러 규정한다. 이러한 행태는 건물의 측면에서 그대로 노출되어 마치 터널의 단면을 보는 듯한 착각마저 불러일으키며 그 자체로 회사의 정체성에 대한 상징이자 다른 건물들과 차별화하는 디자인이며 건축의 공간 구성원리를 솔직하게 드러내는 수단이 된다.



Site Plan

Plan_1F

Plan_3F
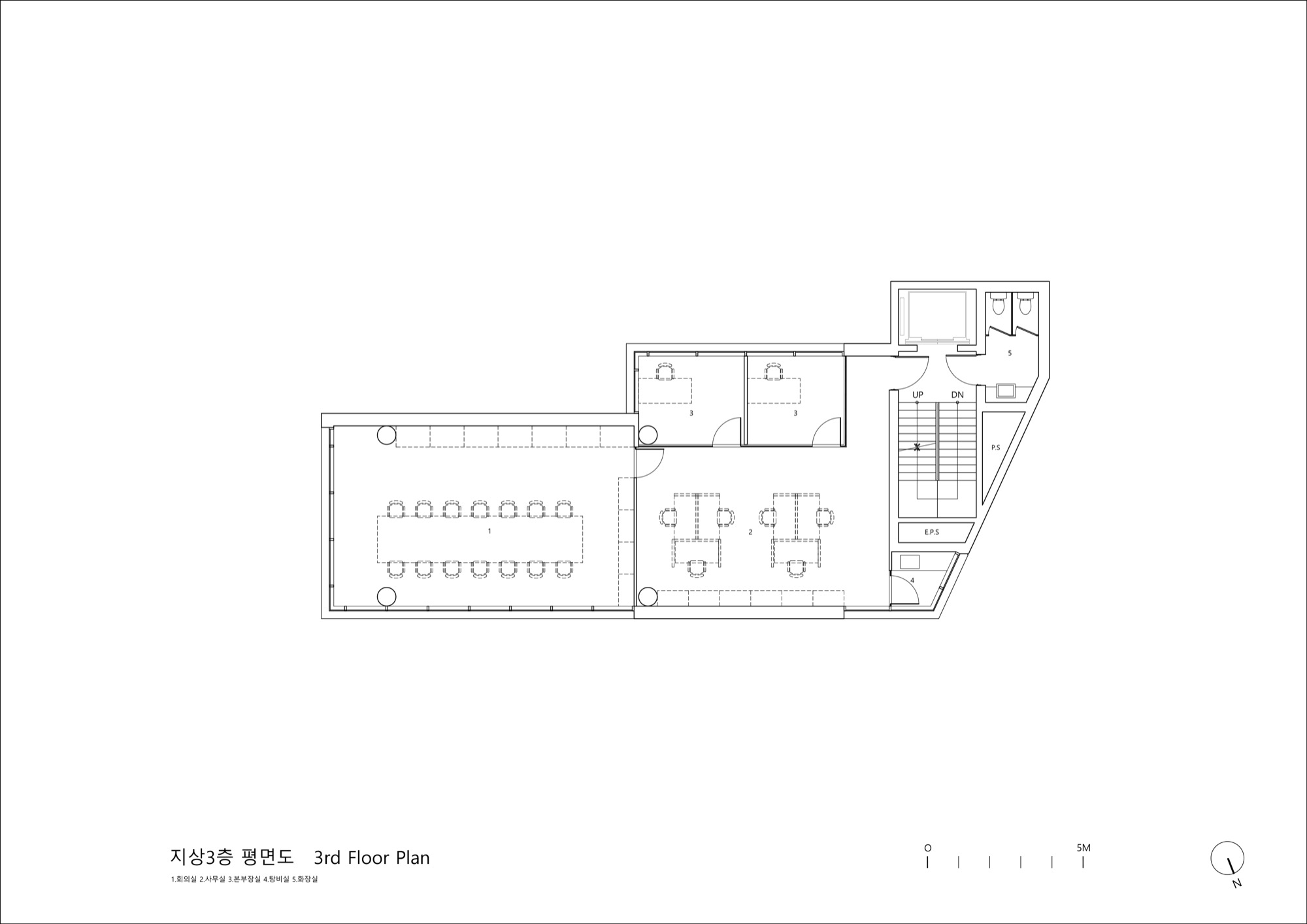
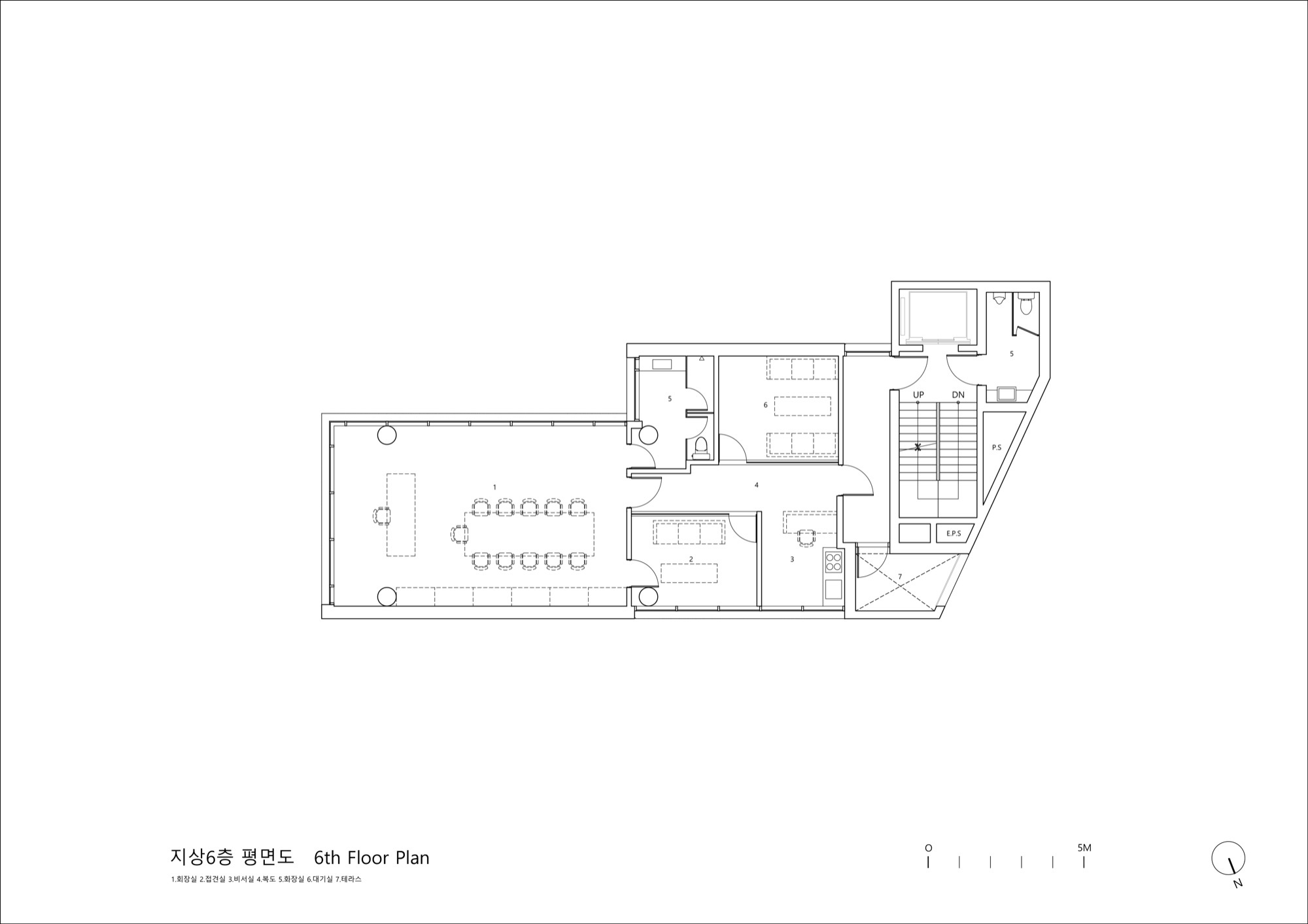
지하 1층은 이면도로에서 접근하는 주차장, 1층은 대로변에서 접근하는 카페, 2층은 전시공간, 3층에서 6층은 사무공간 및 회의공간이다. 콘크리트 라이닝은 층별로 달라지는 용도에 따라 남북으로 방향을 바꿔가며 자연스럽게 향, 조망, 일사 등을 조절하는 역할 또한 수행한다. 대지형상에 따라 평면폭이 변화하는 부분에서는 라이닝의 방향을 반대로 하는 것만으로도 내부공간과 입면의 다양성을 연출하게 된다. 단순한 개념이지만 실제 구현을 위해서 무량판구조, 포스트텐션공법, 갱폼거푸집벽체, 철골철근콘크리트기둥, 노출콘크리트마감 등 다양한 기술적 수단들이 동원되었다. 실내공간 또한 천장면에 각종 설비와 조명을 노출하여 건축 개념에 부합하도록 설계되었다.



Plan_5F

Plan_6F
새 사옥으로 입주하며 30주년을 맞은 건축주의 회사는 사명을 바꾸고 새로운 한 세대를 기약했다. 회사의 가치를 담은 특별한 공간에서 부디 좋은 기억들이 많이 담기길 바라본다.◼︎

















