
시공사





Elevation

Elevation
미즈메디 디어원은 산후조리원으로 늘어나는 외국인 환자를 유치하고자 메디특구 지정을 위한 협의를 하며 시작된 프로젝트다. 2020년 건축설계를 시작으로 시공자 선정, 공사 그리고 사용승인까지 만 4년의 세월이 걸렸다. 실시설계 중에 코로나 팬데믹이 시작되어 외국인 환자의 발길이 끊겼고, 시공 중에는 러시아-우크라이나 전쟁으로 레미콘 파동이 일어나 원자재값과 인건비가 급상승했다. 건설계에 터진 PF 사태 등을 겪어야 했고, 출생률 급감이라는 국가적 위기가 고조되는 상황에서 건축물이 완공되었다.




Elevation

Elevation
사업 초기에는 외국인 환자 유치라는 사업적인 생각으로 접근했지만, 이러한 어려움이 지속하는 중에도 병원은 분만과 난임 전문 병원으로 사명감으로 본 사업을 완수했다. 그런 점에서 설계자로서도 의미와 보람이 남다른 프로젝트다. 대지는 오랜 기간 지상주차장으로 사용되던 부지였다. 남쪽은 12m 도로에 동서로 길쭉하게 접하며, 북쪽으로는 공동주택이 인접한 곳이었다. 따라서 산모실의 배치와 주차 및 피난 동선이 중요한 디자인 이슈가 됐다.





Diagram

Diagram
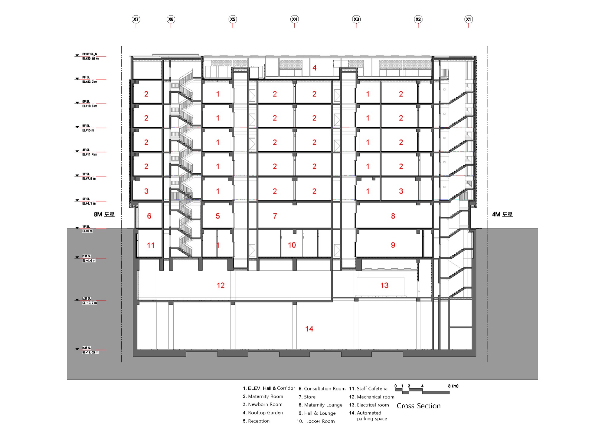
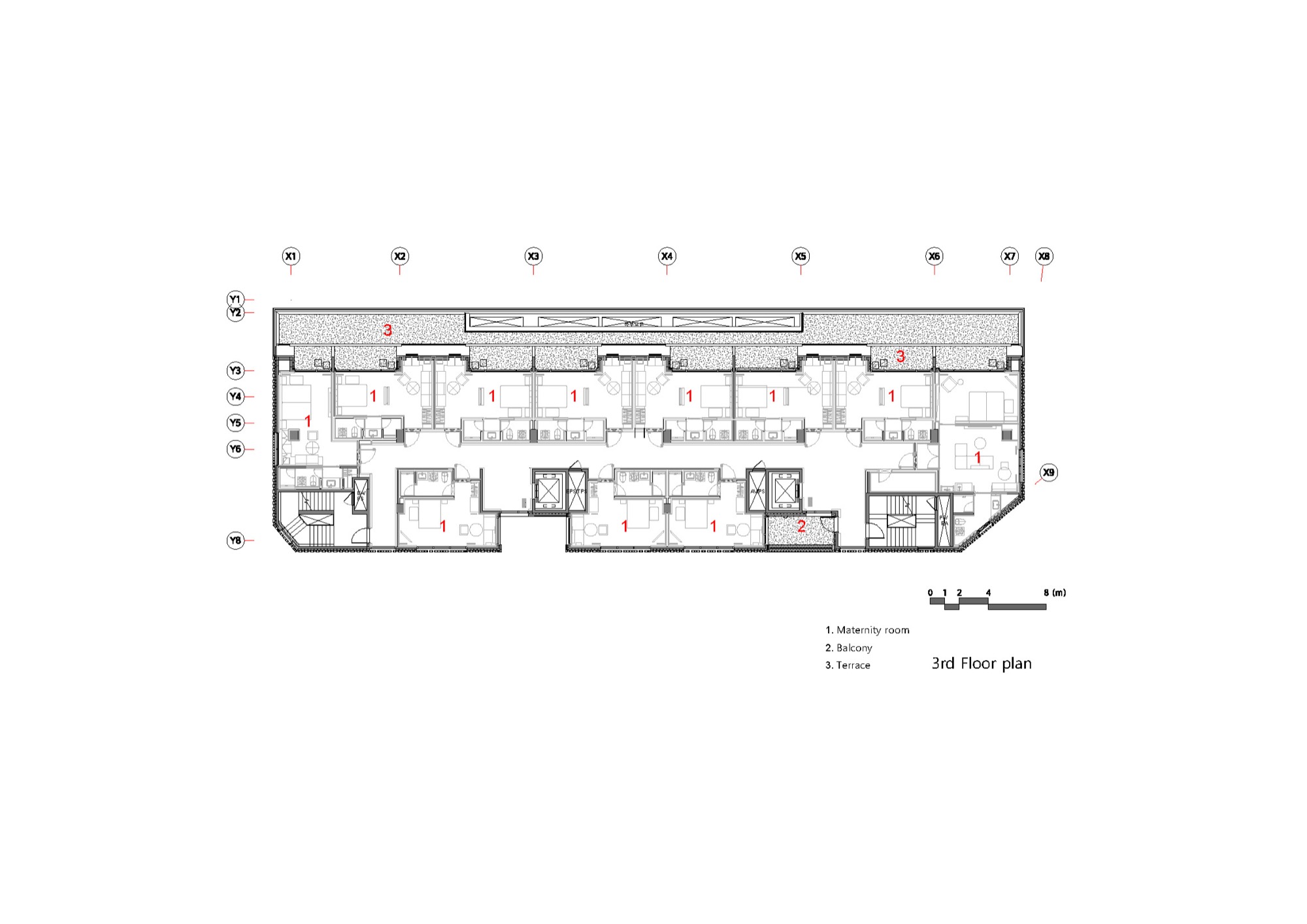
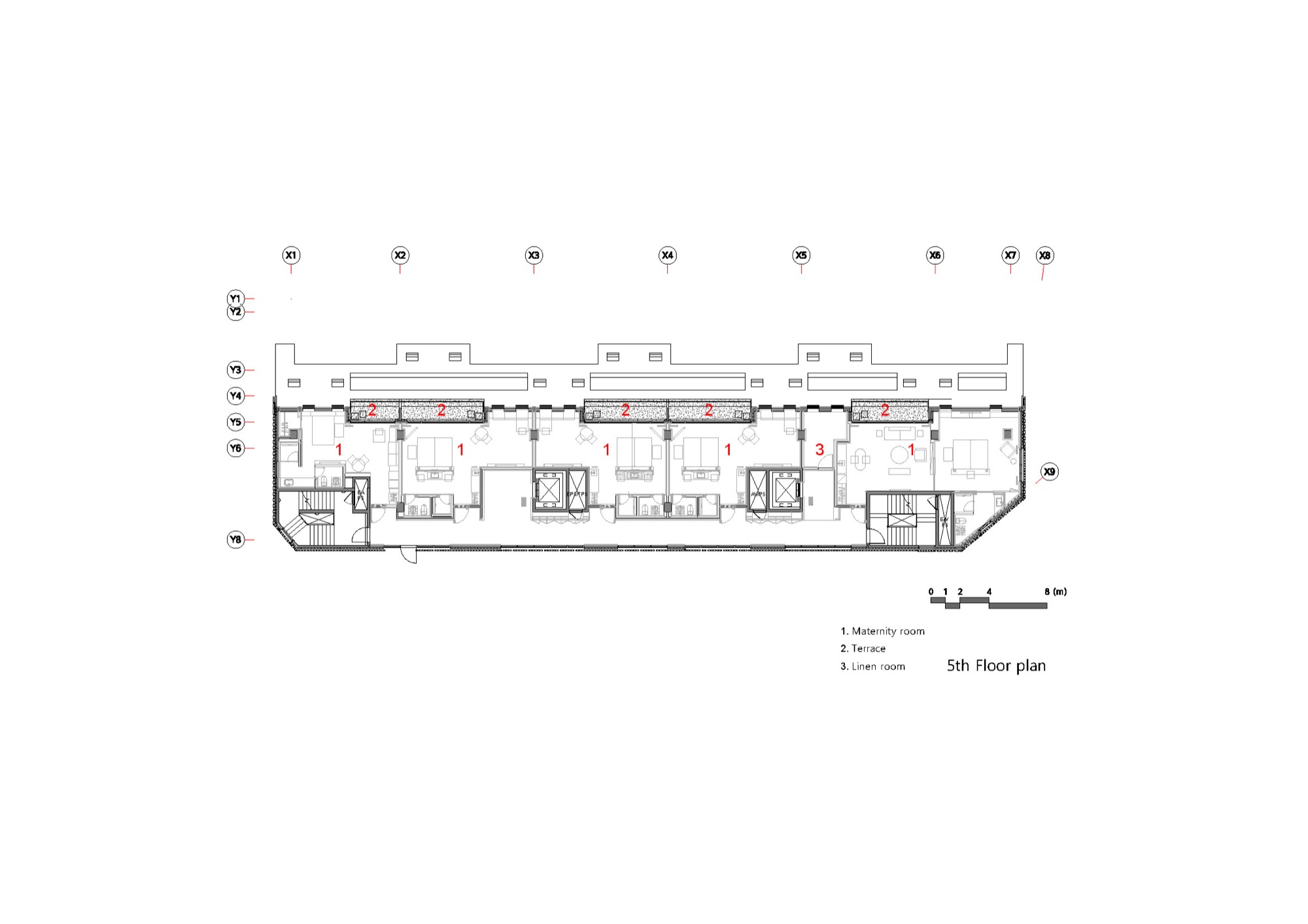
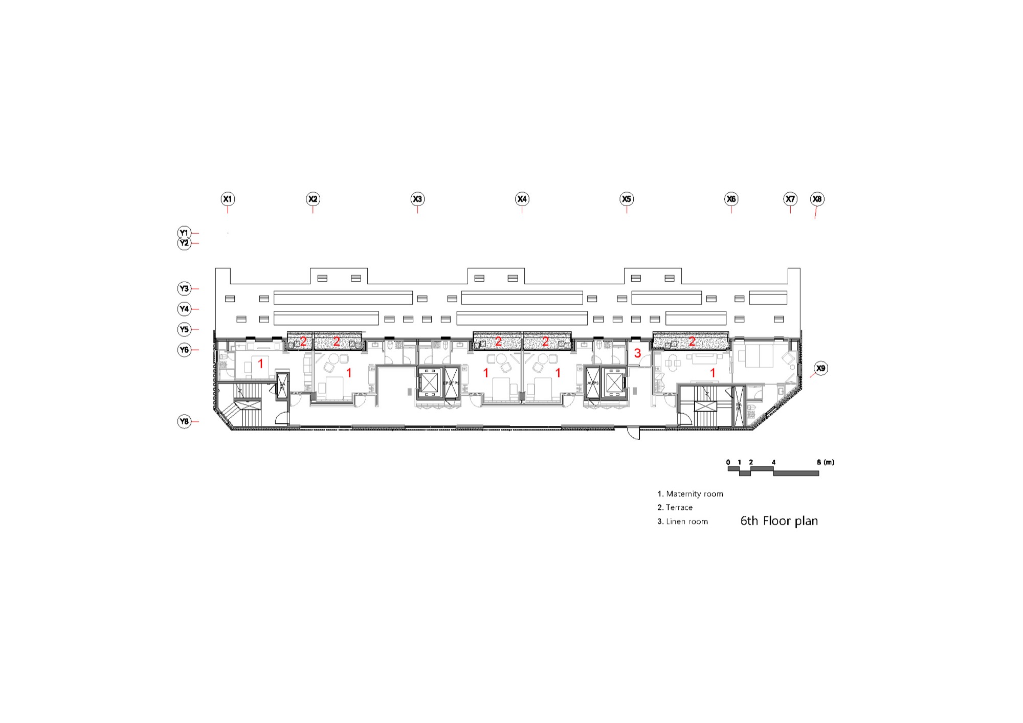
산모실과 연결되는 복도의 배치는 남쪽 번잡한 도로 상황과 북쪽 공동주택의 사생활 보호 문제 사이에서 중요한 선택의 문제였다. 산후 조리 및 안정을 위해서 남쪽 도로변의 정돈되지 않은 외부 환경과 직접적인 태양광은 최대한 걸러내야 했고, 인접한 공동주택과 산모들의 프라이버시를 확보해야 했다. 일조 사선으로 생기는 경사면에 적극 테라스를 설계하고 조경을 계획했다. 건물이 빡빡한 도심 속이지만, 산모와 공동주택 거주자 모두 회색 건물이 아닌 초록의 작은 정원을 바라볼 수 있도록 의도했다. 그리하여 산모실은 북쪽에, 복도는 남쪽에 배치하는 것으로 결정했고 다행히 발주처도 이런 해결책에 공감해주었다.





Section

Section
산후조리원은 제한된 공간 속 개별적인 서비스가 일반적이지만, 방금 막 병원을 나온 산모에게 휴양지 마을 방문한 것 같은 경험을 주고자 '수직화된 마을' 콘셉트로 접근했다. 한 아이를 키우는 데에 온 마을이 필요하다는 말처럼, 마을에는 산모와 아이의 몸과 마음을 돌볼 수 있는 우리 집과 이웃 그리고 공원과 쉼터 커뮤니티 공간이 필요하다. 비록 산후조리원이라는 건물 안이지만, 내부 전체를 산책하면서 자연스럽게 교제가 이루어지고, 걸러진 옅은 햇살을 받으며 휴식과 재충전을 할 수 있도록 산책로를 만들고 곳곳에 휴식 공간을 만들었다. 콘셉트는 입면 디자인에도 적용되어 '집'하면 자연스럽게 떠오르는 벽돌을 사용했다. 2단 영롱 쌓기로 통일된 패턴을 만들고자 들여쌓기와 일반 쌓기로 입면을 구성했다. 벽돌 사이로 들어오는 햇살은 마치 살랑거리는 커튼 틈으로 들어오는 것처럼 느껴진다.





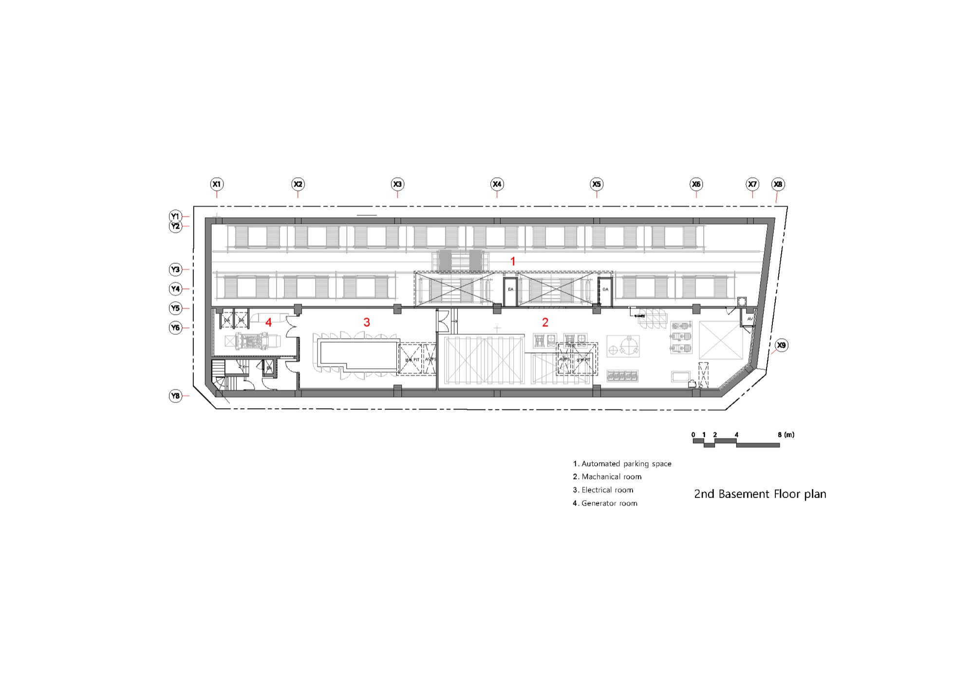
Plan_B3


Plan_B1


Plan_1F
입면의 비워진 공간과 다양한 벽돌쌓기 패턴의 활용은 52m 입면이 만드는 위압감을 어느 정도 완화해준다. 엘리베이터와 계단실을 제외한 1층 커튼월 입면은 보행환경을 답답하고 단조롭게 만들지 않도록 한다. 주차와 피난 동선의 배치도 산모실 배치 못지않게 디자인에 큰 영향을 미쳤는데, 대지 특성상 램프를 이용한 자주식 주차에는 제약이 따랐다. 따라서 빠른 주차와 충분한 대기공간이 확보될 수 있는 시스템의 기계식 주차를 적용했고, 빠르고 직관적인 피난이 가능하도록 건축물 양 끝에 비상계단을 두었다. 2대의 엘리베이터는 기다란 건축물을 삼등분하여 사용자가 편리하게 이용할 수 있고 구조적인 역할을 하도록 계획했다.





Plan_2F

Plan_3F

Plan_5F
모진 산고 끝에 개원하는 산후조리원인 만큼 이를 이용하는 산모들에게 좋은 경험이 되고 사회적 저출산의 위기에 희망이 되기를 기대해본다.



Plan_6F

Plan_RF
















