
시공사




Elevation

Elevation
서대문구 연희동에서 남가좌동으로 넘어가는 길목에 있는 ‘레이어드 하우스’는 비교적 평화롭고 한산한 동네 대로변에 자리 잡고 있다. 막다른 도로에 따른 도로 폭 넓히기와 정북일조 사선 이격으로 규모가 정해졌다. 건축주는 개성이 강하고, 자기만의 색깔이 뚜렷했다.





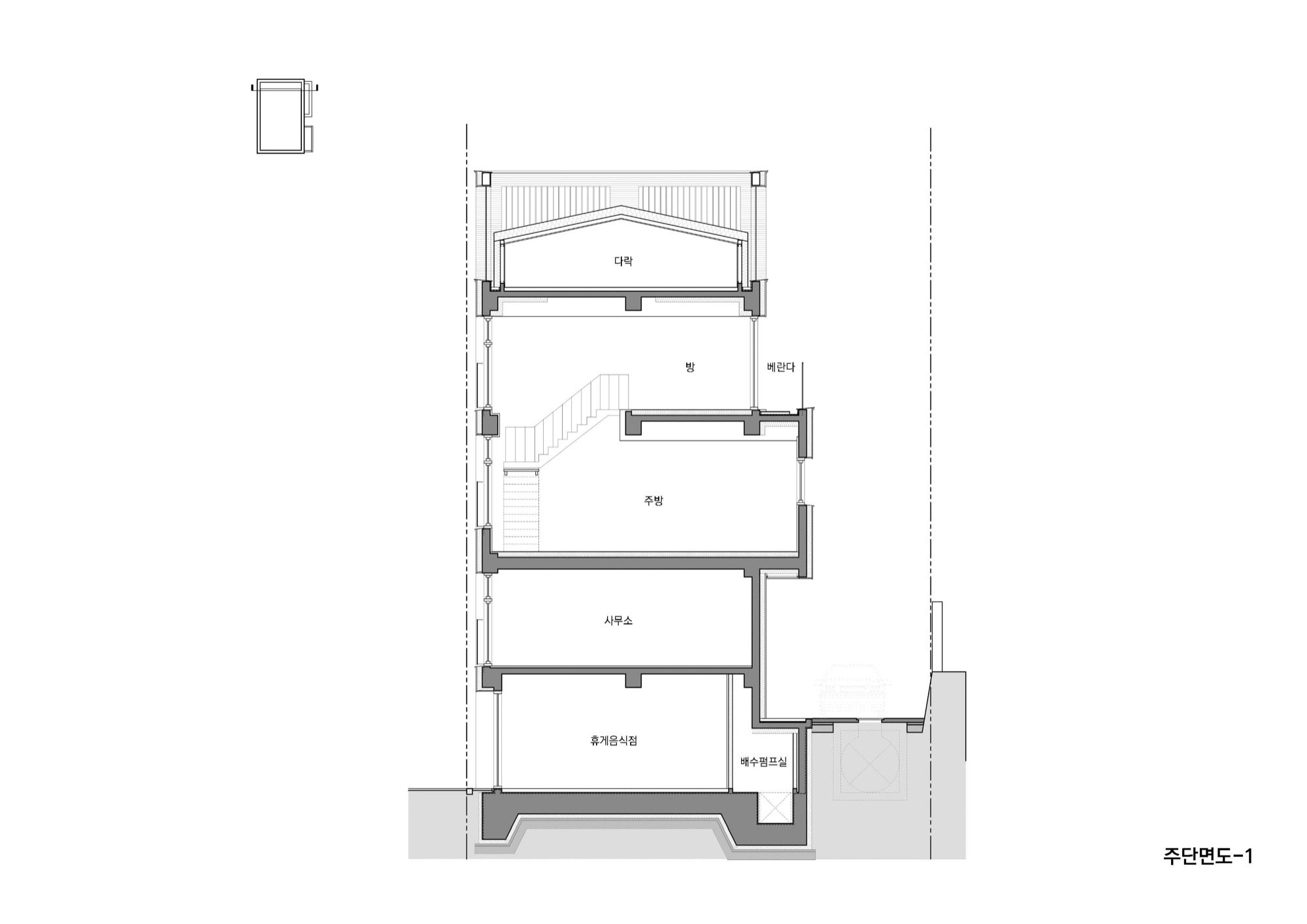
Section

Section
건축주는 아침부터 저녁까지 시간에 따라 빛이 다양하게 공간을 채워주고, 집 안 어디서나 가족이 서로의 존재를 느낄 수 있는 열린 공간을 바랐다. 따라서 공간의 경계를 모호하게 연결하여 목적과 용도에 따라 공간을 크고 작게 사용하는 것이 설계의 콘셉트가 되었다. ‘거실’이나 ‘복도’ 같은 방식의 구분을 피하고, 생활 공간과 이동 통로가 애매하게 구분된 여러 영역의 집합체인 공간이 되길 바랐다.



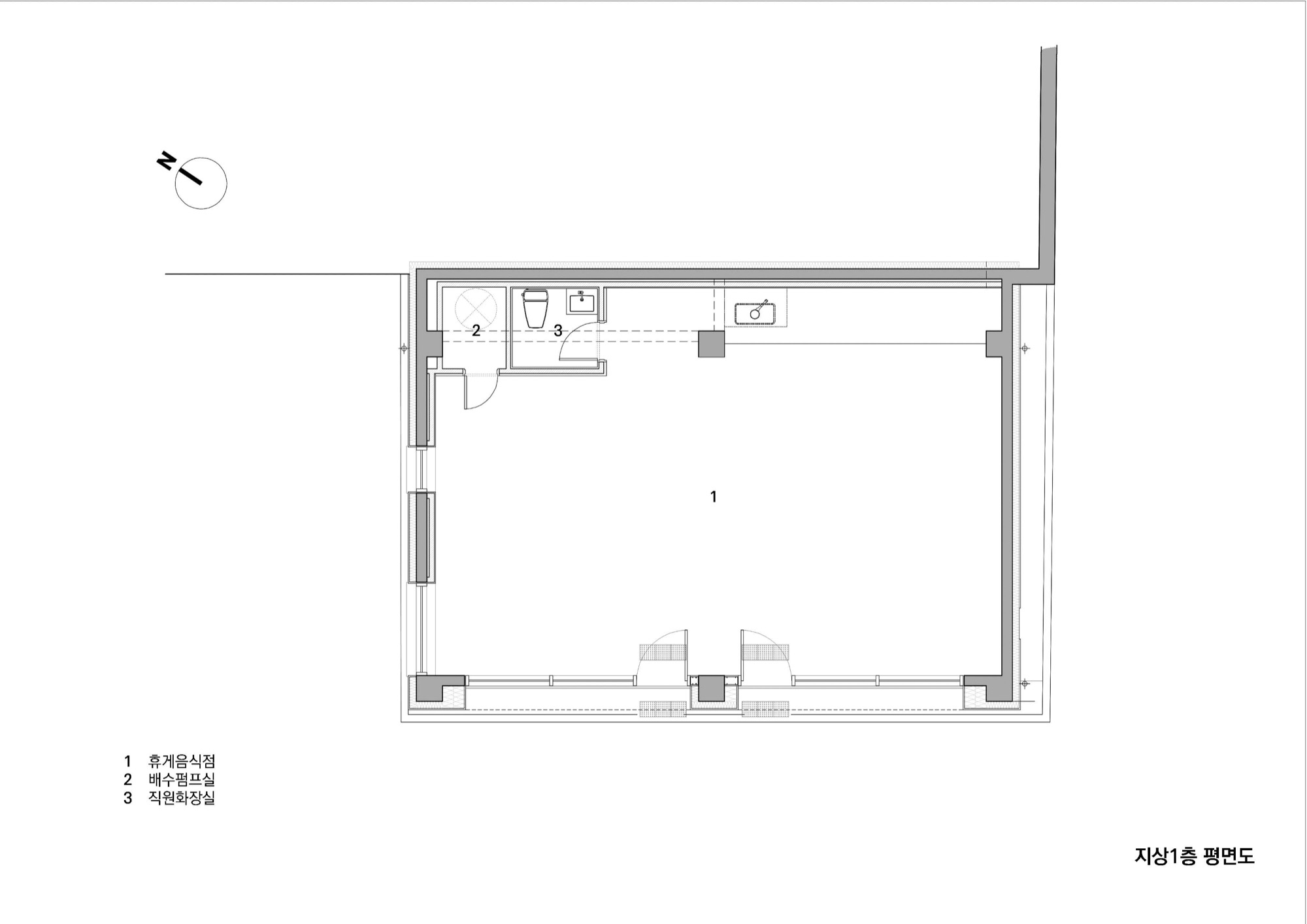
Plan_1F

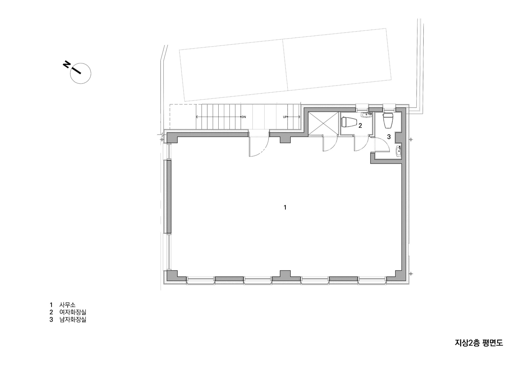
Plan_2F



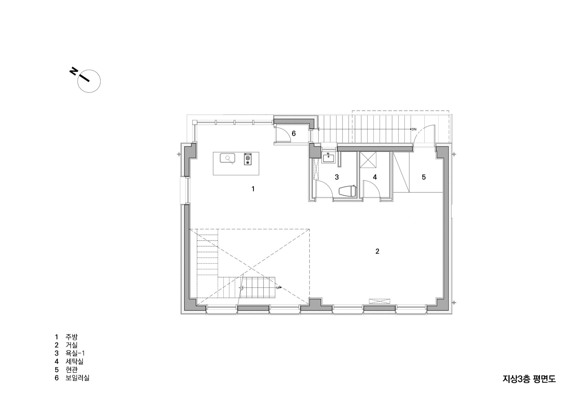
Plan_3F
의도한 빛, 의도치 않은 빛
건축주 시시각각 쏟아지는 빛과 그림자의 움직임을 통해 외부와 호흡하는 시간성을 경험하고 싶어 했다. 남향의 전면 파사드는 동일한 크기의 창을 연속적으로 배치해 빛을 최대한 받아들이고, 측면 창은 불규칙하게 배치해 의도치 않은 빛이 공간 곳곳에 들어오도록 했다. 디자인은 일상적 동네 가로에서 혼자 돋보이기보다는 주변 가로 풍경에 자연스럽게 녹아들기를 바랐다.





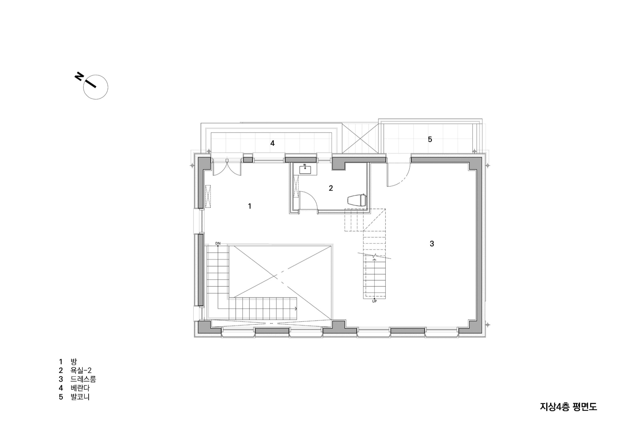
Plan_4F
느슨한 경계와 자유로운 동선
주택은 3층과 4층, 다락으로 구성했고 내부는 물리적으로 구분하지 않고, 느슨한 경계가 존재하는 공간으로 계획했다. 느슨한 경계는 공간을 유연하게 만들기도, 개방된 하나의 공간으로 이어주기도 한다. 현관에서부터 다락까지 동선을 보면 산책하듯이 이어지며 내부 공간의 풍성한 깊이감은 단단한 계단실을 통해 새로운 풍경을 만들어 낸다.





Plan_Attic
나무로 만든 계단은 조각처럼 섬세하고 그 위로 내려오는 고요한 빛은 집 깊숙이 스미고 퍼져 나가 공간을 가득 채운다. 또한, 창문을 통해 들어오는 반복적인 빛과 공간의 경계를 이루는 가구, 곳곳에 배치된 소품들이 어우러져 수많은 레이어를 만들어 낸다. 여름 창문 밖으로 보이는 플라타너스 나뭇잎의 소리와 그림자는 이 공간을 더욱 풍성하게 만들 것이다.



















