
사진

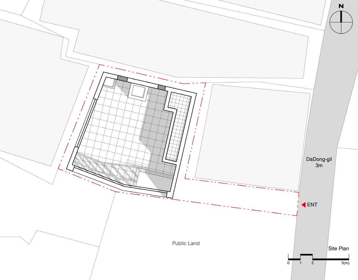
Site Plan
서울이라는 거대한 도시 안에서도 오랜 세월의 흔적을 엿볼 수 있는 동네, 명동일대에 속하는 다동이라는 지역은 도시의 근대화의 중심지이기도 하였다. 북쪽으로는 종로구 서린동과 청계천이 있고 남쪽으로는 을지로1가, 동쪽으로는 남대문로1가, 서쪽으로는 무교동과 접해 있다. 1980년대 초기부터 재개발이 시행되었지만 부분적으로는 시행되지 않고 오래된 건물들이 복잡하게 얽혀 있는 상태에서 멈춰진 곳도 많은 동네이고 건축 예정지는 그 경계선에 있었다.



Elevation

Elevation
최근 들어 재개발로 묶여있다가 개별 필지에 대한 건축의 금지가 해제 되자마자 오랜기간 동안 기존상권을 유지해온 지역상인들 및 토지주들이 하나둘씩 신축공사를 하고 있는 동네이다. 건축주는 대만에서 넘어와 우리나라에서 터를 잡고 정착한 화교이다. 30년 넘게 화교1세대부터 3세대에 걸쳐 초류향이라는 중화요리집을 운영하고 있었다. 한국국적을 취득하였어도 여전히 고향의 전통적인 습관이나 방식을 고수해왔었기 때문에 식당 내부의 동선을 취하는 방식이나 벽에 걸려 있는 그림들 소품 하나하나가 이국적일 수밖에 없다.



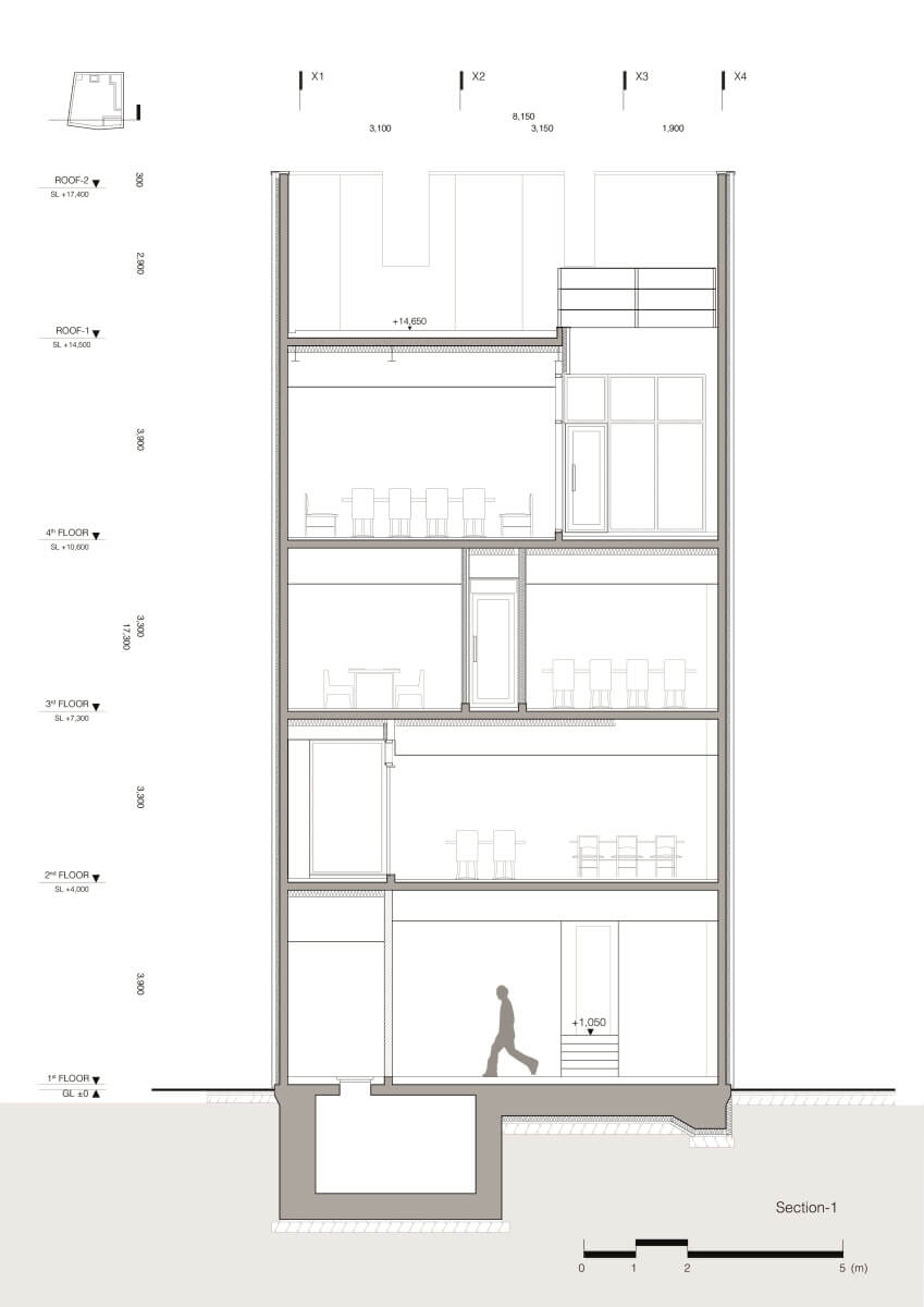
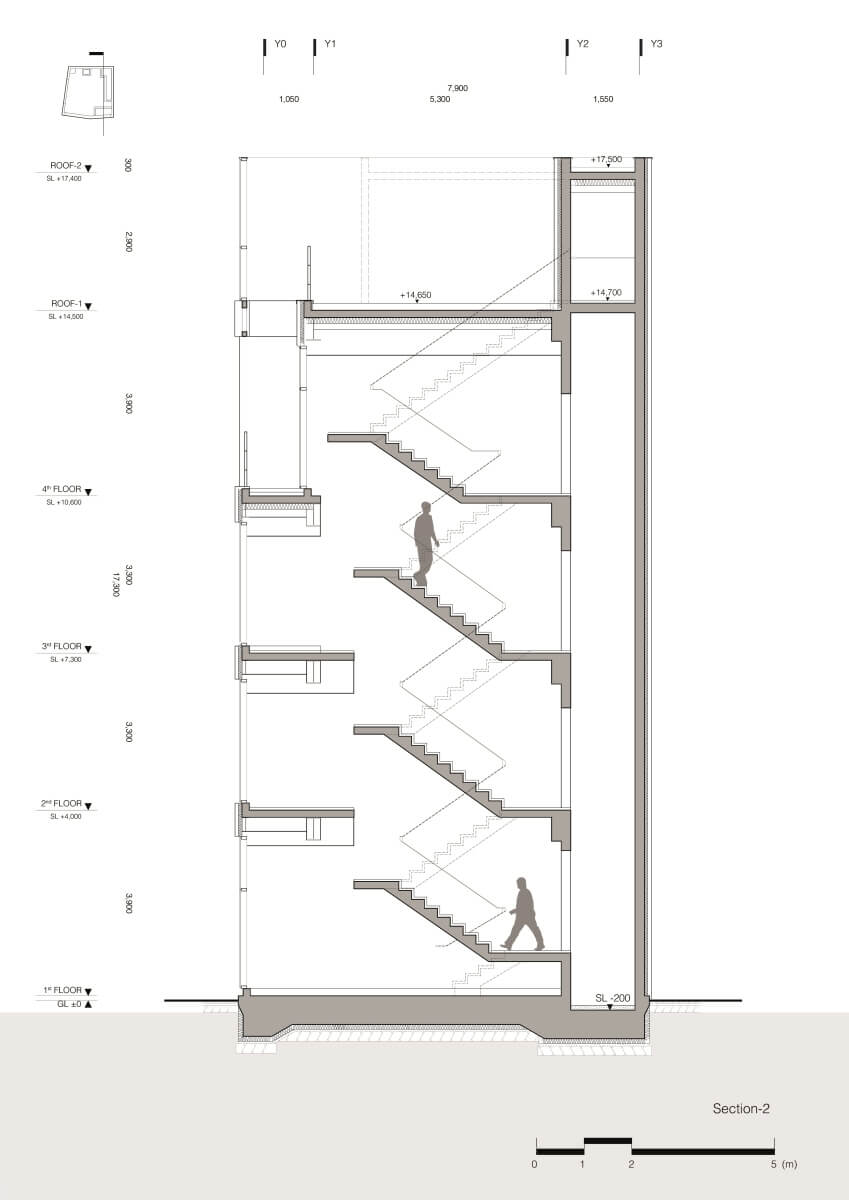
Section

Section



대지는 일반상업지역이라 하더라도 사이트 주변일대가 복잡한 방화지구이고 땅면적이 33평정도이며 4층 이하의 건축 제한을 가지고 있었다. 전면의 공터는 도로가 아닌 건축이 금지된 공지였고, 깃발 형태의 땅모양이 골목길(도로)에 접한 폭은 2미터밖에 되지 않았기 때문에 상, 하수등의 도시기반 시설에 접근하기가 무척 곤란하였다. 이처럼 극도로 제한된 조건 안에서 건축을 한다는 것은 건축가로서 매우 곤욕스러운 일이지만 새롭게 단장한 중화요리집이 완성되었다. ■



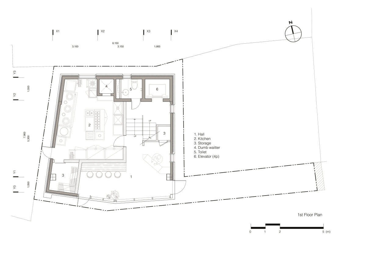
Plan _ 1F

Plan _ 2F






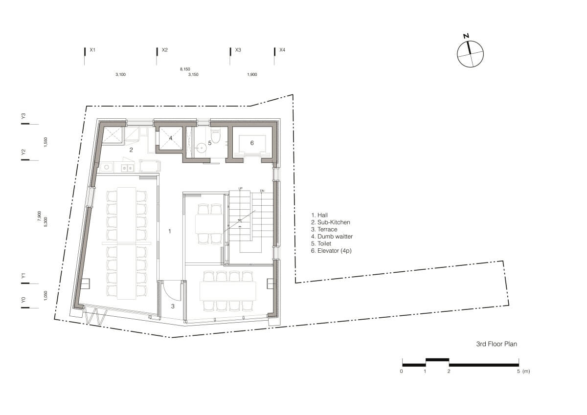
Plan _ 3F

Plan _ 4F



















