
사진


Site Plan

Prologue
‘참 별나게도 짓소~’ 옆집 할머니가 한마디 던지고 간다. 그저 단순한 직사각형 집인데 그 할머니 눈에는 이상하게 보였는가 보다. 다른 집들과 다른 점이 있다면 목재를 과감하게 노출한 것 말고는 형태적으로 특이할 것도 없다. 지나가는 사람들이 한옥 짓냐고 묻기도 했고, 어떤 이는 카페냐, 사무실이냐 묻기도 했다. 모두가 그 집의 정체를 궁금해하는 동안 ‘뉴 라이프스타일(New Lifestyle)’을 알리는 공간으로 완성되었다.


Axonometric
Site
아파트를 버리고 전원을 꿈꾸는 사람들이 저지르는 실수 중에 하나는 옹벽이 둘러 싼 자연스럽지 못한 대지를 선택하는 일이다. 넓은 마당을 갖고자 축대를 쌓고 경사진 땅을 평평하고 반듯하게 만드는 것에는 자연도, 마을도 있을 수 없다. 땅이 주는 그 어떤 이야기도 담겨 있지 않기에 마당이 있다고 한들 ‘도시 아파트의 삶’과 다를 바 없다. 그러니 이웃과의 관계도 없다. ‘The FriYah’의 대지는 마을 주변 집들로 에워 쌓여 있을 뿐 아니라 땅 모양도 지글지글하다. 집을 남향으로 배치하기에도 너무 얇고 길다. 그럼에도 시골집처럼 주변집들과 얼굴을 맞댄 마당공간 그리고 자전거 도로를 넘어 남한강으로 펼쳐지는 멋진 조망은 그런 단점을 상쇄하고도 남는다.


Program
기후변화시대에 필요한 ‘뉴 라이프스타일’의 공간을 만들고자 했다. 1929년 바이젠호프 주택단지의 소비적인 ‘모던 라이프스타일’에 대한 대안이 필요하다는 생각으로 지속가능한 도시와 건축의 모델을 제안하려 했다. 콘크리트에서 목재로, 화석연료에서 태양광 발전과 전기자동차로, 그리고 강아지와 자전거를 좋아하는 사람들과 공유할 수 있는 공간으로 기획되었다. 일명 ‘FriYah’로 전원주택의 새로운 전형을 제시하고 목조건축이 얼마나 현대적인 감성에 지녔는지를 알리려 했다.


Design Intention_ 얇고 긴 대지의 특징이 그대로 드러날 수 있도록 강변 조망을 최우선 고려했다. 아파트처럼 기능적인 주택과는 달리 긴 공간을 간(間)으로 나누니 9칸 입면의 일자집이 되었다. 2층 높이의 오픈 거실과 같은 과시적인 공간은 처음부터 고려되지 않았다. 오히려 사용성을 고려해 단층으로 구성하고 2층 옥상에 조망 데크와 욕조를 설치하여 드라마틱한 경관을 더욱 극적으로 즐기도록 하였다. 채 나눔을 통해 작지만 확장성이 있는 공간이 된 별채는 강아지와 함께 할 수도, 함께 모여 생각을 나누는 공유공간이기도 하다. 존재감을 드러낸 글루램 기둥과 보 덕에 그동안 다루어 왔던 내향적 주택과 정 반대로 외향적인 집(Extrovert House)이 되도록 했다


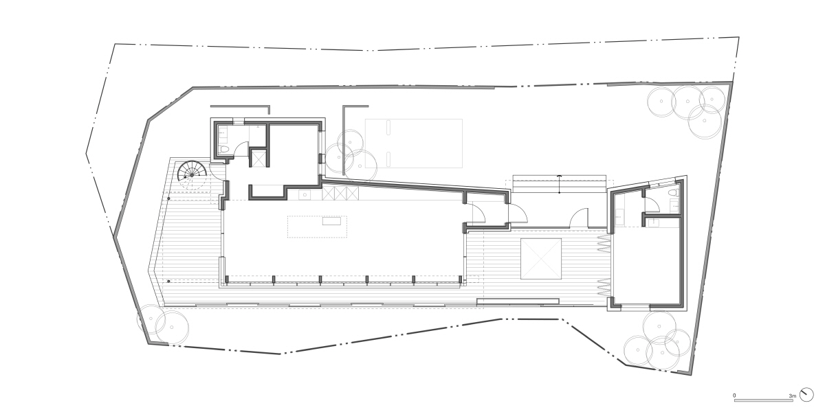
Plan _ 1F
Tectonic
외국에서 들어온 목조주택에는 드러난 나무도 없고, 있다 한들 왜소하여 어딘지 생기다 만 듯하다. 이 집의 핵심은 국산 낙엽송으로 만든 글루램 기둥과 보이다. 전통 사괘맞춤을 연상시키듯, 13미터 길이의 단일 보를 한번에 조립하자는 시공사의 의견을 반영한 결과 반나절도 안돼 집의 골격을 완성할 수 있었다. 복잡한 맞춤이나 철물을 사용하는 대신 긴 스크류 못 하나로 충분했다. 간단하고 명쾌한 구축법이다. 얇고 넓은 글루램 기둥과 납작한 보는 목재가 지닌 현대적 감각을 더욱 돋보이게 하였고 리듬감있게 배치된 서까래 보는 공간의 짜임새를 높여준다. 보통의 콘크리트와는 다른 과정을 거쳐 집이 완성되는 모습을 본 동네 사람들에게는 그저 신기하고 그래서 별난 집이 된 것이다. ■


















