

Site Plan
태안 해변의집 “서리재”
“서리재”라는 집의 이름에는 두가지의 의미가 담겨져 있다. 지리적으로 태안의 신두리라는 해변가 서쪽마을에 지어진 집이라고 하여 “서리재”이고 서씨와 이씨 부부가 의뢰인 이여서 그 성을 따 “서리재”이다. 집이 지어질 터는 소나무 숲 사이로 바다가 보이는 해변가 농경지로 사용되던 곳이다. 집이 지어질 터는 도로와 레벨이 맞추어진 일부의 땅과 그 외 의 땅은 2미터 이상 높이 차이가 있어 자연스럽게 경사진 법면으로 이어져 있었다. 의뢰인이 소유하고 있는 넓은 땅에 집이 지어질 터를 결정하는데 많은 고민이 있었던 이유에는 향과 조망, 진입방법, 집이 지어질 터의 현황레벨의 극복 그리고 집이 지어진 이후 소유하고 있는 넓은 땅의 쓰임 등을 고려해야 했기 때문이다.



Elevation

Elevation

Elevation


Diagram

설계를 의뢰 받은 이후 우리는 처음부터 입주 때까지 줄곧 1인칭의 시점으로 접근 하였다. 의뢰인이 집을 짓는 목적이라던가 은퇴 이후 부모님으로부터 물려받은 고향 땅에 단독주택을 처음 짓게 되는 그들의 이야기가 가장 중요한 디자인 모티브가 되었기 때문이다. 의뢰인이 풀어 놓은 이야기들을 건축적으로 구현해 나가면서 공간을 재 구성하고 다양한 방법으로 설명해 가다 보니 어느새 우리는 건축주가 되어 있었다. 의뢰인의 이야기가 곧 내 이야기가 되고 난 후 집이 오롯이 지리적 환경과 자연 환경과의 관계 맺기에 집중 하다 보면 내부의 기능과 집의 형태와 배치가 자연스럽게 결정이 된다. 건축가의 도움이 있지만 결국 그들이 직접 공간을 풀어 내었고 형태를 결정하게 되는 것이다.


Diagram



Section

Section

Section



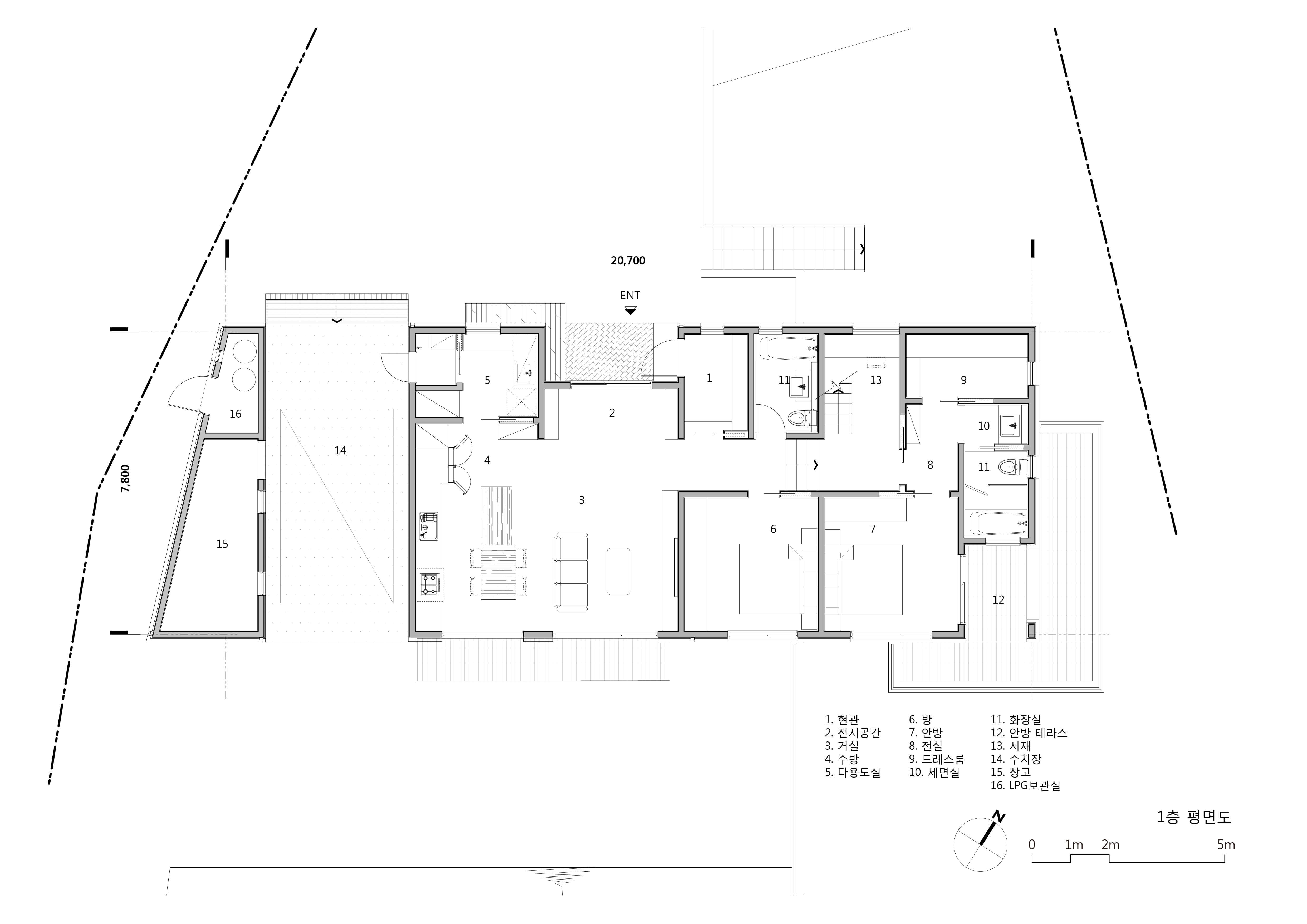
지형과 물리적인 건축의 제약을 극복하면서 생각하지 못했던 공간을 만들었고 집의 형태를 풍요롭게 하였다. 장 방향의 집의 배치를 극복하기 위해 콘크리트 구조물(옹벽)로 최소한의 성토공간의 진입마당을 조성하였고 나머지는 콘크리트 인공지반을 띄워 집이 앉혀지게 되었다. 떠 있는 인공지반은 기존에 농경지로 사용되던 땅의 습한 기운을 없앨 수 있었으며 그 하부는 앞으로 어떤 쓰임이 될지 기대가 되는 선물 같은 공간이 되었다. 집의 배치는 단순한 “ㅡ”자형 배치이나 높이를 달리하는 2개의 MASS로 이루어져 있으며 작은 MASS에는 GARAGE 공간이 끼어들었다. GARAGE 공간이 끼어들고 남은 작은 MASS는 아프리카 토속 미술품들을 모으는 취미를 가지고 있는 아내가 토속 미술품들의 보관을 위한 작은 창고로 사용하게 하였다. GARAGE공간은 주차 목적 이외에도 햇빛을 가려준다거나 운치 있게 비가 내릴 때 이 공간이 가져다 줄 풍요로운 그 쓰임이 기대가 되기도 한다.





“통경”과 “차경”에 대한 고려가 중요한 이유는 땅이 가지고 있는 아름다운 자연적 환경 때문이다. 외부에서 집을 바라볼 때 “통경”의 요소는 열린 GARAGE와 거실 앞뒤로 나있는 넓은 창들 그리고 집을 띄워 건축할 수 있게끔 만든 콘크리트 인공지반의 하부공간 등이 그 역할을 한다. 집 내부에서는 소나무 숲과 그 사이로 보이는 바다의 풍경을 볼 수 있는 거실 창과 침실 창 그리고 테리스공간이 “차경”의 요소로 작동한다. 다락에서 천창은 도시에서 거의 볼 수 없는 맑은 밤하늘의 별들이 담긴 작은 하나의 액자처럼 걸려 있다. 지극히 사적인 프로그램이였고 의뢰인의 시각에서 공간을 좀 더 풍요롭게 건축을 하였지만 이 집 또한 의뢰인(사람)을 닮아 있었다. ■




Plan _ 1F





Plan _ RF















