
사진


Site Plan
‘비우고 나누고 채우다’
새로운 주택을 지으면서 건축을 통해 진정한 시월드(?)를 구축하려는 의뢰인이 찾아왔었다. 아직은 건강하시고 활동량이 많으신 시아버지와, 남편과 어린 아들을 둔 의뢰인가족, 그리고 남편의 누나인 시누이 가족들이 함께 살 집을 지어야 한다고 했다. 대한민국 사회에서 출가한 며느리가 시댁식구들과 함께 살 다가구 주택을 짓는다는 것은 정말 흔치 않은 일이기에 호기심이 발동 하였다. 집이 지어져야 할 곳은 남편이 나고 자란 곳이고 남편의 추억이 담겨 있는 곳 이였다. 집 터는 시부모님이 정착하여 오랜 시간을 지내던 동네가 시에서 추진하는 산업단지조성으로 기존의 원주민들이 이주할 곳으로 마련된 새로운 택지였다.


Elevation

Elevation

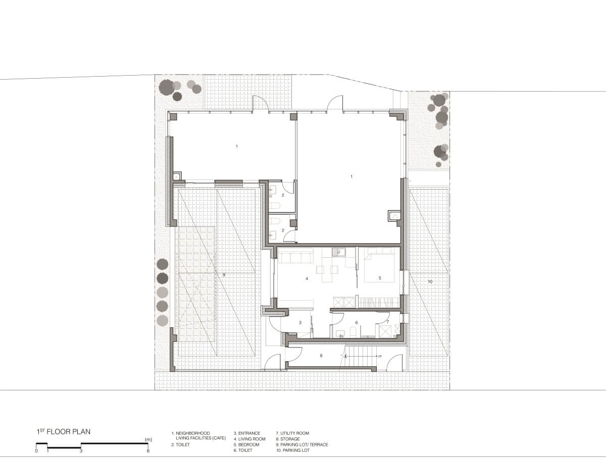
1층에는 상가를 둘 수 있는 여건 때문에 인접한 큰 도로변에는 직접 작은카페를 운영할 수 있는 상가공간을 두기를 바랬다. 의뢰인은 집을 짓고자 마음 먹고 개인적으로 다양한 정보를 수집하였던 것 같았다. 함께 여러가족이 살아야 하는 다가구주택임에도 각 세대별로 집 내부에서 단독주택의 풍취를 가지고 싶어 하였다. 서로가 조금씩 양보하면서 집을 짓는다면 가능 할 것이라고 생각한 것 같았다. 집의 이름이 ‘비나채’인 이유는 ‘비우고 나누고 채운다’의 의미를 줄여서 부른 말이다. 이 컨셉은 주변의 다른 필지에 지어지는 집들과는 차이를 둘 수 있는 큰 원동력이 될 수 있었다. 대부분 법이 허용하는 최대의 가구 수와 상가를 두고 임대소득을 최대로 하고자 하는 욕구로 인해 집의 형태라던가 주거환경이 제약을 가질 수밖에 없는 집들과는 다를 수 있었기 때문에 이 단지에서 가장 독특한 집이 될 수 있었던 것 같았다. 이 집에서는 각자의 주거환경을 유지 하면서도 기회가 될 때마다 층을 옮겨다니면서 가족식사 모임을 한다고 한다. 설계하는 과정도 집을 짓는 과정도 즐거웠고 입주 후의 삶도 행복할 것 이라는 건축주께서는 집을 지어준 관계자들과 한자리에서 식사할 수 있는 날이 오기를 기다리고 있다.

Diagram


‘편견에 맞서다’
한국 여성에게 ‘시댁’은 쉽게 좁혀지지 않는 간극이다. 가족이라는 한 울타리에 있지만 보이지 않는 위계와 형식이 서로를 밀어내기 때문이다. 건축주 부부는 대지면적 329㎡(100평)에 ‘시’ 자만 들어가도 질색하는 우리 사회의 편견을 깰 수 있는 작업을 의뢰하였다. 1층에는 홀로 된 시아버지가, 2층에는 며느리 부부가족, 3층에는 시누이 부부와 조카가 사는 보기 드문 현대판 ‘시월드’다. ‘부담 주는 건 딱 싫다’는 시아버지를 설득하였고, ‘불편하고 힘들다’며 고민하던 시누이의 손을 잡았다. 건축주는 “책임감이나 부담감에 같이 살자고 했다면 하루도 못 살았겠지만 가족들이 모여 복작복작한 삶을 원해서 함께 모여 살기로 했다고 하였다.



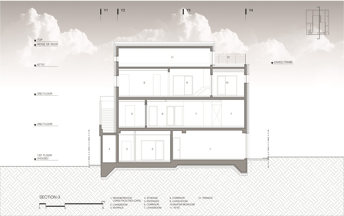
Section

Section

‘층마다 마당, 세채 같은 한채’
건축주는 설계를 의뢰하면서도 구체적인 집의 형태보다는 꿈꾸는 삶의 풍경을 빼곡하게 적어 냈다. ‘이웃에 위세 부리지 않고 주변을 비웃지 않는 집’, ‘아이가 햇빛에 달궈진 마당의 돌을 맨발로 밟으면서 뛰노는 집’, ‘아버님이 일군 밭에서 딴 오이와 고추를 다듬을 작은 수돗가’, ‘동네 아이들이 놀다 가는 집’, ‘가족만 사는 게 아니라 명절, 모임 등을 위한 주방’, ‘아버님과 앉아 멸치를 다듬으며 이런저런 이야기를 나눌 툇마루’ 등 가족들이 사는 삶의 모습이 머릿속에 떠오르게 만드는 문장들로 집에 대한 그림을 그려주었다. 집이 지어질 택지는 지구단위계획구역으로서 3층 이하의 층수제한이 있었고 다가구주택 전용택지이기 때문에 앞으로 지어질 집들의 규모와 그 밀도가 예측이 되었다. 보통 다가구주택들은 가구 수를 최대로 늘리어 임대수익을 높이려는 목적성을 분명히 가지기 때문이다. 하지만 의뢰인이 요청한 집은 임대수익이 목적이 아니기 때문에 우리는 최대한 공간을 비워낼 수 있었다. 의뢰인이 그려준 집에 대한 이야기는 다가구주택이지만 단독주택에서나 느낄 수 있는 집이였기 때문에 많은 부분을 비워내야 했고 물리적인 덩어리를 비워내고 그 자리에 다양한 삶의 방식이 채워질 수 있어야 하는 것이 계획의 중요한 포인트였다.




Plan _ 1F

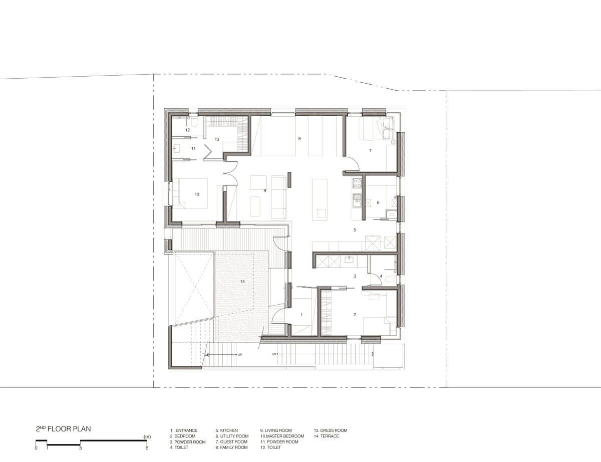
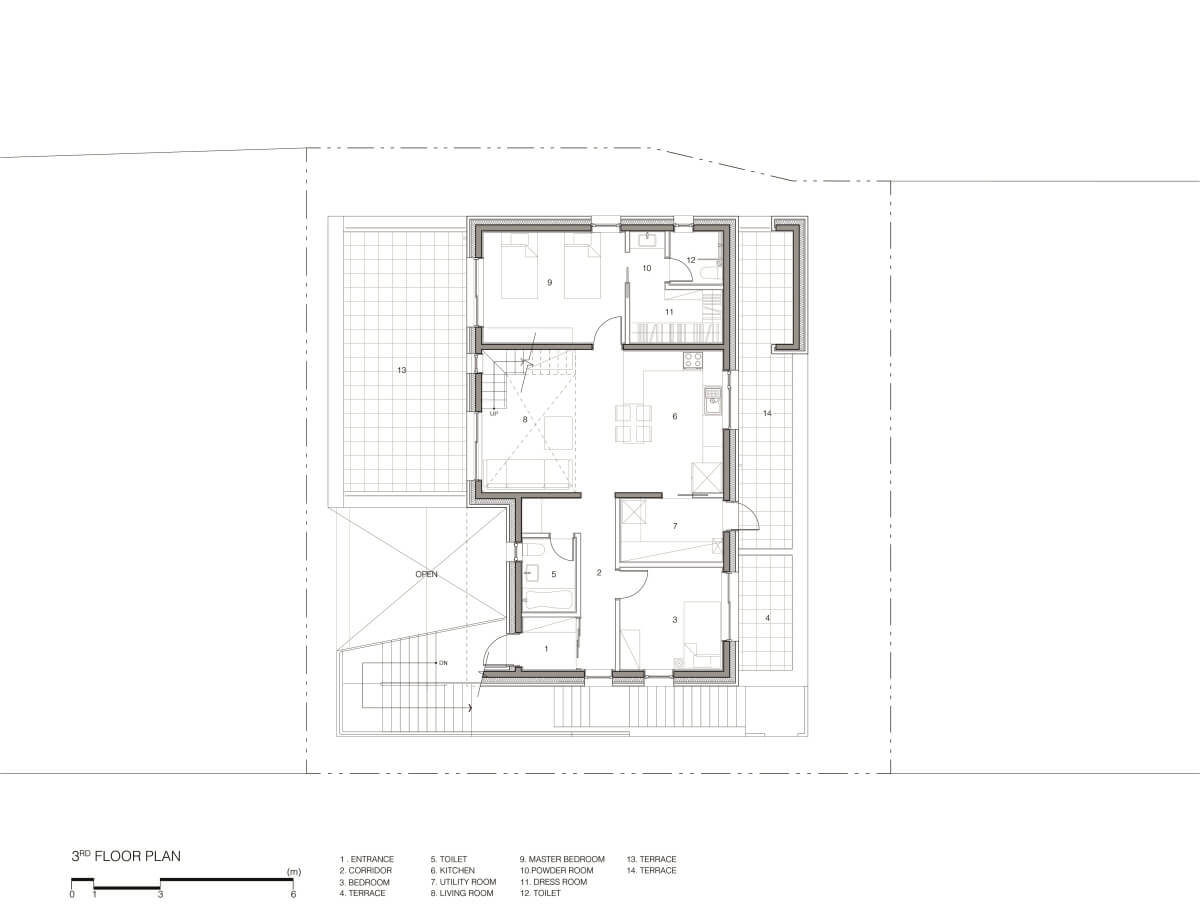
주변에 집들이 채워지더라도 채광에 방해되지 않게 배치하고, 세 가구가 각자의 집에서 단독주택의 정취를 느낄 수 있게 하기 위해 층마다 마당을 두었다. 최대의 용적율 최대의 가구 수를 만들기 위해 지어지는 일반적인 다가구주택의 네모 반듯한 집과는 달리 주택가에 숨통을 틔우듯 군데군데 비운 비정형의 집을 계획 할 수 있었다. 동선을 분리하여 외부에서 출입이 되는 출구는 3개다. 팔순의 시아버지가 머무는 1층과 자녀들이 수시로 오가는 2, 3층의 동선을 분리하여 다가구주택이지만 단독주택의 접근방식을 따를 수 있게 하기 위해서이다. 의뢰인 부부와 아들이 사는 2층과 시누이 부부와 조카가 사는 3층도 마당을 가로지르지 않는 외부계단으로 이어지기 때문에 서로의 출입에 영향을 받지 않는다. 하나의 출입구에서 하나의 계단을 따라 각자 현관으로 연결되는 다가구주택은 사생활을 보호받기 어렵기 때문에 아예 출입구를 달리해서 외부 계단을 통해 집으로 들어가 수 있게 제안하였다. 그래서 층마다 각각 세 개의 마당이 생겨났다. 1층 담장 역할을 하는 긴 슬라이딩 목재문을 열면 주차장 겸 마당이 나온다. 시아버지의 집 거실 앞에 툇마루를 내 마당과 연결했다. 활동적인 가족들이 사는 2층 마당엔 잔디를 깔았다. 아이는 마당에 텐트 치고 공놀이를 한고 때로는 다가이 모여 김장도 하고 빨래도 널어놓는다. 3층은 집 내부를 통해 나가는 사적인 베란다를 두었다. 하나의 마당을 공유하기보다 각자의 생활 방식에 맞춘 세 개의 마당을 만듦으로써 한 채의 집안에 독립된 세 채를 짓고 자 하였다.





달라진 공간, 풍성해진 삶
층마다 내부 구조와 규모도 각 구성원의 생활 방식과 채광, 환기 등에 따라 달리했다. 팔순인 시아버지가 홀로 지내는 1층은 작지만 알차다. 거실과 주방, 방을 일렬로 배치해 동선은 단순하게 만들었다. 집의 중심 공간은 의뢰인 부부가족이 생활하는 2층이다. 세 가구가 한데 모일 수 있게 주방을 크게 만들었다. 거실보다 더 넓다. 집을 지으면서 의뢰인이 가장 신경 쓴 공간이다. 한집에 산다는 거는 자주 모여서 함께 밥 먹고 시간을 보내는 일이기 때문에 사소한 일에도 자주 모여서 파티를 열기를 원했다. 2층 주방이 온 가족들을 한자리에 모이게 하는 집의 중심이다. 거실 한편의 평상 같은 공간, 외부 시선을 가리면서 햇빛이 온종일 은은하게 들어오도록 하는 창, 잔디마당 등은 2층만이 누릴 수 있는 요소다. 아이는 평상에서 거실을 지나 마당으로 내달린다. 기존에 살았던 아파트에는 없는 공간들이 생겨났고 층간 소음 때문에 친구들 데려오기를 꺼렸던 아이가 이젠 마음껏 친구들과 뛰놀 수 있게 되었다. 의뢰인이 처음에 원했던 것처럼 마당이 있으니 김장을 할 수 있게 됐고, 밭에서 가꾼 농작물을 말리기도 하고 다양한 활동을 할 수 있게 됐다.



배치가 만들어낸 공간 그리고 집의 모양
2, 3층의 가장 큰 차이는 방향이다. 서남향인 집에서 2층은 좀 더 동쪽으로, 3층은 좀 더 서쪽으로 배치됐다. 살짝 틀어진 덕에 풍성한 외부공간도 만들 수가 있었고 집에서 밖을 보는 풍경도 완전히 다르다. 같은 구조로 층층이 쌓아 올려 층마다 앞뒤로 비슷한 풍경을 보여주는 아파트와의 차이다. 방이 2개인 3층에는 박공 모양의 다락을 두고, 천창을 냈다. 공간이 달라지면서 삶도 바뀌었다. 명절이나 생신 등 특별한 날 만나 식사하고 헤어지곤 했지만 한집에 살면서 함께하는 시간이 많이 늘어날 수밖에 없다. 의뢰인은 사람들이 모이는 게 불편했다면 모여 사는 게 싫었겠지만 사람들이 복작거리면서 사는 게 좋았다고 했다.



Plan _ 2F

Plan _ 3F


집의 이름은 ‘비나채’
‘비우고 나누고 채운다’는 의미로 독실한 크리스챤인 의뢰인이 직접 지었다. 집 이름의 뜻을 물었을 때 의뢰인은 다음과 같이 말했다.
“집을 지으면서 욕심이 많았지만 가족을 위해 비웠고, 집을 통해 주변과 나누고 싶었고, 비우고 나눔으로써 얻어지는 행복에 감사함으로 집을 채운다는 의미를 담았어요.” ■



Plan _ RF


















