


Site Plan
이 건축물은 파도의 움직임과 해변을 형상, 파도의 물보라 등을 이미지화하고, 형상을 만드는 스키마가 되었다. 이 스키마들은 서로 융합하고, 작용하여 이미지를 만들어낸다. 흰색의 볼륨은 서로가 엉키면서 각자의 덩어리가 드러나도록 하고 있으며, 그 흰색의 덩어리는 넘실거리는 파도와 서로 대화를 시도한다. 서서히 높아지면서 구축된 공간은 건축적 시선을 고려한 것이다. 건축적 시선 앞에 연속적인 전경이 만들어지고, 이 전경은 움직임이 이루어지는 동안 끊어지지 않으면서 이 장소만의 풍광을 만들어낸다. 그리고 이 풍광은 이용자의 움직임을 유도하면서 말은 건넨다.


Elevation

Elevation




건축물은 일광 해안의 생김새에 대응하는 방식으로 자리 잡았고, 이를 통해서 가장 효율적인 바다의 조망을 이끌어낸다. 외부의 도로에서 동선을 유도하는 통로를 거쳐 접근하면, 건축물에 도달하기 전에 색다른 반 외부적인 공간부스를 만나게 된다. 이 볼륨은 거친 노출콘크리트로 구축되어 있고, 유리를 이용해서 에워쌈의 농도를 조절하면서 공간을 만들어낸다. 그곳은 무심코 비워져 있지만, 우리는 비워진 공간을 의아하게 바라보면서 공간의 존재를 느낄 수 있다.



Section

Section


1층으로 들어가면, 한눈에 바라볼 수 없는 공간이 휘감아 돌면서 상승하는 형상을 가지고 있다. 이곳에 서서 바다를 바라보면, 외부의 난간을 통해 수평선만이 보인다. 내부는 역동적이지만, 외부의 바다는 정적인 모습으로 인식되도록 의도적으로 시선의 높이를 조절하였다. 2층으로 오르는 계단은 하나의 오브제로 강조하였고, 이 계단은 상부층과 수직적으로 한 공간임을 나지막하게 이야기한다. 계단을 오르면서 보이던 풍광은 2층에 도달하면서 새로운 방향성의 시선을 유도한다. 그리고 앞에 펼쳐진 2층의 풍광은 이용자가 재빨리 우측으로 돌아가게 유도한다.


Plan _ 1F



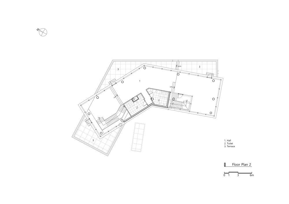
Plan _2F


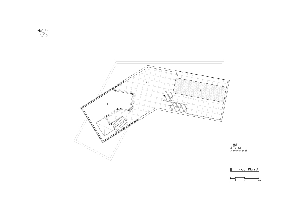
2층은 2단계의 레벨로 구성되어 있고, 2층 외부의 테라스는 또 다른 레벨로 이루어져 있다. 이러한 레벨차이가 다양한 지점에서도 바다를 향한 시선을 확보해주는 역할을 한다. 2층의 종점에 위치한 빛이 가득한 유리 볼륨은 옥상으로 올라가는 유도장치이며, 이제부터는 바다의 파도소리와 바람소리를 직접 들을 수 있는 공간이 연속된다. 옥상에 도착하면, 바로 바다를 보여주지 않는다. 바다를 직접 보려면, 또다시 한번 움직이는 수고를 하여야 한다. 이제 두 갈래의 움직임 중 한 개를 선택해야하고, 이는 색다른 바다와 풍광을 선택할 수 있는 노력과 대가로 작용한다. ■

Plan _ 3F



Plan _ RF



















