

오늘날 우리의 도시는 서로 다른 욕망에 충실한 결과물들로 둘러싸여, 불편한 도시 공간의 구축물이 경쟁하는 환경에 놓여 있다. 서로 다른 욕구의 충돌은 도시 곳곳에서 끊임없이 발생하며, 어느새 절제의 미학은 사라지고 욕망의 포화상태에 이르고 있다.

본 프로젝트는 동대문에서 청바지 도매업을 하는 의류 회사 HWN의 사옥이다. 건축주는 기존의 동대문 제품에 대한 선입견과 열악한 근무 환경을 탈피하여 이미지를 쇄신하고, 해외 바이어를 위한 쇼룸 및 제품 촬영 스튜디오 등을 갖추기 위하여 사옥을 의뢰하였다.


사이트는 중구 신당동에 위치하고 있다. 동대문종합시장, 평화시장 등 이름만 들어도 알 수 있는 의류 시장들이 즐비해 있는 동대문과 가까운 지리적 특성 탓에 신당동은 오랜 시간 동안 동대문 의류 시장의 혈맥이 되어왔다. 동네 여기저기를 둘러보면 ‘패턴’,’샘플’,’그레이딩’등의 단어가 적혀 있는 크고 작은 간판들과 함께 건물 앞에 수북이 쌓여 있는 원단과 각종 부자재들 그리고 오래된 건물들과 배달을 위해 바삐 움직이는 오토바이들이 복잡한 거리의 풍경을 더욱 혼잡스럽게 만들고 있는 것이 현재 신당동의 모습이다.

이렇게 복잡한 거리의 모습 속에서 HWN 사옥은 욕구를 제어하며 극도의 간결함으로써 한 발짝 물러서서 존재하고자 한다. 건물은 크게 서로 다른 질감을 가진 세 개의 콘크리트 박스가 얹혀져 있는 형상을 갖는다. 마치 같은 원단을 쓰더라도 그 가공 방식에 따라 다양한 표정이 나오는 청바지처럼, 세 개의 볼륨은 같은 콘크리트에서 OBS합판 거푸집을 사용한 노출콘크리트, 수압 치핑을 이용한 노출콘크리트, 일반적인 노출콘크리트의 서로 다른 마감 방식을 통해 순수한 질감을 다양하게 보여준다. 또한 마감 처리의 방식에 따라 자연스럽게 표현되는 색상과 음영을 가지며 존재한다.

건물은 크게 수직적으로는 2개층씩 총 3개의 프로그램 박스로 구성된다. (1~2층: 쇼룸 및 연계공간, 3~4층: 오피스, 5층~옥상층: 포토스튜디오) 그리고 수평적으로는 동측에서 서측 순으로, 각각 코어존, 서비스존, 프로그램존의 3개의 밴드로 이뤄진다.
Section

Plan_RF

겉으로 보이는 간결한 매스와 절제된 입면의 느낌과는 달리, 건물에 들어서는 순간 이내 전혀 다른 공간을 마주하게 된다. 콘크리트 난간 벽으로 만들어진 공용공간의 계단은 마치 콘크리트 덩어리를 잘라 놓은 듯한 형상으로 각 층마다 그 위치와 형태를 달리하며 과감한 공간감을 선사한다. 또한 공용 밴드를 거쳐 주요 프로그램 공간에 들어서면 또 다른 느낌의 공간을 마주하게 된다. 1~2층 볼륨에 들어서는 순간, 무표정한 입면과는 반전이 있는 초록이 가득한 화사한 후정 공간이 있으며, 이는 계단식 쇼룸과 연계하여 계획되었다.

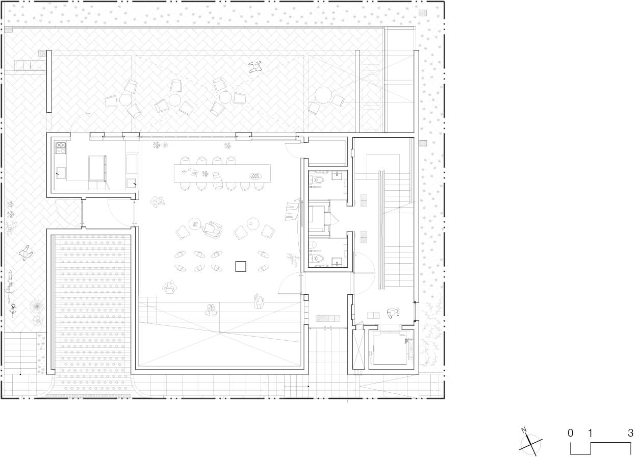
Plan_1F


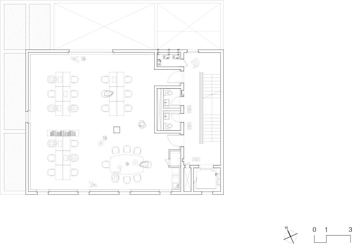
Plan_2F
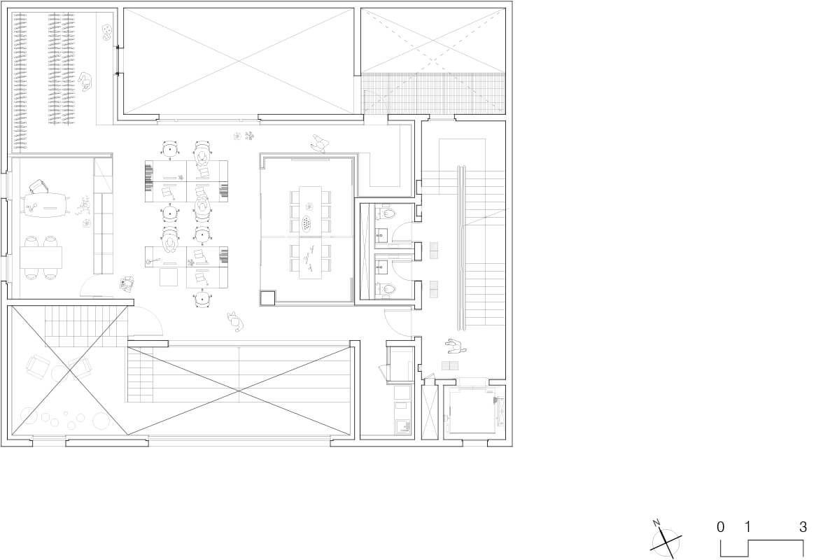
Plan_3F


저마다의 욕망을 뽐내는 복잡한 도심 속에서 HWN 사옥은 순수한 질감으로 콘크리트를 직조하며 차분한 도시의 배경이 되어 녹아들고, 들떠있는 주변을 가라앉히며 존재한다. 빠르게 등장했다 사라지는 수많은 의류 업체들 속에서 한결 같은 우직함과 신뢰감으로 존재하기를 기대한다. ■

















