

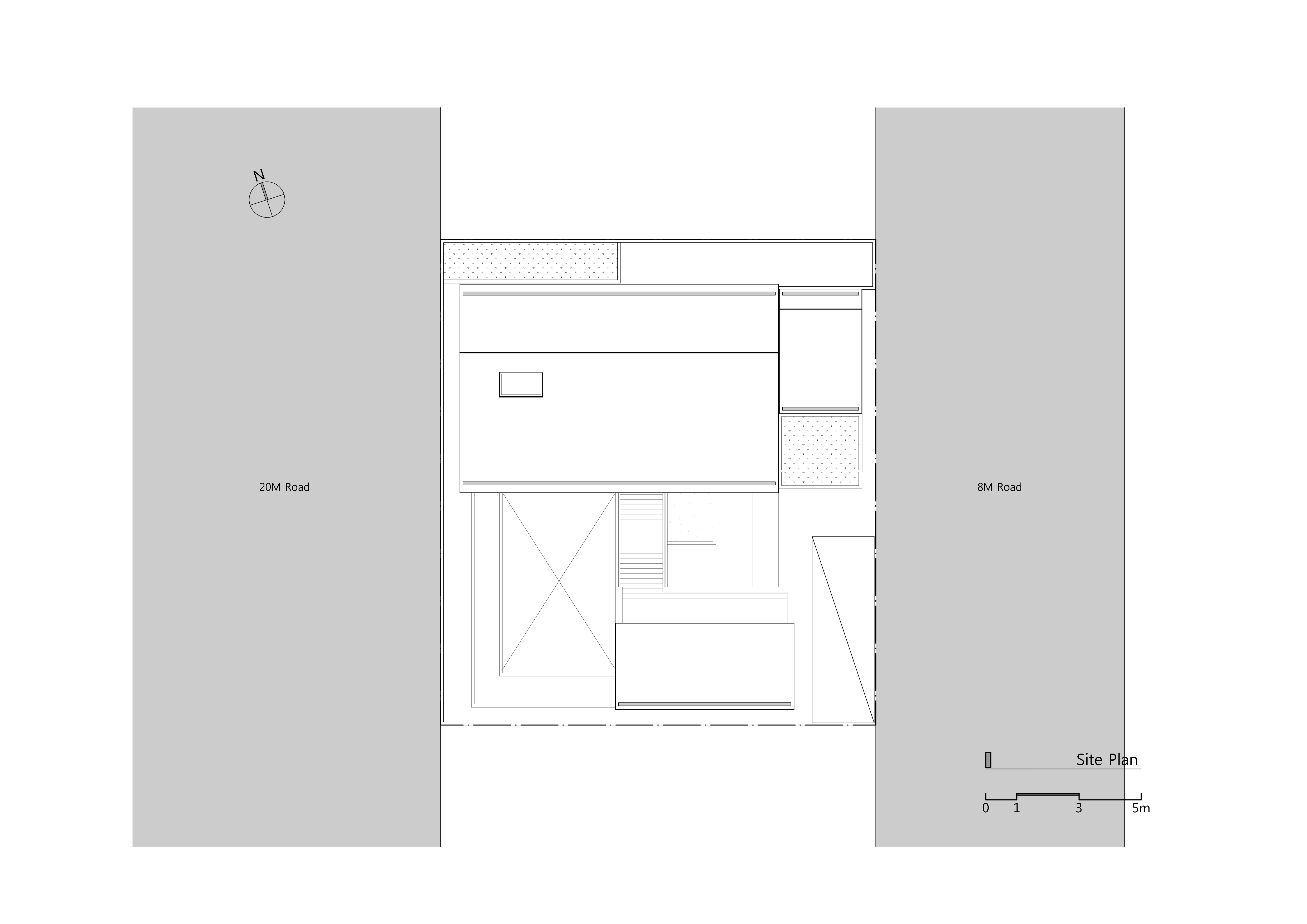
Site Plan
경제적 논리에 따라 일반적인 집은 땅의 규모에 따라 집의 크기도 정해진다. 특히 신도시에 조성된 필지의 집들은 대부분 지정된 건폐율과 용적률의 규모로 집을 짓는다. 하지만 이 집은 젊은 부부와 어리 아이로 구성된 작은 가족을 위한 집이다. 그래서 현재 가족구성원에 필요한 최소한의 집을 짓고, 가족의 성장에 맞추어 집도 성장할 수 있도록 하였다.

Elevation
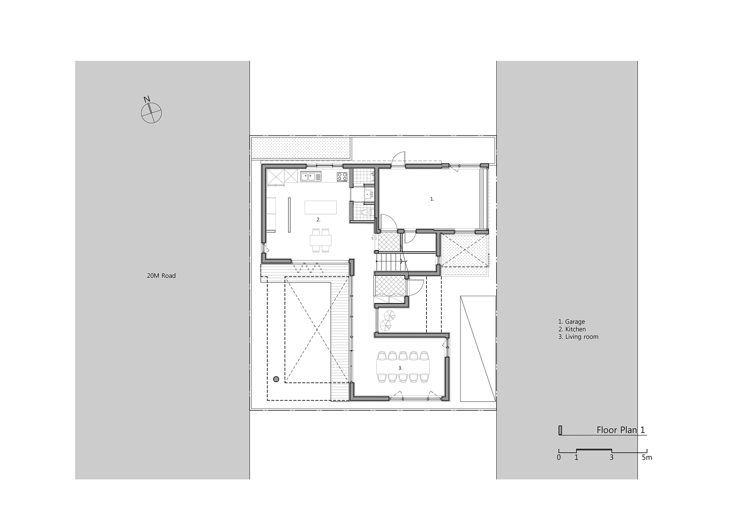
지금 형편에 따라 어린집을 짓고, 이 어린집은 앞으로 성장할 수 있는 다양한 바탕이 될 수 있도록 하였다. 아이의 성장에 따라 집도 성장할 수 있는 집이 바로 어린집이다. 공간도 처음부터 완성되어 있지 않고, 살면서 가족이 완성시킨다. 방과 방 사이에는 기능이 확정되지 않는 사이공간이 있어 삶의 변화에 대응할 수 있다. 거실은 주거공간과 별도로 구분하여, 거실에서 놀이방, 서재, 게스트룸으로 성장할 수 있다. 현재의 차고는 아빠의 취미실, 미래에는 공방으로 성장해 나갈 수 있다.
Section
전체구성은 최소한의 주거를 위한 볼륨과 거실 그리고 차고로 구성되어 있고, 안마당은 담장과 협력하여 만들어진 공간이다. 안마당의 상부에 매달린 구조물은 마당이 다양한 쓰임새의 공간이 될 수 있도록 해주는 장치이다. 앞마당에는 루버로 만들어진 작은 파빌리온을 만들어 아이의 감성을 자극해 줄 수 있도록 하였다. 빛을 걸러주고, 나무가 성장하면, 나뭇가지와 파빌리온은 서로 섞이게 된다.
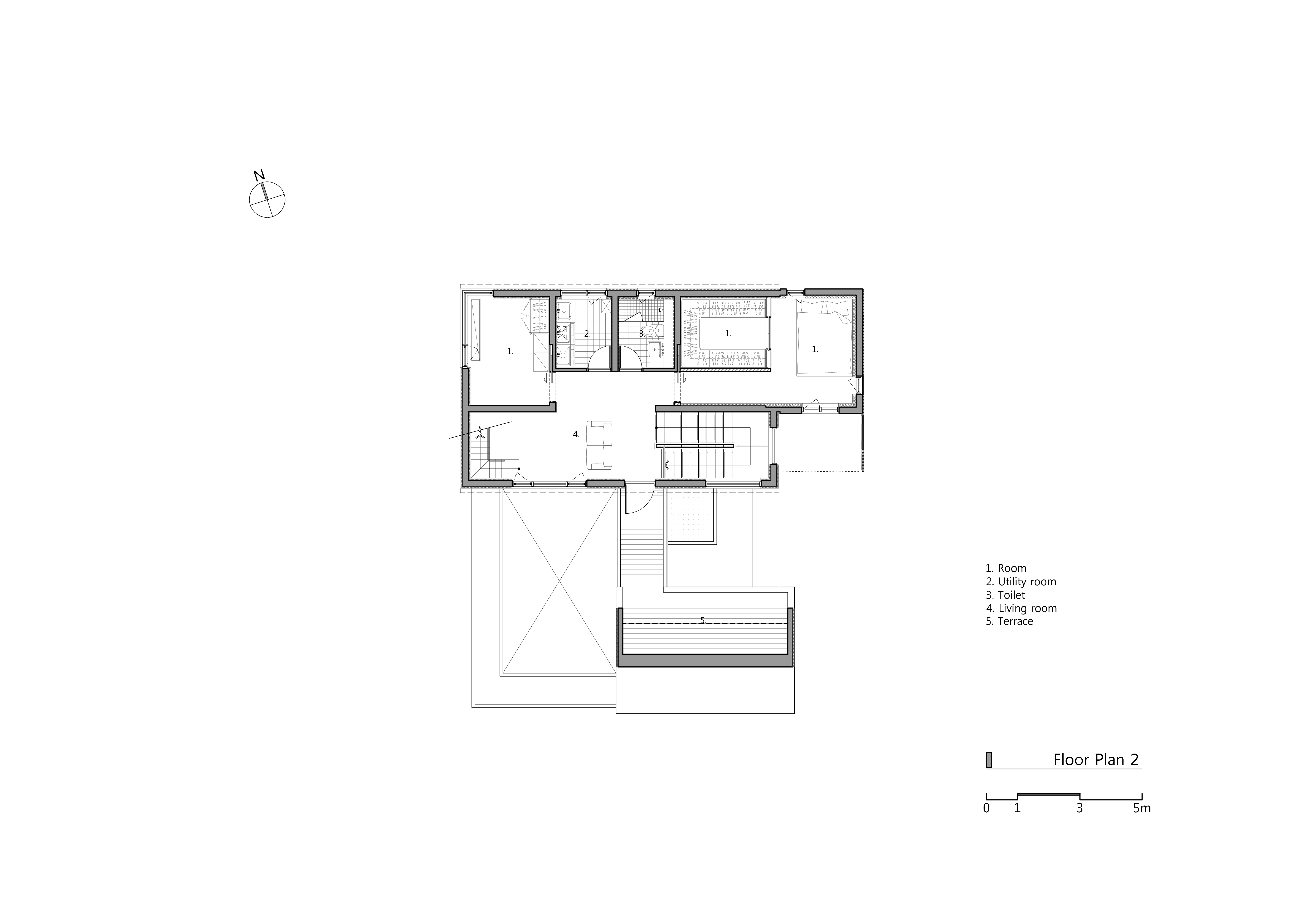
아이의 성장에 따라 집도 서서히 성장하고, 미래에 대응한다. 2층의 주거공간은 아이와 부모의 공간이 전체적인 연속성을 가진 한 개의 공간인 동시에 언제든지 변화될 수 있는(확장, 구분) 가변적인 공간이 된다. 어린집에서는 마치 아이의 키가 자라듯이, 현재의 거실이 새로운 또 하나의 집으로 커 나가고, 차고는 새로운 공방으로 커 나갈 수 있다. 또한 마당은 외부의 거실, 아이의 놀이공간으로 내부생활의 확장공간으로 커 나간다.

Plan_1F

처마와 담장은 하늘과 땅 사이에 존재하면서 하나가되어 새로운 공간의 영역을 만들어준다. 차고의 볼륨과 루버로 만들어진 화이트 파빌리온은 아이의 나이와 같은 나무를 에워싸는 이미지로써 집이 되고, 이 공간은 아이의 성장을 기억하는 또 다른 잠재적 공간이 된다. 흰색의 박공지붕은 주변과의 차별화를 시도하면서 젊음을 이야기하고, 흰색은 무한한 잠재력의 바탕이 된다. ■
Plan_2F
















