
사진

Sketch
해운대와 송정을 가로지르는 대로변 모서리에 대지가 있다. ㄱ자형 건물이 오픈 스페이스를 둘러치고, 경사진 벽면은 도로의 소음과 번잡함을 차단한다.
흩어진 7개 기둥은 도심 속에서 마당을 형성하고, 이곳에선 다양한 행사가 열린다. 이렇게 보호된 외부공간은 시민, 특히 어린아이와 노약자에게 귀한 공간이 된다.

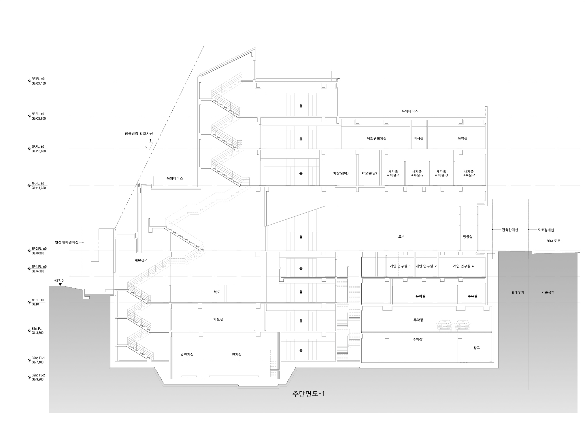
Section
대지는 전형적인 부산의 경사 도로변 옹벽 아래 편편한 곳이었다. 대지보다 두 층 정도가 높은 도로가 남쪽으로 지나면서 낮은 마당의 일조 공금을 위해 북쪽 가장자리로 건물이 물러났다.

각기 다른 높이의 길에서 진입하는 2개의 출입구와 그 사이를 잇는 경사로가 단차를 극복하는 해결책이 되었고, 패여 나간 땅의 공간을 효과적으로 건축물이 메웠다.

Section
오산교회는 작은 도시와 같다. 외부와 관계 짓는 실내의 경사로 홀, 적절하게 가려진 마당, 둘레의 화단 등은 축소된 도시 요소다.
그러므로 교회건축이 도시문화와 교회문화를 공유한 근거를 마련해 주고 있다. 공공의 마당을 마련한 것은 이웃을 향해 적극적으로 공간을 제공하려는 의도다.

Plan_ 1F
너무 열려 있지도 너무 닫혀 있지도 않아서 공공의 효용성이 높다. 경사로 공간은 복도이자 계단이고 홀이다. 외부 마당으로 열려 있어서 전체 교회의 중심이 되고 근사한 전망대 역할도 한다.

Plan_3F

날이 저물면 마당을 밝히는 등대가 된다. 경건한 교회의 거룩함과 외부 마당이 갖는 공공성의 관계를 통해 공간적으로 역동성을 갖게 되고 더 풍성한 프로그램을 담을 수 있다. ■
















