

우리비전 교회
빽빽한 도시에서는 수많은 요인들이 건축물의 크기, 모양, 쓰임새를 만들어 낸다. 건축법, 주차 대수, 수익성, 심지어 까탈스러운 이웃까지. 그래서 건축가들은 자유롭게 구상하고, 마음대로 시도할 수 있는 널찍한 부지에서의 건축을 꿈꾼다. 처음 방문한 우리비전교회의 부지가 딱 그랬다. 무엇이든 할 수 있을 것 같은 벌판 가운데 과수원 자리. 급속한 도시화가 진행되는 내포 신도시에 인접한 이곳 역시, 조만간 큰 변화가 예상되지만 일단 현재 주어진 조건은 헐렁한 교회 재정과 반짝이는 교인들의 기대 외에는 없었다.



Sketch
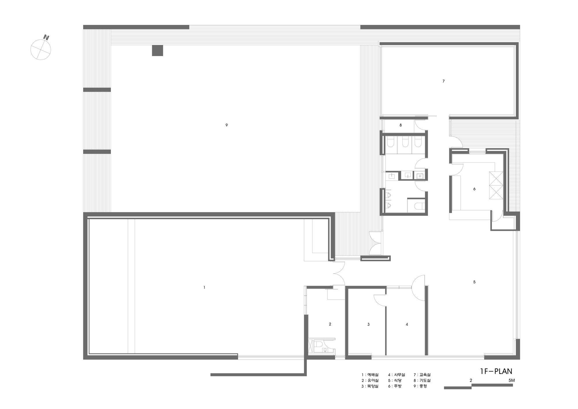
하지만 주어진 조건이 적기 때문이었을까? 방향을 정하지 못한 채 작업을 반복하였다. 어떠한 건축적 접근도 그리 타당해 보이지 않았다. 지겹기만 한 엄마의 잔소리가 때로 그리워지듯 디자인의 단서가 좀 더 있었으면 하는 아쉬움이 있었다. 컴퓨터 안에서 짓고 부수기를 수차례 한 후에야 겨우 방향을 정하였다. 일단, 여유있는 대지에 건물과 연결된 오픈 프레임을 둘렀다. 이 오픈 프레임은 그늘을 만들고 비를 가리는 회랑이다. 마음을 가다듬으며 예배당으로 향하는 진입로이다. 더불어 이 오픈 프레임은 사방으로 열린 게이트이다. 잔디가 깔린 아늑한 마당으로 초대하는 건축 장치이다. 건물에 붙어있는 무심한 유리 출입문보다 안마당이 들여다 보이는 게이트가 소통을 위한 더욱 적극적인 표현이 될 것이다.







그리고 오픈 프레임의 한쪽 편에는 높이 솟은 십자가 탑을 붙였다. 십자가 탑은 이곳이 교회임을 나타내면서, 전체 형태에 균형을 잡아주는 균형추 역할도 한다. 높은 층고의 예배실과 낮은 높이의 오픈 프레임이 십자가 탑으로 인해 안정감을 찾는다. 내부와 외부의 주된 재료는 노출 콘크리트와 벽돌이다. 외부는 노출콘크리트 외벽 위에 벽돌을 얹어 변화를 꾀했다. 내부는 외부재료를 동일하게 사용하여 전체의 맥락을 유지하고, 시공상의 간편함과 경제성을 도모하였다. 예배실의 천창에서 떨어지는 빛이 거친 벽돌 표면에 닿는 느낌은 고상하고도 싱싱하다.




완성된 교회는 수많은 선택의 가능성 중 건축가가 결정하고 의도한 대로 결국 지어졌다. 하지만 건축가가 최선이라고 자신하는 것이 얼마나 허술한지 잘 알기에 건축주의 눈치를 살필 수밖에 없다. 다행히도, 그리고 감사하게도 교인들은 새로운 예배처소를 함께 기뻐해 준다. 건축가야 늘 아쉬움이 남지만 건축주의 너그러운 평가에 노심초사했던 마음을 내려놓는다. ■


Section

Plan
















