


Site Plan
월내 반쪽집
필자가 사용하는 skin의 의미는 벽과 벽사이의 구조체와 피복된 것들(물질적) 뿐 아니라 사물이나 이미지들 사이의 경계에 존재하는 모든 것들(물질과 빗물질)을 말한다. 그리고 표면을 넘어선 경계의 의미로써 하늘이나 자연과 건축물사이, 땅과 건축물사이, 공간과 공간사이, 공간과 물질사이, 이미지와 실제사이에 존재하는 경계를 skin으로 확장하여 사용한다.
이러한 3차원적인 skin은 건축물의 표면을 넘어서 빛과 결합하여, 공간, 볼륨, 땅, 도시, 도로의 스킨으로써 이미지를 만들어낸다. 이 반쪽 집은 외부의 어느 곳에서 보아도 그러한 스킨의 조작을 통해서 이미지를 완성하려고 하였다. 땅의 스킨을 외곽에 두면서 강조하고, 그 안에 볼륨의 스킨과 공간의 스킨이 있음을 드러내려고 하였다. 즉 깊이에 따라 skin들을 나열하고 비틀어서 시각적으로 이미지화하고 빛과 결합될 때 최종의 형태가 완성되도록 하였다. 또한 도로에서의 잘린 스킨을 드러내어 반쪽 집임을 상징화 하려고 하였다. 그래서 반쪽 집에서 skin의 조작은 때로는 영역을 한정하고, 때로는 주변의 콘텍스트와 관계를 맺으며, 때로는 조형적인 이미지를 제공한다.
Section
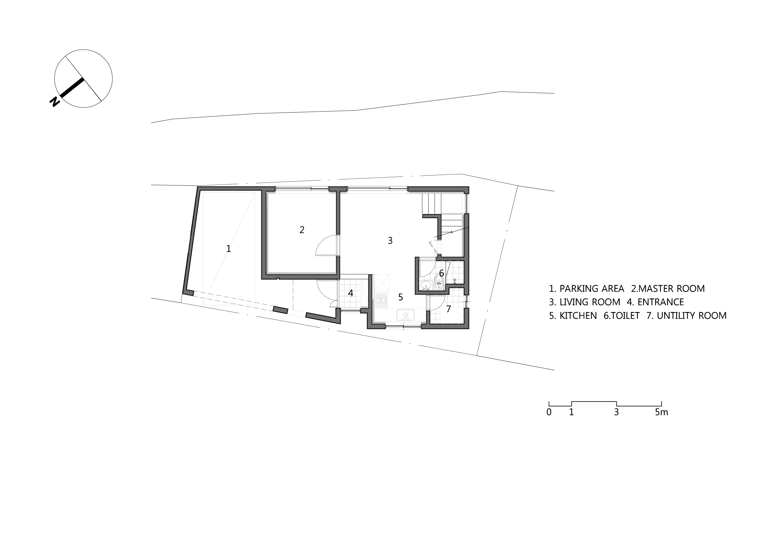
반쪽집의 내부공간은 우선적으로 이용자의 움직임에 따른 시각적 확장을 위해 창을 내고, 그 창을 통해서 과거 온전했던 집에서 누리던 것보다 넓은 공간감을 제공하였다. 이 창들을 통해서 이웃과, 주변의 나무, 바다, 도로, 그리고 새로운 조형의 이미지와 소통할 수 있도록 하였다. 그리고 좁은 내부공간에 이용자의 다양한 라이프스타일을 담아내려고 하였다. 즉 법적인 주차장은 평소에는 마당으로 사용하기 위해 담장의 구조물을 건축물과 일체화 시켜 땅의 스킨으로 인식가능하게 하였고, 자녀들이 방문할 땐 주차장으로 사용 가능케 하였다.

Plan_1F

Plan_2F
1층의 거실은 평소에 거실과 주방의 기능을 동시에 만족시키며, 자녀들의 방문 시에는 또 하나의 방으로 사용케 하였다. 2층의 가족실은 한 공간으로 통합하여 평소에는 거주자의 작업실로 사용하고, 게스트룸과 자녀들의 침실을 겸할 수 있도록 하여 절대적으로 부족한 공간의 대안으로 제공하였다. 특히 2층의 테라스는 게스트나 자녀들이 방문하였을 때 좋은 풍광을 제공하는 장소로써 기억되도록 하였다. ■