
사진





Diagram

Diagram

Elevation

Elevation
서울 강남의 고층 건물 밀집 지역은 끊임없이 움직이는 현대 도시의 상징이다. 분주하고 소란스러운 환경 속에서, 직장인들과 거주민들은 일상에서 벗어난 쉼을 갈망하곤 한다. 본 프로젝트는 바로 이러한 도시의 '오아시스'(지친 사람들이 잠시 멈추고, 숨을 고르며, 에너지를 충전할 수 있는 공간)를 구상하는 데서 출발했다.





Diagram

Section

Section
이 환상적인 도심 속 쉼터에서, 'Blooming Cloud'는 시민들과 방문객들에게 고요한 순간을 찾을 수 있는 장소를 제공한다. 시민에게 열린 공간을 만들기 위해 건물의 배치와 매스 계획이 신중하게 검토되었다. 폐허처럼 버려졌던 부지를 활기차고 유쾌한 도시 공간으로 탈바꿈하기 위해 파사드 스터디부터 시작하여 다양한 매스 옵션을 탐색하며 '도시 속 오아시스'라는 개념에 부합하는 디자인을 도출하고자 했다.



디자인의 중심에는 아트리움 위로 부양되는 풍선 구조물이 중첩된 비계(足場, scaffolding) 구조가 자리하고 있으며, 이는 덧없고 가벼운 감성과 도시 적응력을 상징한다. 이 비계 구조는 재사용과 재활용이 가능하여 지속 가능한 디자인의 가치를 더하며, 건설 폐기물을 줄이고 자원 효율성을 높이는 데 기여한다. 향후 프로젝트에 재활용될 수 있는 모듈형 구성요소를 통합함으로써, 이 디자인은 영구성에 대한 기존 개념에 도전하며, 도시 건축과 공공 공간 사이에 친환경적인 대화를 유도한다.








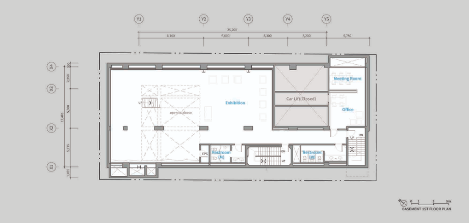
Plan_B1

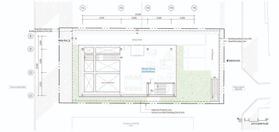
Plan_1F
공중에 떠 있는 듯한 형상은 도시의 딱딱한 격자 구조와 시각적 대비를 이루며, 방문객에게는 잠시나마 무중력의 신비로움을 경험하게 한다. 투명성과 구조의 상호작용은 도시 환경과 인간 경험 사이의 역동적인 관계를 더욱 강화하며, 건축과 예술, 그리고 공공의 상호작용을 잇는 하나의 성소로 기능한다.◼︎


















