






Diagram

Elevation

Elevation

Site Plan
강원도 북단 고성의 바닷가에 자리잡은 사이트는 해안가 모래사장으로 대지가 돌출되어 있었고, 이 대지에는 작은 주택으로 사용되고 있었다. 마당에서 보면 해안선과 수평선 그리고 그 중심에 홀로 서 있는 작은 섬이 보였다.
‘백도’라는 작은 섬은 항상 흰색으로 보이는 특징을 지닌 섬이었다. 일반적으로 바위로 이루어진 섬은 대부분 회색이거나, 검은색으로 보이는 것이 일반적이다. 하지만 백도는 마치 콘크리트가 산화되어 백화 현상이 생긴 것처럼 흰색을 띠었다. 많은 새들의 배설물과 바위가 바닷물과 반응하여 만들어낸 것으로 추정되기도 한다.








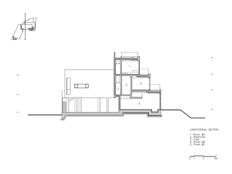
Section

Section
이것을 바라보는 건축, 그리고 이 백도와 다이얼로그 하는 조형과 건축공간을 만들려고 했다. 건축에서 다이얼로그는 서로 간에 조형적·의미적 관계를 맺는 것이다. 그러기 위해서 백도의 자연스러운 형상에 대비되는 기하각적인 입방체를 완성했다. 하지만 백도가 시간을 거슬러 자연스럽게 많은 원인들이 적층되었듯이 기하학적인 입방체를 자연스럽게 쌓아가는 방식은 백도의 형성과정을 닮아가려는 시도였다.



적층된 각 입방체는 모두 백도를 향한 시선을 가진 공간을 품고 있는 볼륨이 되고, 각 입방체마다 백도를 향한 관계는 조금씩 변화된다. 또한 백도의 흰색처럼 건축의 외장재료는 콘크리트의 물성과 흰색의 처리를 동시에 할 수 있는 방법을 모색했다. 노출콘크리트 위에 화이트 산화 시멘트 페이스트를 칠했다.







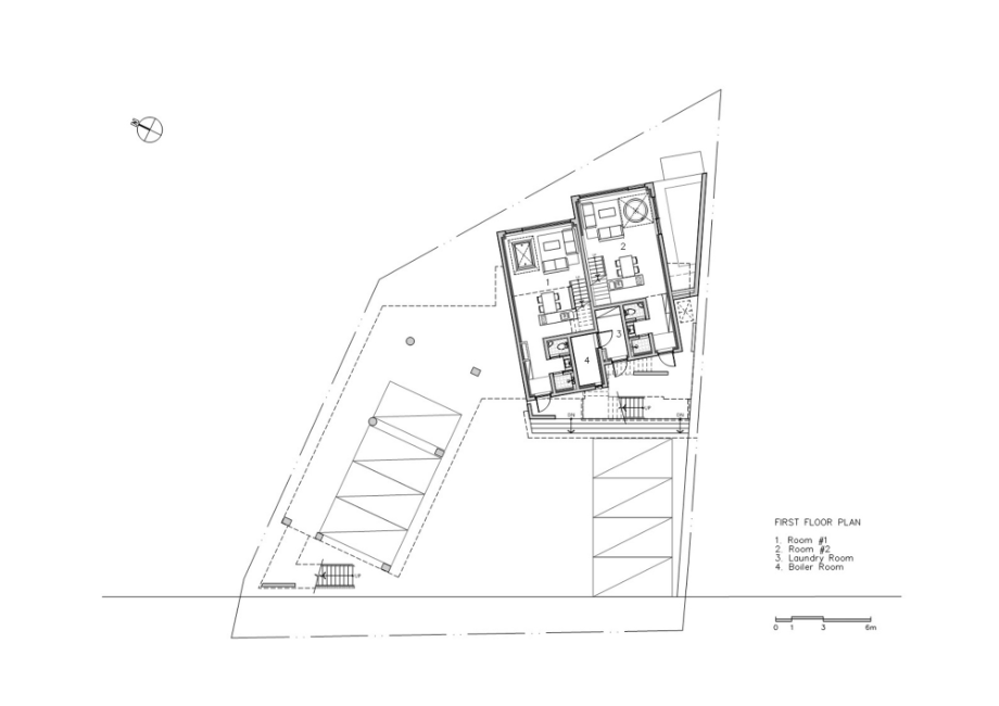
Plan_1F

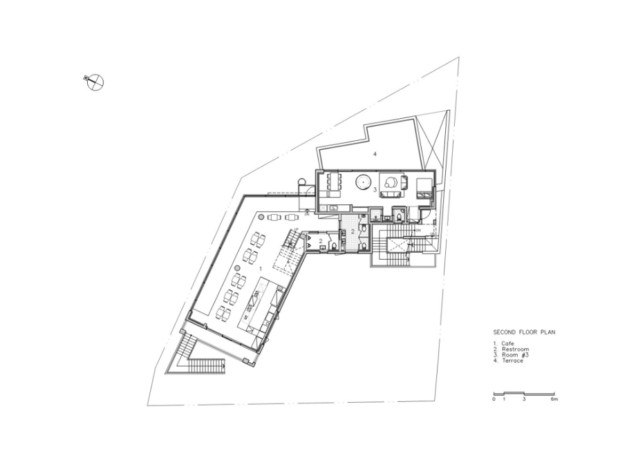
Plan_2F

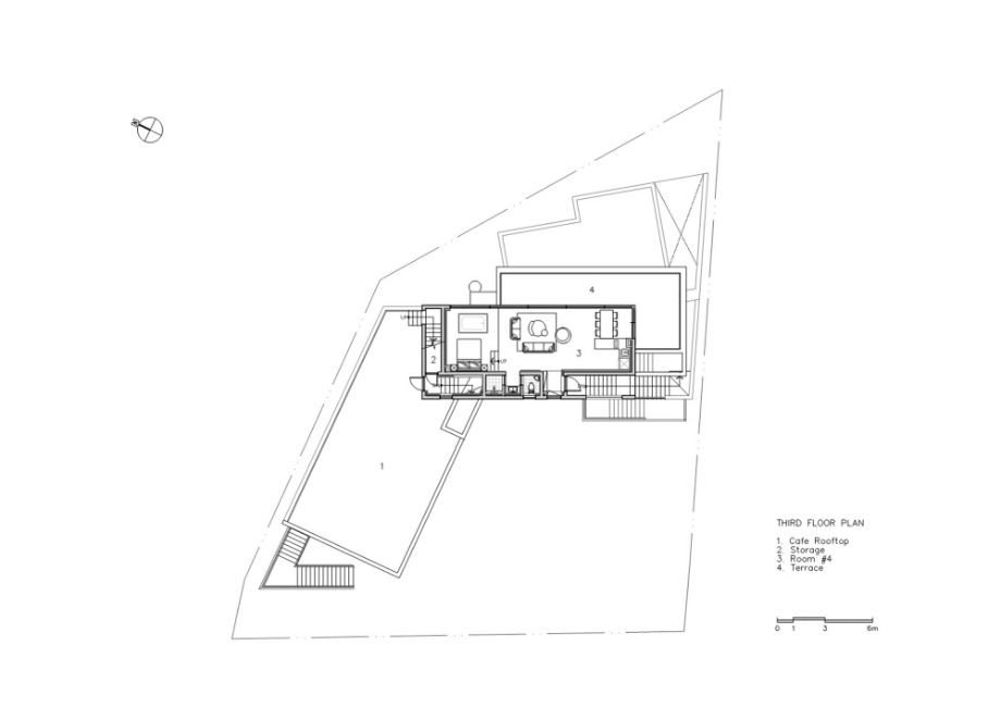
Plan_3F
강원도 한적한 장소에 백도를 마주하고 있는 '모노섬'은 건축과 공간이 뭉쳐져서, 새롭게 만들어내는 자연의 백도와 관계를 맺는 새로운 작업이다.◼︎



















