
사진







Elevation

Elevation

Site Plan
새로운 풍경
신도시의 공원과 신도시 바깥 마을의 경계에 위치한 부지에 세워지는 건물은 어쩔수 없이 기존 마을에서 바라보는 풍경을 바꾸게 된다. 땅의 지형적 특성과 근린생활시설 특성상 나무와 산이 보였던 풍경 그대로일 수는 없지만, 새로운 건물이 조금은 다정한 표정으로 마을에 조용히 말을 건네는 새로운 풍경이 되어주기를 바랐다.









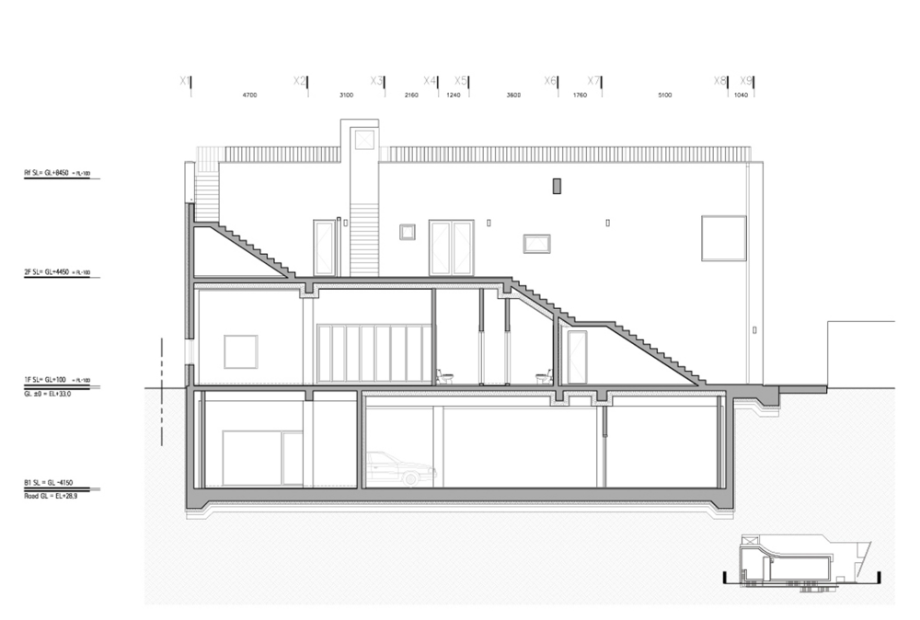
Section

Section
부드러운 벽
벽은 부드럽되 단호하게 안과 밖을 경계 짓는다. 투박하고 고요한 벽의 바깥세상에서 벽을 따라 올라 벽 안쪽으로 들어서면, 나무들과 햇볕과 나무그림자들을 온전히 받아내는 마당이 나타난다. 벽의 따뜻한 백색과 아치 등 곡선처리가 된 개구부들은 단호한 벽을 부드럽게 만들어 준다.





품어 안아진 마당
처음 땅을 만났을 때, 위쪽 공원의 아름드리나무들이 마당으로 드리워져, 마치 나무들이 땅을 보듬고 끌어안는 듯했다. 그 나무들의 품을 건물이 받아 안아, 포근하고 따스한 마당이 되기를 바랐다.
봄에는 하늘거리는 새잎들이, 여름에는 녹음이, 가을에는 단풍이, 겨울엔 나무그림자와 볕이 그득한 마당이다. 계절마다 다른 나무의 결은 백색의 건물에 그 계절의 패턴을 새겨넣어 변화하는 입면을 만든다.






벽 사이공간
마을을 향한 입면을 구성하고 있는 벽과 내부공간 사이에는 외부 계단을 두어 각 공간들 사이에 적절한 공간적 거리감을 두었다. 하얀벽 사이로 올리브색 난간을 따라 파란 하늘을 향해 올라가면 만나는 자주색 문은 경쾌한 분위기를 만드는 시각적 역할과 함께, 건축주 공간의 시작을 알린다.
계단 옆 마을을 향한 개구부는 마을에 보내는 따뜻한 메시지이자 내부의 답답함을 해소하는 역할을 한다. 동시에 인근 군의 요청 사항이었던 진지 구축을 대체할 수 있도록 협의해, 기능적· 행정적 문제를 디자인의 충돌없이 가능하도록 했다.







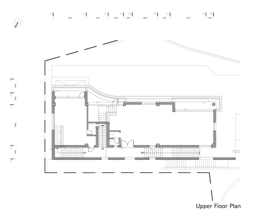
Plan_1F

Plan_2F

Plan_RF
용도에 따른 구성
지하1층에는 선큰 마당을 가진 작은 임대공간을 제안했고, 1층은 전체를 임대공간으로 예측하여 계획했고, 2층과 옥상은 임대공간과 건축주의 공간을 구분하여 계획했다.
중앙계단의 'ㄱ'자 벽은 2층 각 공간에서 각각 진입하도록 계획된 옥상을 답답함없이 분리해 준다. 결과적으로는 상황상 프라이빗 공간까지 전체 임대가 되었고, 사용자가 용도에 따라 구분하여 사용하고 있다.◼︎


















