







Elevation

Elevation
문명의 역사는 욕심을 바탕으로 이루어졌다. 지금까지 수많은 전쟁들은 상대의 무언가를 탐했기 때문이었고, 새로운 연구와 발견들은 더 나은 삶을 위한 욕구와 그 본능을 기반하여 오랜 탐구 끝에 이루어낸 성과였다. 타인과의 경쟁, 그리고 쟁취하는 행위 또한 욕심이 근간을 이룬다. 단순한 한자어 풀이로서 바랄 욕(欲), 마음 심(心), 무언가를 바라는 마음인 욕심은 우리 일상에서는 다소 부정적인 언어로 들릴지 모르겠지만 어쩌면 더 나은 세상을 꿈꾸는 인간 본연의 순수한 마음인 것이다.
자본주의 사회에서 이러한 욕심은 더 나은 이익을 위한 가장 정직한 마음일지도 모른다. 누군가 더 많은 돈을 벌 수 있는 방법을 알고 있다면 그 이야기를 듣길 마다할 사람이 과연 있을까? 그리고 그러한 방법을 알고 있다면 수단과 방법을 가리지 않고 이익을 위해 극한까지 끌어올리려 노력하는 행위를 그 누가 비난할 수 있을까? 이 이야기는 클라이언트의 욕심을 공감하고 함께 동행했던 처절한 고군분투기이다.





Section

Section
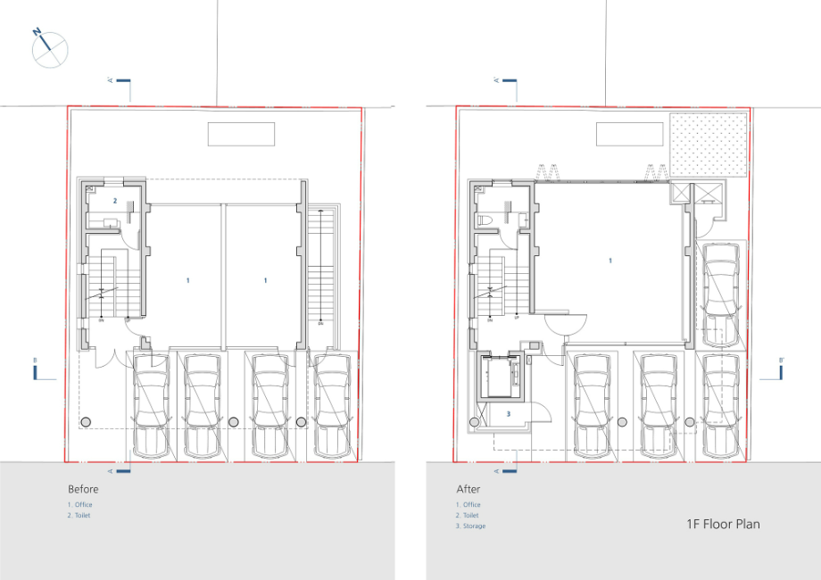
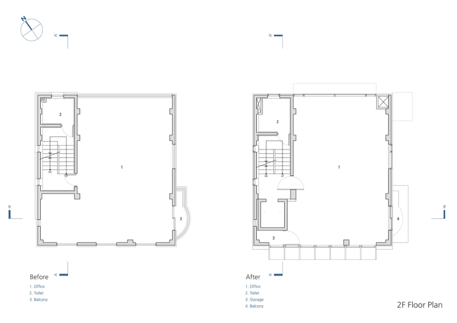
수익형 부동산 개념을 바탕한 임대형 건축물을 리모델링 하는 입장에서 가장 중요한건 투자비용 대비 효용일 텐데 그러한 방법에 대해 욕심을 내는건 당연한 심리다. 그러한 이유로 가장 저평가 될 만한 낡은 건축물을 찾아내는 일이 먼저였다. 엘리베이터가 없고 연와조 주택을 겸한 근생 건축물이자 오랫동안 불법건축물로서 관리가 잘 되지 않아 공실이 오랫동안 이어져온 이 건축물이 제격이었다. 하지만 오래된 건축물이라 지하에는 누수로 인해 바닥이 물로 찰랑거렸고 수직, 수평이 맞지 않은 평면과 들쭉날쭉한 계단의 형태로 인해 건축물 자체가 비뚤어져 있었기에 건축물을 반듯하게 정리정돈 하는 것이 필요해 보였다.
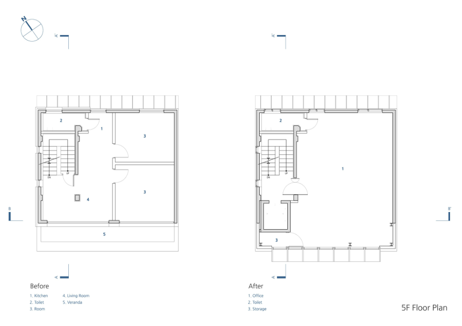
그러한 이유로 먼저 건축물의 새로운 축을 정립해야 했다. 엘리베이터 설치 및 내진성능 개선을 위해 계단실 폭에 맞춰 철근콘크리트구조의 내력벽을 외벽에 면하여 신설했고, 이는 전면 파사드의 돌출 정도의 기준이 됐다. 그 가상의 면을 바탕으로 기존 건축물 외벽의 경계를 다듬어 파사드가 하나의 존재로 여겨질 수 있도록 단단하고 큰 덩어리감을 가진 석재를 사용하여 마감했다. 이때에 근생으로 용도변경하는 연와조 주택(4, 5층) 부분은 각 실의 벽체 및 베란다의 경계를 허물며 H빔으로 구조보강을 하는데, 일조사선에 영향을 미치는 부분의 일부는 사선으로 처리하고 석재 파사드의 연속적 흐름을 이어주어 매스의 통일감을 잃지 않으려 했다.






그 위에 덧붙여진 격자 형태의 프레임은 기존 건축물의 비뚤배뚤한 불규칙함을 덮어 새로운 질서가 구축됨을 다소 과장하여 표현했다. 생각보다 세상은 반듯하지 않고 조금씩 비뚤어진 것이 정상이라는 인식이 실재하고 그래서 똑 떨어지는 그리드가 오히려 더욱 이질적으로 보일 수 있을 것이라는 것에 착안했다. 실제로는 (이 또한 완벽하게 반듯반듯 하진 않겠지만) 상대적으로 그렇게 보이는 실체로서, 어쩌면 불규칙 속에서 우연히 발견할 수 있는 질서가 될 수도 있겠다.
보통 건축물을 그릴 때에 네모안에 네모를 그리드 패턴으로 연속되게 표현하는 것처럼 이러한 네모가 가득한 풍경들이 모여 바로 도시를 이룬다는 것이 무의식중에 남아있을테니까. 사실 그러한 그리드(Grid) 체계의 입면 패턴은 구조에 따른 수직하중의 연속이 그대로 드러나는 것과 별개로 실제 건축물 층층이 각 실을 쪼개어 개별임대로서 융통성 있는 벽 구획이 용이하도록 했던 문제해결방식이 낳은 형태였는데, 클라이언트가 누누이 강조했던 ‘통임대도 가능하고 개별임대도 가능’하게 해달라는 이율배반적인 욕심(Greed)이 담긴 표현도구로서 실제로 내벽으로 구분할 수 있는 기준이 되기도 하고 조형적으로도 개별과 집합이 유연하게 구성될 수 있는 형태가 된다. 그렇게 그리드는 처마와 루버로서 정남향을 바라보는 건축물에게 있어 다소 부담스러웠던 태양빛을 걸러준다.







Plan_1F

Plan_2F

Plan_5F

Plan_RF
그러한 욕심 가득한 그리드는 혼잡하고 낡은 골목풍경에 대비되어 차분하고 깔끔한 오브제로 배경과 극명하게 대비된다. 특히 골목에 들어서면 건축물을 비스듬한 시점으로 마주하게 되니 그리드의 선 요소는 감쇄되고 면 요소를 먼저 마주하게 되어 그 느낌이 배가된다. 어쩌면 더 차갑고 도도해 보이는 인상인데다가 더 깔끔해 보이고 멋져보이며 좋아보이는 신축 건축물의 느낌이다. 그래서 원래의 분위기와 어울리지 않고 다소 튀어보이지만, 다른 대상보다 더 나아보이고자 노력하는 것은 자본주의시대를 바탕한 자유주의 시장경제체제의 부동산 임대시장에서 절대로 독단적이라고 비난할 수 없고 이기적이며 욕심이 가득하다고 폄하할 수도 없다.
정글에서의 생존은 그럴 수밖에 없고, 그렇기 때문에 우리는 클라이언트의 그 순수하고 간절한 마음을 담아 존경의 자세로 그리드를 띄워 보낸다.◼︎



















