



Before

Diagram

Diagram
방배동의 한적한 주택가에 자리한 작은 파출소는 오랜 시간 비워져 있었다. 콘크리트 구조물은 냉기만 머금은 채 세월의 흔적을 남기고 있었고, 그 옆에서 오래된 보호수 한 그루가 묵묵히 자리를 지키고 있었다. 처음, 이 장소를 마주했을 때, 우리는 건물이 아닌 나무에서 출발하기로 했다. 거친 콘크리트 구조가 살아 있는 자연의 존재와 공존할 수 있을까? 도시 안에서 작지만 따뜻한 숲 같은 공간을 만들 수 있을까? 코지모리는 이러한 질문에서 시작됐다.




Before

Before

Before
Diagram

Elevation

Elevation
기존 건물은 어둡고 단절된 내부를 가지고 있었으며 외부와의 관계가 거의 없었다. 설계의 핵심 과제는 구조를 유지하면서 폐쇄된 공간을 어떻게 열어낼 것인가, 그리고 느티나무를 중심으로 한 공간의 흐름을 어떻게 조직할 것인가였다. 구조적 보강이 필요 없는 비내력벽만을 최소한으로 해체하고, 주요 골조는 그대로 유지했다. 전면 파사드를 전창으로 바꾸는 것이 가장 중요한 전환점이었고, 자연광을 확보하면서도 프라이버시를 유지하는 균형을 이뤘다.







Diagram

Diagram

Diagram

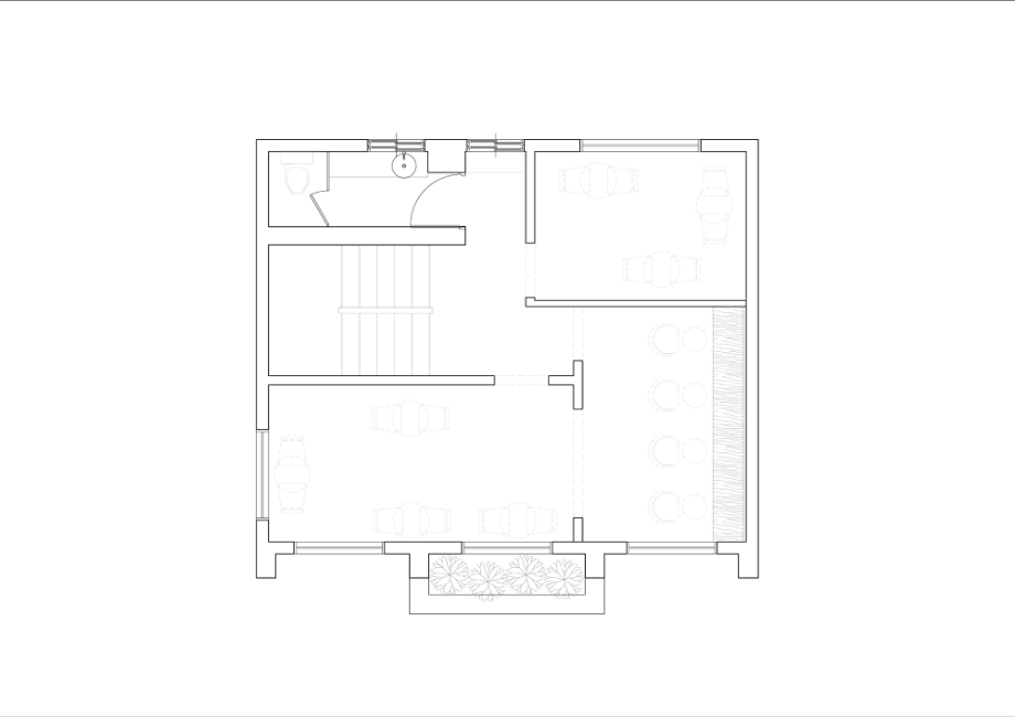
Plan_1F
재료 선택은 단순하고 정직한 방향을 따랐다. 외부는 일부 기존 벽돌 마감을 보존했고, 내부는 노출 콘크리트와 오크 목재를 주재료로 사용했다. 대형 로이유리(low-e glass)는 실내와 실외의 경계를 흐리며, 느티나무의 존재를 공간 안으로 끌어들인다. 외부 마당은 계절에 따라 다양한 활동이 가능하도록 계획되어, 이웃이 함께 머물 수 있는 확장된 커뮤니티 영역으로 기능한다.






Diagram

Diagram

Plan_2F
공간 구성은 의도적으로 느슨하게 유지했다. 바 테이블은 조용한 독서를 위한 자리이자 일상의 리듬을 담는 축이고, 아치형 천장 아래의 작은 공간은 낭독회나 모임이 열릴 수 있는 장소로 사용된다. 정원 쪽 창가를 따라 이어지는 긴 벤치는 단순히 앉아 나무를 바라볼 수 있는 쉼의 장면을 만든다. 공간은 명확한 경계 없이 자연스럽게 이어지며, 사용자마다 각자의 속도와 방식으로 재해석된다.
누군가에게 코지모리는 잠시 머무는 안식처가 되고, 또 다른 이에게는 일상의 작은 무대가 된다. 이 프로젝트는 단순한 리노베이션이 아니라, 한때 지역을 지켜보던 건물에 새로운 숨을 불어넣는 과정이었다. 조용하고 세심한 방식으로, 오래된 구조물이 다시 지역의 일부로 작동할 수 있도록 만드는 일. 그것이 코지모리가 품은 진정한 의도다.◼︎


















