





Site Plan

Elevation

Elevation
영도 굴항에 인접한 영도지역산업복지센터는 영도 도심지 굴항의 활성화 및 도심항에 지어지는 건축의 바다와 소통하는 열린 공간 창출 및 주민들이 이용하기 편리한 접근성 개선을 목표로 기존 건축물을 리모델링, 대수선, 증축의 설계를 진행하여 준공된 건축물이다.




Section

Section
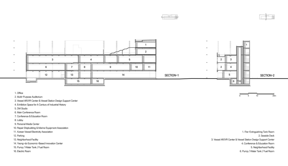
기존 토토볼링장과 실내, 옥상골프연습장으로 사용되는 건축물은 당초 기능으로 인해 폐쇄적인 공간 구조를 가지고 있었다. 이 폐쇄적인 건 축물을 바다와 서로 관계를 가지게 하고, 실외골프연습장으로 사용되 던 옥상을 도심 속 주민공유마당으로 사용되길 희망했다.




기존 건축물의 외피를 벗겨내고 테라스 및 옥상으로 이동하는 외부계 단을 배치하고, 옥상은 전체 휴게공간으로 탈바꿈하였다. 좁은 전면도로는 보행전용 아케이드를 구성하여, 1층의 접근성을 높이고, 1,2,3층 은 테라스 및 아케이드를 가진 열린 파사드로 디자인하였다. 건물 우측의 5개층 형태는 수평의 열린 파사드와 대비되는 콘크리트 블록의 간결한 매스로 디자인하여 주도로에서 진입시 건축물의 상징성을 고려했다.







Plan_1F

Plan_2F

Plan_3F
내부는 가변성 있는 칸막이 벽체로 구획하여 다양한 용도를 수용할 수 있도록 하고, 대회의실, 임대사무실, 카페, 센터사무실, 영상촬영 오픈스튜디오 등으로 구획되었다.







Plan_4F

Plan_5F
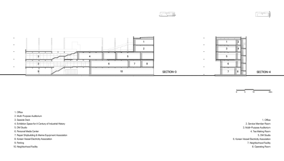
영도 대평동 조선소 인근의 밀집한 대지 사이에서 적지 않은 규모의 영도지역산업복지센터는 바다와 연관되는 열린 4층 루프탑의 외부공간이 특징인 건축이다. 5층과 연계되는 대형 스탠드 계단에서 바다를 보며 쉬기도 하고, 여름밤 영화를 보기도 하며, 4층 루프탑에는 영도의 지역축제들을 소화하는 열린 마당의 역할도 부여했다.
굴항 맞은편에서 보여지는 영도지역산업복지센터의 테라스를 가진 열린 파사드는 공공건축물의 디자인된 공용공간이 여유롭게 바다와 관계되어짐을 표출했다.◼︎


















