
사진






Diagram

Diagram
배수지의 변화. 기억의 중정.
동천도서관의 대지는 기존에 상수도 배수용 물탱크(37m x 19m x 4m)가 지하에 매립되어 있던 장소이다. 동천동 지역에 물을 공급하던 저장소의 공간은 이제 도서관으로 지식을 담고 전파하는 장소로 역할이 바뀌었지만, 물을 담던 공간의 기억을 유지하는 장치로 도서관의 중앙에 19m x 14m 크기의 중정을 비워둔다. 비워진 중정은 물 대신 자연을 담아 도서관 내부로 유입시키고, 도서관의 지하공간을 외부로 확장시키는 역할을 한다.
경사지와 건폐율
진입로에서 대지의 상단까지 고저 차가 이상이 되는 10m 배수용 물탱크가 매립되어 있던 건립 부지의 현황, 건폐율 20%, 용적률 40%의 법적 조건 안에서 도서관의 기능을 효과적으로 수행하기 위해 지하층을 이용하여 건폐율에서 벗어나 적극적으로 도서관 공간으로 활용하는 계획은 피할 수 없는 선택이었다. 외부로 개방된 전면을 제외한 지하공간에 채광과 환기를 조절하기 위해 3개의 스케일이 다른 선큰을 설치했다. 지하 1층의 공간은 도서관 기능의 A동과 강연과 동아리실 기능의 B동을 연결하는 플랫폼 역할을 수행한다.






Elevation

Elevation

Section

Section
프로그램과 외부공간
중앙의 중정을 중심으로 어린이도서관, 열람실, 업무지원공간, 문화교육공간이 순환이 되도록 프로그램을 배치한다. 각 프로그램들은 중정과 더불어 테라스, 옥상광장, 후정, 선큰 등 개별적인 외부공간을 가지도록 하여 도서관이 내부공간에 한정되지 않고 프로그램이 외부로 확장될 수 있도록 했다.
수평의 지형 솟아난 박스
수평의 선을 쌓아 대지의 지형을 드러낸다. 수평의 지형과 그 위의 기능을 담은 박스의 대비, 그리고 기능에 따라 솔리드와 보이드로 구성된 재질의 대비 그리고 깊이를 만드는 책을 닮은 루버 스킨의 구성은 빛과 그림자에 대응하여 변화하는 도서관의 모습을 만든다. 장서의 보호와 빛에 대한 조절이 필요한 도서관은 알루미늄 패널의 솔리드 매스로 드러난다. 외피와 루버가 만드는 그림자들은 자연의 변화를 기록하며 변화한다. 표피의 창을 최소화 하나지만 중앙의 광장을 통해 도서관의 채광을 조절한다.







Section

Section
풍경을 담는 광장
숲속 도서관인 동천도서관의 지상층 광장에서는 도서관 지하 중정으로 집중되는 구심력의 시선과 광장에서 외부로 열린 시선을 통해 주변의 숲과 풍경을 담는 원심력의 시선이 공존한다. 두 개의 시선 모두 숲을 바라볼 뿐 접근을 허락하지 않는다. 광장은 비어 있음으로 주변을 볼 수 있게 만든다.








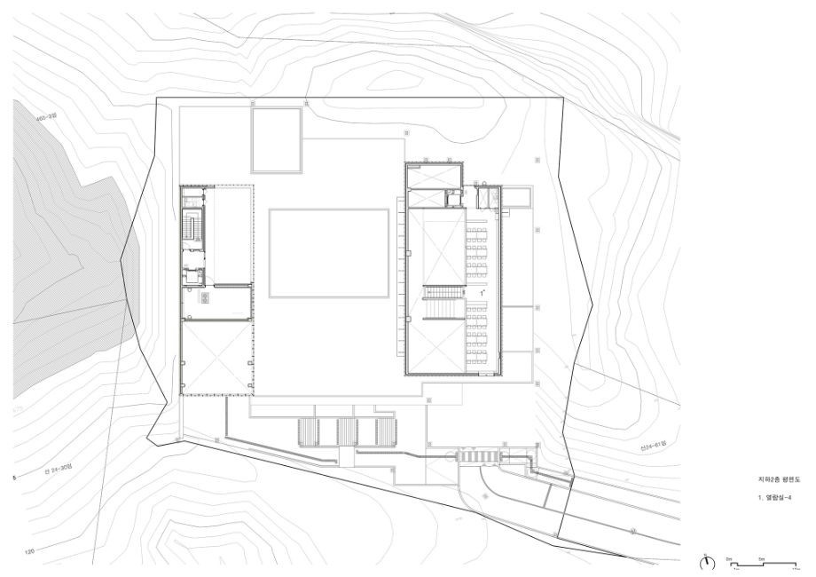
Plan_B1
중정과 후정 사이의 광정(光井)
지하 1층의 중정과 1층의 후정이 연결되는 계단식 열람 공간은 도서관의 중심 공간은 천창으로부터 유입되는 빛으로 가득 차게 된다. 도서관의 각각의 공간이 반 층씩 엇갈려 마주보고 있는 공간으로 서로가 서로를 바라보는 그리고 그 너머의 중정, 후정, 광장의 공간으로 확장되는 시선을 가진다.









Plan_1F

Plan_2F
공공건축과 통합적 완결성 확보의 과제
동천도서관은 2018년 설계공모에 당선이 된 후 2024년 사용승인을 받기까지 주변의 개발계획과 도시계획 도로변경에 따른 대지경계의 변경 등에 따른 설계변경을 수차례 진행하여 현재의 모습으로 완성이 됐다. 설계변경을 진행하면서도 최초의 설계개념을 유지하려고 하였고, 실제 많은 부분은 설계의도에 따라 진행이 됐다.
진입도로와 대지의 고저차이가 10m를 넘는 악조건과 20%의 건폐율의 한계를 극복하기 위해 지하공간을 적극적으로 이용하는 제안은 숲속 도서관으로서 대지와 하나가 되는 하나의 도서관 타입을 생산하는 결실을 얻을 수 있었다. 하지만 공공건축에서 건축가가 컨트롤 할 수 있는 한계에 대한 부분들은 여전한 아쉬움으로 남아 있다. 설계단계에서 계획되었지만, 적용이 되지 못한 가구와 사인계획들에 대한 아쉬움과 이를 통해 좀 더 통합적인 완결성을 확보하지 못한 부분에 대해서는 공공건축에 있어서 행정의 변화와 건축가의 역할에 대한 변화의 필요성을 크게 느낀다.◼︎


















