
사진




Diagram

Elevation

Elevation
동해 푸른바다로 금방이라도 빨려 들어갈 것 같은 바닷가 언덕에 서서 바다를 바라본다. 도로 넘어 해변에 위치한 단층의 낮은 오래된 집들은 조만간 사라질 것이고 이 언덕에 지어질 숙박시설은 저 푸른 파도와 정면으로 마주하게 될 것이다.



Diagram

Section

Section
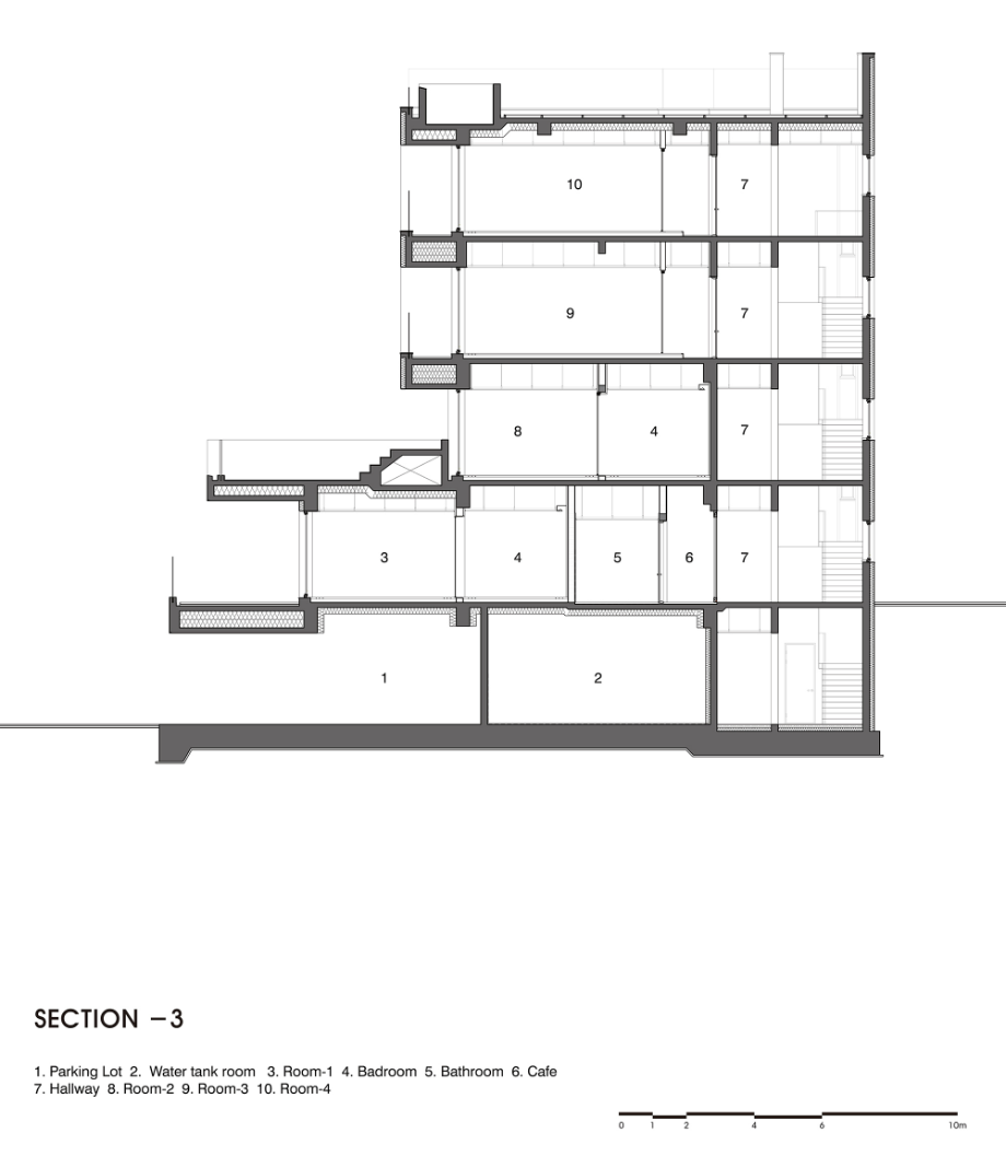
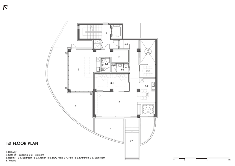
바다 방향으로 도시계획도로가 있지만 아직은 확장되기를 기다리는 상황이라 남측면의 소로를 통해서 진입동선을 계획했다. 대지는 기존의 자연지형을 온전히 가지고 있어 지형을 이용하여 도로에서 직접 진입 가능한 지하층은 주차장과 기계실을 배치하고 남측면과 서측면 경사지를 이용하여 지하에서 1층으로 연결되는 외부동선과 휴게공간을 계획했다.






Plan_BF

Plan_1F

Plan_2F
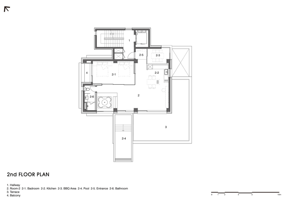
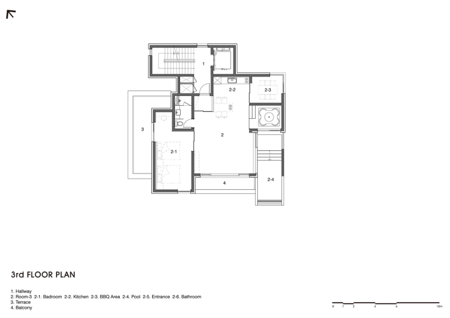
전면도로와 경사진 지형의 높이차가 2개 층 정도여서 지하층에는 주차장에서 진입하여 수직 진입동선과 연결하고 1층에 손님들을 위한 서비스 공간인 카페를 배치하고 넓은 테라스와 폴딩도어를 통해 확장 가능한 공간을 만들었다. 1층부터 4층까지 층당 하나의 독립된 객실을 만들고 모두 바다를 향해 열려있는 구조로 만들어 언제든지 파도를 만날 수 있게 했다. 1층에서 3층까지의 객실에는 외부 발코니 공간에 바다와 시각적으로 연결되는 수영장을 계획하고 수평선과 연결되게 했으며 1층 객실은 현관으로 진입하면 썬큰을 만들어 다이닝 공간에서 자연과 접할 수 있도록 배려했다. 최상층 객실은 복층의 형태로 지붕층 테라스 공간과 인피니티 수영장을 계획하여 복층 구조의 다양한 공간의 느낌을 가질 수 있도록 했다.





Plan_3F

Plan_4F

Plan_RF
동해바다와 마주한 디어웨이브는 경포대 해변에서 바다를 보고 숙박을 하는 여행객들에게 언제든지 파도에게 말을 건넬 수 있는 공간을 만들고자 했다.◼︎


















