






Diagram

Elevation

Elevation
인천 구도심인 용현동에는 '물텀벙 음식문화 특화거리'라는 골목길이 있다. 음식 거리로 지정받을 만큼 이 골목에는 아귀를 재료로 하는 음식들로 유명한 곳이다. 인천에서는 아귀를 물텀벙이라는 별칭을 사용하는데, 예전에 아귀의 생김새가 흉하기도 하고 먹지 않는 물고기였기 때문에 어부들이 바다에 그냥 버리곤 했는데 이때 물에서 텀벙~ 거리는 소리가 난다고 해서 아귀의 별칭이 물텀벙이 됐다.






Diagram

Section

Section
물텀벙 : 의성과 의태의 해석
비주거 건축물의 대표적 용도인 근린생활시설은 도시내에서 시민들의 생계와 가장 밀접한 건축물이다. 따라서 경제적 건축을 늘 고려할 수 밖에 없는 특징을 가지고 있기 때문에 도시 가로환경 측면에서 천덕꾸러기 같은 역할을 맡아올 수 밖에 없었다. 하지만 목적성을 분명히 가지고 있는 비주거 건축물일 경우에는 건축가에게 좀 더 다양한 상상력과 자유도의 한계를 넓혀주기도 한다.
물텀벙이라는 단어에서는 소리도 들리지만, 그 형태를 연상시킨다. 의뢰인 가족이 20년 넘게 운영해 온 음식점의 이름이기도 하였고 임대형 건축물이 아닌 분명한 사업목적을 가진 건축물이었다. 기존에 운영하던 식당을 재구성하는 것에 더해 자제분들이 직접 운영할 카페까지 포함된 프로그램으로 신축하여야 했기에 건축물의 파사드를 구성함 에 있어 상징성을 고민하게 된다.





Diagram

Site Plan
구도심속 지역 컨텍스트
사업부지는 '물텀벙 특화음식거리’의 초입에 위치하고 새롭게 재개발되는 아파트 주거단지와 아파트 상가건물이 바로 인접해 있고 비슷한시기에 공사가 완료될 예정이었다. 규모에 비할 바는 못되지만, 강렬한 존재감으로 자기의 목소리를 낼 수 있도록 물이 텀벙거리면서 튀어 오르는 모습을 모티브로 하여 건축물의 파사드를 재구성했고 다양한 레벨의 테라스를 통해 건물의 내부와 외부 공간을 구성하는 것이 이 프로젝트의 주요 컨셉이었다.







Diagram
감추고, 드러내는 벽
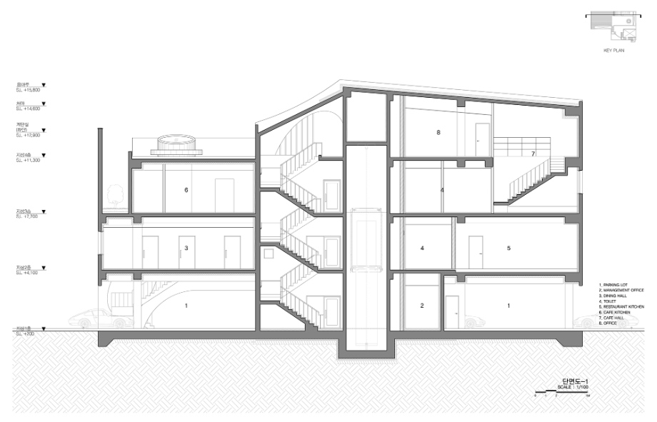
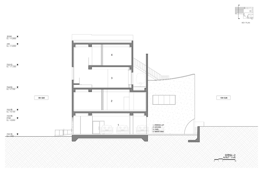
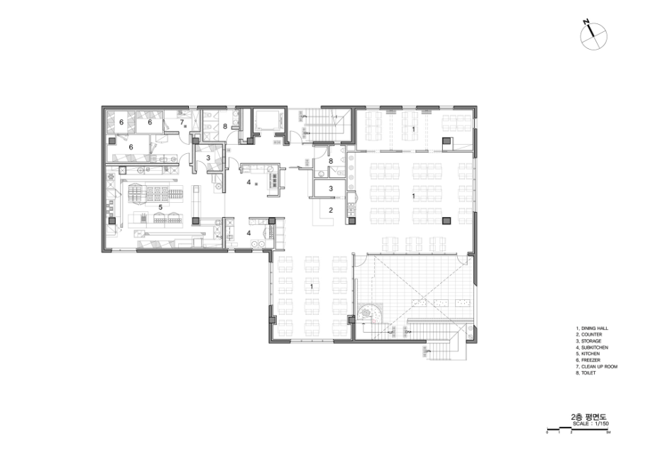
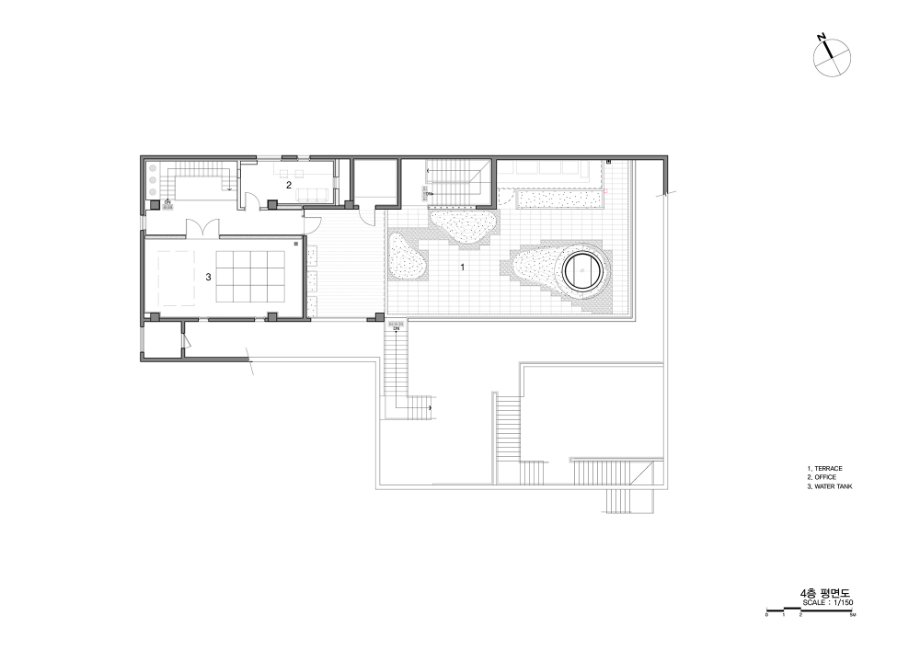
단순한 사각 형태의 평면이지만 기능을 구성하는데 있어서는 가장 효율적이다. 많은 수의 주차 댓수와 넓은 홀, 넓은 주방, 간결한 수직동선, 층마다 넓은 테라스 외부공간, 불특정 다수가 사용하는 다중이용업소에 필수적인 피난동선을 구성하는데 있어서 의심할 여지가 없는 평면의 형태이다.
하지만 가로에서 보이는 외벽의 형태구성은 이들을 적당히 감춰주고 드러낸다. 벽이라는 단어에서 바로 떠오르는 재료의 물성은 여지 없이 콘크리트의 질감이다. 건축물의 외벽이 계속적으로 이어져 건물의 속살과 외부공간을 감추고 드러내는 벽으로서 또 다른 기능을 가지고 있고 이는 도시 가로변에 새로운 긴장감을 가져다 주는 디자인적 요소이다.






Plan_1F

Plan_2F

Plan_4F
낮은 밀도로 꽉채운 지역적 위상
비교적 넓은 대지면적을 가지고 있고 250%라는 용적률을 사용할수 있었지만 100%도 안되는 용적률로 채운 낮은 밀도는 주변에 용적율을 다 사용하고 높게 지어지는 신축 건물들과는 확연히 다르다. 신축의 목적이 부동산 개발을 통한 임대의 목적이 아니기 때문에 오히려 실 사용목적에 맞게 적정규모와 밀도로 채울수 있었기에 건축적인 해석의 여지를 가질수 있었다.
오래된 음식거리와 재개발 단지의 경계에서 이 둘 을 어색하지 않게 조우할 수 있게 해주는 것 같다. 이 땅의 쓰임을 남김 없이 다 사용하였더라면 볼 수 없는 장면이였을 것이다. 오히려 낮은 밀도로 지역적 위상을 꽉 채워 드러내는 것이라고 생각했다. 이 장소에서 새로 입주하는 아파트 주민들에게 기존 상권의 건재함을 알리고 일상의 커뮤니티 공간으로서 작동되길 희망해 본다.◼︎



















