






Elevation

Elevation

Site Plan
중년 부부는 그들의 노부모와 두 자녀가 함께 거주할 수 있는 규모의 집을 의뢰하였고, 가장의 은퇴 후 이 집이 좀 더 조용한 환경에서 부부의 다양한 여가와 안락한 일상을 담아낼 수 있는 장소가 되기를 바랐다. 우리는 이들 삼대 가족 구성원 각각의 일상에 대한 존중과 집에 대한 인식 차이를 고려하여 상호 공감이 가능한 집의 원형을 제시함과 동시에 영역 구분을 세분화하여 구성원들 간 사생활이 지켜질 수 있도록 고민했다.




Section

Section
설계 초기 과정은 가족들의 생애주기를 따라 유년과 노년, 도시와 전원, 사회와 개인 사이를 오가는 여정을 반복하며 순환과 회귀의 과정에서 다양한 감각의 발원지들을 채집하고, 이를 단서로 삼았다. 부분적으로는 시골집, 마당, 골목, 담장 등의 요소를 은유적으로 표현하여 집의 곳곳에 배치하고 전체적으로는 간결한 덩어리와 단일한 색조로 통합된 질서 안에서 풍부한 경험을 담고자 했다.




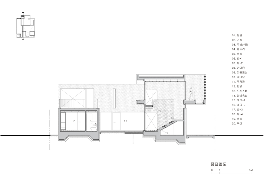
집의 배면에 설치된 철재 중량 문을 열고 들어서면 완만한 경사와 처마로 이루어진 내적 골목길이 나타난다. 골목길 끝에 설치된 옥외 수전과 정원을 마주하는 순간 다양한 감각 반응을 통해 공간의 전이를 체감하게 된다. 하얀 겉 겹을 지나 마주하는 거친 바위와 판석 그리고 흙, 나무와 갖은 풀들은 건축 이전부터 존재하던 이 땅의 속성을 간직하며 이 집이 추구하는 자연과의 조화를 구현하고 있다.







Plan_1F
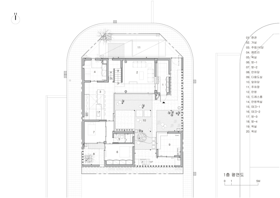
정원을 중심으로 주변에 배치된 거실과 주방, 공방은 각기 다른 바닥 레벨로 조성하여 다양한 공간 경험을 줄 수 있도록 했다. 또한, 각자의 공간에서 거리를 두고 있는 가족들이 서로 시선을 주고받으며 분산되지 않고 결합 되는 공간이 되도록 했다. 기준 바닥 레벨에서 편안한 이동이 가능한 조부모 공간은 가변벽체를 통해 두 개의 침실이 개별 공간이 되거나 통합될 수 있고, 개별 공간에 있더라도 서로 마주할 수 있는 구조의 작은 마당을 통해 정서적 구심점을 공유하도록 했다. 독립적 외부 활동이 필요한 자녀들은 마당에서 별도로 형성된 외부 계단을 통해 자유로운 출입이 가능하다. 부부 공간은 2.5층 높이에 독립적으로 조성하여 사생활을 확보하고 높은 위치에서 주변을 조망할 수 있도록 했다.






Plan_2F
시골집, 양옥, 아파트를 지나 다시 만난 가족은 지금껏 경험한 여러 집의 DNA가 새겨진 이 장소에서 익숙하고 편안한 감각과 새로움에 대한 기대감으로 함께하는 일상을 준비 중이다. 집의 밝고 하얀 경관은 가족들의 다양성을 결합하고, 마을 입구를 지나치는 많은 이들에게 환한 첫인상이 되어줄 것이다.◼︎


















