




Elevation

Section
대지
표주박과 같은 모양의 본 대지는 바로 옆으로는 국도를 접하고 있고, 주변으로는 논과 밭, 하천이 흐르며 나지막한 주택들이 어우러져 자리를 잡고 있다. 대지 동쪽으로는 구옥이 존재하나 오랜 시간 방치된 듯 사람이 거주하고 있지 않으며 북쪽으로는 콘크리트 옹벽과 대나무밭이 자리한다. 건축주는 이곳에 4인 가족이 단란하게 지낼 공간과 집처럼 보이지 않는 집을 원했다.




Site Plan
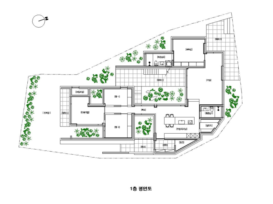
배치
주변의 가로 환경을 고려하여 도로를 따라 단층으로 건물을 나지막하게 펼치기로 하였고 표주박 형상의 부정형 토지를 효율적으로 활용하기 위하여 대지 그대로의 모습에 순응하며 건물을 배치했다. 내부의 공간들 역시 대지의 모양에 반응하며 그 공간의 성격과 스케일에 부합하게 위치가 결정 되었고, 사생활을 보호하면서 건물에 빛을 들이고 내부의 공간을 외부의 환경으로 다채롭게 채워줄 여러 정원은 내부의 각 공간들과 유기적으로 연결되며 서로 호흡한다.





모습
노출콘크리트와 하얀색 벽체로 담백하게 구성된 입면과 벽체와 벽체 사이의 틈새에 숨겨진 출입구는 보는 이로 하여금 건물에 대한 궁금증을 자아낸다. 내부공간과 외부공간이 끊임없이 반응하고 변화하는 본 건물은 마치 미지의 공간을 탐험하는 우주선과 같은 모습이다.



Plan_1F
다목적룸
외부에 가장 적극적으로 열려있는 다목적룸은 세미퍼블릭한 공간으로서 이곳에 방문하는 손님을 먼저 맞이하는 사랑채의 역할을 하며, 가족 구성원의 다양한 취미활동 등을 지원한다.


방-1, 방-2
거실과 주방을 중심으로 방-1, 방-2와 부부실을 각각 양분하여 배치하여 각각의 실 에서 거실, 주방으로의 접근성을 높였고, 프라이버시를 고려하여 개구부는 빛을 들이기 위하여 남향을 향하여만 제한적으로 설치하였다.






주방, 거실
건물 한 가운데의 정원을 중심으로 펼쳐진 주방과 거실은 서로 단차를 두고, 떨어진 듯 붙어있다. 현관을 통해 건물 내부로 들어오면 시선은 주방을 지나 거실을 거쳐 북쪽의 대나무밭까지 연결되며 그 공간의 깊이감을 드러낸다. 주방과 거실의 개구부는 정원을 향해 적극적으로 오픈하여 외부의 환경을 그대로 받아 들였으며, 이는 거주자에게는 요리와 식사의 즐거움을 더해주고 지친 일상에 편안한 휴식의 시간을 제공한다. 계절과 시간에 따라서 시시각각 변화하는 외부의 환경은 내부에 그대로 스며들어 내부를 다채롭게 장식하고 내부의 공간은 외부로 확장되어 밝고 답답함이 없다.


화장실
가족 공용의 화장실은 접근성을 고려해 주방과 거실의 한가운데에 배치하였고, 외부의 시선을 자연스레 차단해주는 북쪽의 콘크리트 옹벽을 이용하여 개구부를 통유리로 과감하게 열어 밝고 개방감이 넘치게 했다.
부부실
건물의 가장 안쪽으로 배치된 부부실은 차분하고 조용하며 남쪽으로는 빛을 들이고 북쪽으로는 대나무밭을 조망하도록 했다.◼︎


















