





비우고 채운 집_비채家
대지의 첫인상은 공원을 품고 있는 조용하고 아늑한 마을의 이미지로서 공원을 중심으로 작은 단독주택들이 서로 어깨를 맞대며 옹기종기 서있는 주택단지였다.




대지는 북측으로 주택단지 내 도로, 남측으로 보행자도로, 고등학교에 면해있었다. 북측으로 공원을 향해 갈라진 도로가 있어 공원으로의 일부 조망이 가능했다. 남측으로는 고등학교가 바로 면해있어, 소음과 시선으로부터 프라이버시를 확보하는 것이 필요해 보였다. 건축주 가족은 4인 가족으로, 20대의 자녀와 부부의 공간을 구분하길 원했고, 추후에 장성한 자녀들이 출가하는 것도 염두하고 있었다. 또한 취미생활을 즐길 다락과 필로티 주차공간을 요구했다.






Section

Section
가족의 라이프스타일을 고려한 배치
대지의 조건과 건축주 가족의 요구를 반영하기 위해 큰 공간 조닝(Zoning)에서 시작했다. 자녀들의 공간과 부부의 공간, 모일 수 있는 모두의 공용공간, 취미공간, 주차공간 등 큰 틀에서 이리저리 배치를 고민하며 내린 결정은 주택에서의 메인공간인 거실, 주방의 위치를 2층으로 올리고, 북측으로 위치하게 하는 것이었다. 메인공간을 2층에 둠에 따라 조망도 좋아지고, 요구하는 공간들의 배치도 수월하게 정리되기 시작했다.
각각의 공간들을 이동하는 동선연결을 위한 계단을 중앙에 두고 공간을 비워내 중정을 넣어 정리했다. 중정을 통한 채광 및 환기뿐만 아니라, 각각의 공간으로 이동 시 외부 중정을 보며 시선을 환기시킬 수 있도록 계획했다.









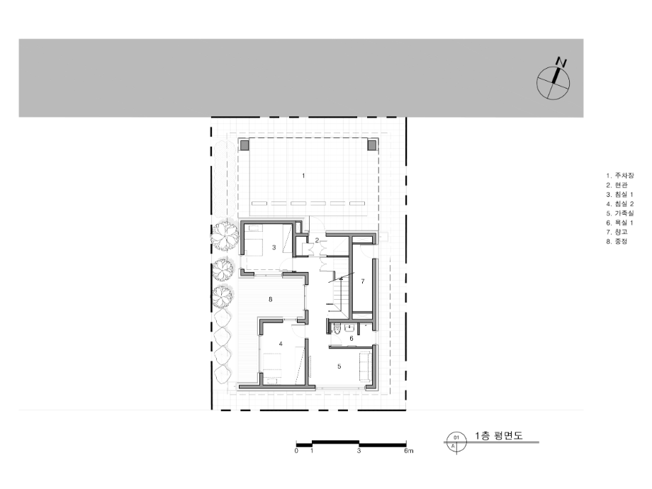
Plan_1F

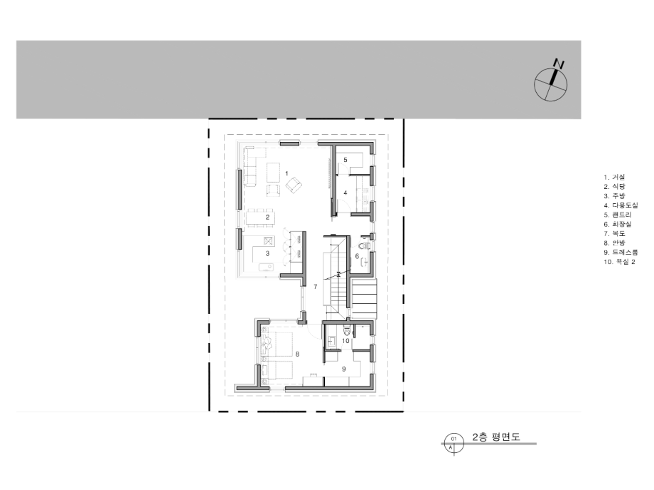
Plan_2F
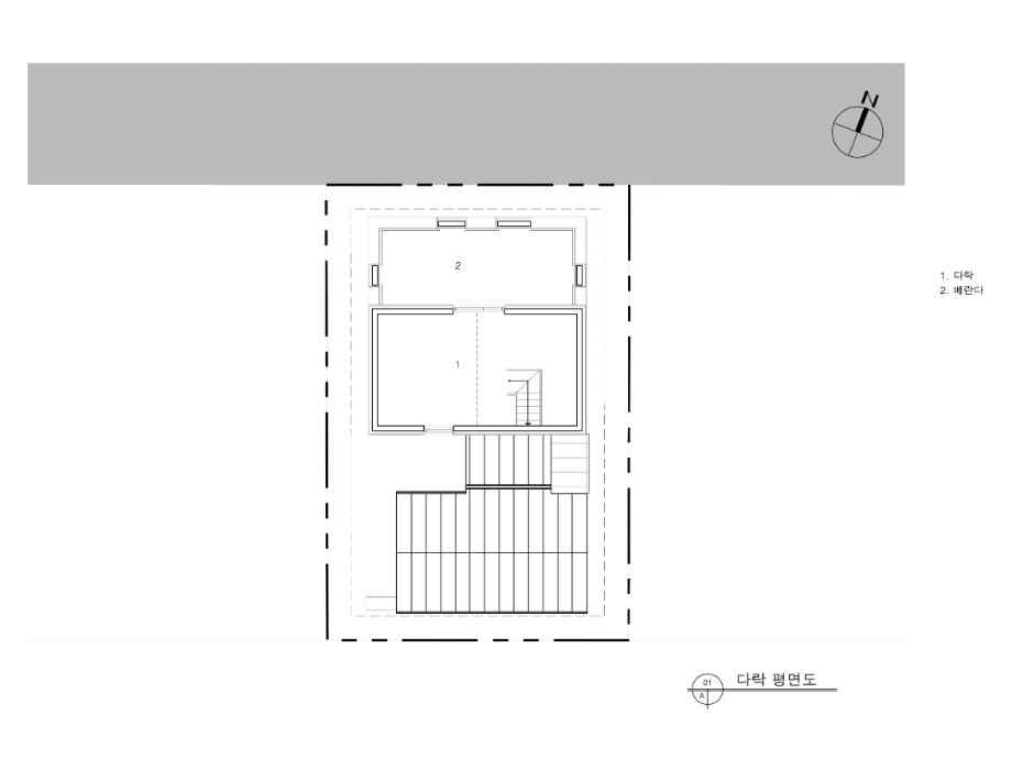
1층에 필로티 주차공간과 현관, 자녀방, 가족실을 배치하고 2층을 메인공간으로 구성하여, 거실과 식당, 주방, 다용도실 등을 하나의 공용공간 공간으로, 부부안방을 비롯한 드레스룸, 욕실 등의 마스터존을 다른 하나의 공간으로 구성했다. 2층 마스터존에서 다락으로 올라가면 음악활동을 취미로 가진 건축주만의 공간이 펼쳐지고 테라스에서 휴식을 취할 수 있도록 계획했다.
북측 공원 조망을 최대한 담기 위해 거실에 코너창을 설치하고, 중정을 향해 창을 내어 채광과 조망을 해결했다. 또한 남측으로 면한 공간에는 고창을 설치하여 고등학교로부터의 시선을 차단함에 따라 프라이버시를 확보했다. 다락 테라스 공간의 영역을 형성하는 옥상 구조물을 디자인하여 외부 시선도 일부 가려줄 뿐만 아니라 가로변에서의 외관을 강조할 수 있도록 계획했다.





Plan_LOFT
비워진 공간들과 채워지는 삶의 흔적
각각의 공간들과 연결되는 외부공간들을 고민하며 1층을 띄워 필로티 공간을 구성하고, 삶에서 잠시나마 여유를 느낄 수 있는 중정, 다락에서 연결되는 공원조망 테라스 등 대지의 조건에서 최대한 외부와 관계 맺을 수 있는 비워진 공간들을 삽입시켰다. 비워진 공간들에서 빛이 스며들고 바람이 드나들 수 있게 하고, 가족들의 다양한 삶의 모습들이 채워지길 바라며 공간을 구성했다.
비움을 통한 공간에 다채로운 삶의 모습이 담기는 집을 생각하며 지은 이름, 비우고 채운 집. '비채家'에서의 채움은 현재진행형으로 가족들의 여유롭고 풍요로운 삶의 공간으로 채워지길 기대한다.◼︎


















