
사진




Elevation

Section
노원구 상계동은 80년대 대규모 재개발로 거대한 아파트 숲으로 둘러싸인 서울의 전형적인 주거밀집 지역이다. '노원지역자활센터'가 위치한 블럭은 그동안 재개발이 이뤄지지 않아 오랫동안 낙후된 상태로 현재까지 이어져 왔다. 이곳에서 '노원지역자활센터'는 30년 이상 지역사회 공동체 구현이라는 목표를 가지고 묵묵히 역할을 해왔다. 이제는 건물수명이 다하였기에 동일한 대지에 오래된 건물을 허물고, 설계공모를 통한 공간확충 및 환경개선을 하는 신축 프로젝트이다.
'노원지역자활센터'는 80년대 재개발 시절부터 가난한 이웃들과 함께해온 노원나눔의집의 활동을 바탕으로 다양한 사업을 통해 지역의 실업과 빈곤문제를 해결하고 살기 좋은 동네를 만들기 위한 노력을 하고 있다. 저소득층, 실직자 등에게 경제적으로 자립할 수 있도록 체계적인 자활 서비스를 제공하고, 초기 상담부터 시작하여 기본교육, 근로능력 향상을 위한 전문기술교육 시행 및 일거리 제공을 통한 훈련을 시행한다. 지역 내 어르신들을 위한 경로당을 운영하여 노인복지에도 관심을 갖는다.


Site Plan
대지는 북측 좁은 4M 도로에 접하는 삼각형 형태이다. 남쪽으로는 초등학교 후면과 맞닿아 있으며 주변은 오래된 주택들로 둘러싸여 있다. 노원지역자활센터는 자활 서비스를 위한 교육실과 사무실 그리고 어르신들의 휴게공간인 경로당으로 계획된다. 이형적 부지를 효과적으로 활용하기 위해 대지 형태에 따른 두 개의 긴 변을 이용한 건물 매스 계획을 하고 남향으로 중정마당을 제안하여 외기와 접하는 면을 최대화하였다. 초등학교 방향으로 시야가 트여 있는 남향의 중정마당을 중심으로 실들이 둘러싸인 형태로 계획되어, 실내의 모든 전용 및 공용 공간에서 채광과 환기에 유리한 쾌적한 환경을 조성했다.



건물 외장 재료는 경로당으로 대표되는 1층의 경우 어르신들에게도 친숙한 재료인 점토벽돌을 사용하여 주변 환경과 잘 어우러지게 했다. 사무실과 교육실의 2~3층은 큰 볼륨의 매스 느낌을 완화 시키면서 낙후된 지역에 밝고 경쾌한 느낌을 주기 위해 백색 코팅 금속패널을 사용했다. 코로나로 인한 공사비 상승으로 인해 기존 설계공모안에서 계획되었던 휴게 옥상마당 시공은 현재 이뤄지지 못해 아쉽지만, 추후 보완되어 활발하게 사용되는 공간이 될 거라 기대해 본다.





Plan_1F

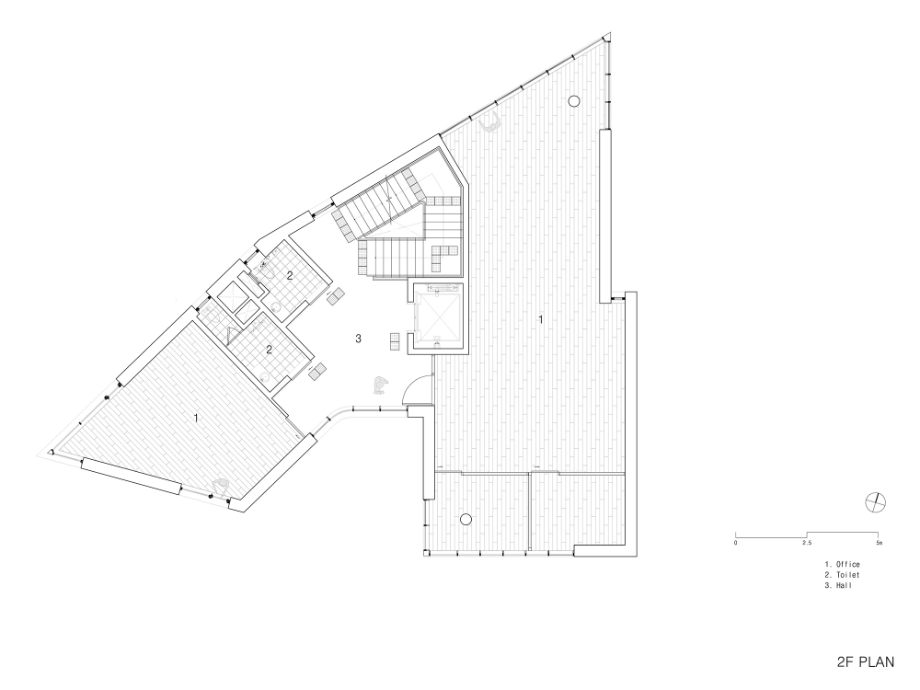
Plan_2F

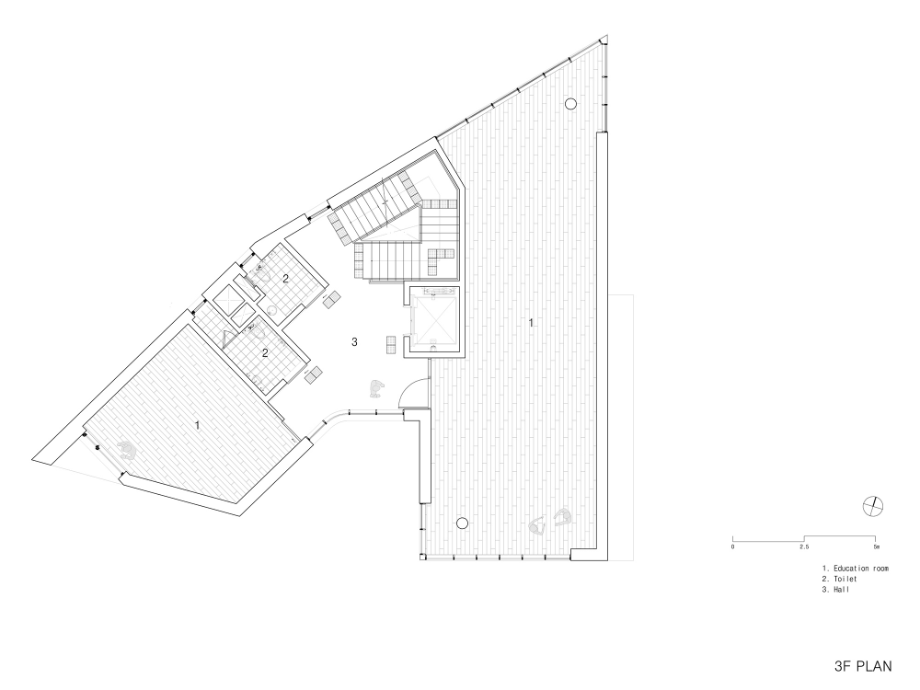
Plan_3F
1층 경로당은 할머니 방, 할아버지 방에서 중정마당인 실버그라운드로 바로 나갈 수 있게 연계하여, 어르신들이 안전하고 편안하게 실외로 공간을 확장하여 활동할 수 있도록 했다. 또한 초등학교 담벼락과 면해있는 남측으로 조망을 확보하여 초등학생들이 뛰어노는 모습을 볼 수 있도록 배려했다. 자활센터로 사용되는 2층 사무실과 3층 교육실은 가운데 공용공간을 중심으로 우측 대공간과 좌측 소공간으로 구분하여 프로그램의 용도에 맞게 활용할 수 있도록 계획했으며 타공 흡음패널을 천장과 벽에 사용하여 소음 발생에 신경을 썼다. 지하라는 태생적 한계를 가진 지하1층 사무실은 썬큰과 D.A 계획으로 채광 및 환기가 쉽게 가능한 실내 여건을 만들어 줬다.
어려운 취약계층의 안정된 경제활동을 돕고 지원하는 '노원지역자활센터'는 오랜 시간 상계동에서 존재해 왔으며 앞으로도 같은 자리에서 그 역할을 이어갈 것이다. 인간존중의 가치에 기초하여 사회 정의 실현을 위해 노력하고, 주민들과 함께 사랑하고 살기 좋은 지역공동체를 만들어 가는 노원지역자활센터가 되었으면 하는 바램이다.◼︎


















