



Elevation

Elevation

Sketch_Develop
배경
한 가족이 거주하고 있는 붉은 지붕집의 건너편에 잡초로 무성한 땅이 있다. 두 자녀가 독립한 후로 부모님은 이곳에서 새로운 삶을 시작하려 한다.




Site Plan

Sketch
대지
큰 도로에서 좁은 길로 들어오다 보면 논밭이 보이는 사거리에 동서 방향으로 길쭉한 모양으로 되어있는 필지가 있다. 주변의 건물들은 서쪽면을 긴 방향으로 배치가 되어있는데 이는 서쪽으로 경사가 낮게 되어있는 지형의 특징을 반영한 것으로 보인다. 이러한 지형의 특징으로 인해 우리는 남측의 채광과 서쪽의 뷰를 모두 확보해야 한다는 조건이 자연스럽게 생겼다.


재료
단순함을 추구하는 건축주의 취향을 고려해 외부의 재료는 벽돌과 금속 두 가지로 결정했다. 축주와 다양한 재료들을 참고하여 매지를 시각적으로 가릴 수 있는 무매지 벽돌로 결정하여 시공했다. 두겁 및 창호 프레임은 아연판으로 시공했다.




Section

Section
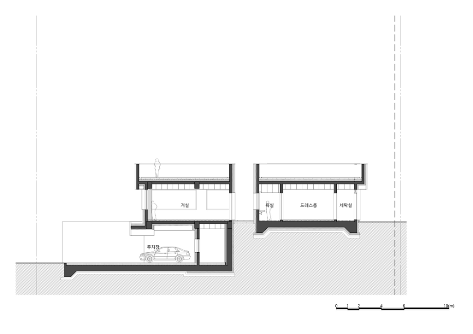
공간 계획
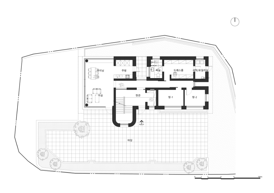
첫 미팅 당시 건축주의 요구사항 중 가장 기억에 남는 것은 누워서 자연과 하늘을 바라볼 수 있는 공간을 원한다는 것이었다. 기본적으로 모든 공간에 창호를 통하여 외부를 바라볼 수 있게 계획했으며, 공용공간, 개인공간, 욕실 등 모두 시야의 개방감을 위하여 허리 높이 이상으로는 상부장 없이 창으로 계획했다. 주변에 나무 등 자연환경이 조성 되어있어, 최대한 그 환경들을 집으로 끌어들이고 싶었다. 현관에서 들어와서 보이는 외부공간, 복도를 지나다 보이는 외부 공간 등 집 내부의 곳곳에서 외부를 바라볼 수 있도록 시각적으로 연장되는 곳에 창호를 설치하여 내부에서도 자연을 느낄 수 있도록 계획했다.
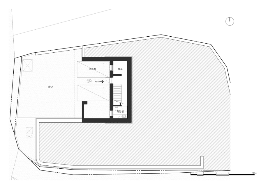
건축주는 대부분 차량으로 이동하기 때문에 주차장에서 내부를 통하여 현관으로 진입할 수 있는 내부 동선을 계획했다. 대지의 고저차를 활용하여 지하 1층과 지상 1층 모두 주차가 가능하다. 현관으로 진입 시 정면에는 창을 통한 외부의 모습이 보이며, 왼쪽(서쪽)으로 보면 거실, 주방 등 공용공간이 위치하여 있으며, 오른쪽(동쪽)으로는 드레스룸, 안방 등 사적인 공간들을 배치했다. 거실과 주방, 다이닝을 건물의 남쪽, 서쪽으로 배치하여 채광 확보와 서쪽 뷰를 바라볼 수 있도록 했다. 거실과 주방, 다이닝 공간은 천장까지 창을 연장하여 외부를 더 잘 느낄 수 있도록 계획했다.






Plan_B1

Plan_1F
건축사의 한마디
건물의 이름은 지역의 이름을 따서 '대곶주택'이라고 정했다. 단독주택의 특성상 평생 이 집에서 거주할 목적으로 설계되었는데 그러다 보니 건축주의 신체정보부터 생활 패턴, 동선, 취향 등 알아가는 과정이 필요했다.
많은 미팅을 통하여 주변 환경을 지켜보았으며, 설문조사와 대화를 통하여 건축주를 파악하였다. 계별로 매스 디벨롭이 된 것 이외에 내부의 공간 구성 및 입면 컨셉은 설계 초기부터 변하지 않고 준공까지 이어졌다. 공사 중간에 수없이 바뀌는 프로젝트에 비해 최초 컨셉과 방향성이 뚜렷하게 정해져서 중심을 잡고 끝까지 진행할 수 있었다.
설계자가 빈 그릇을 만들어 주었으니, 이제는 건축주가 그 공간을 행복한 삶으로 채워주길 바란다.◼︎


















