





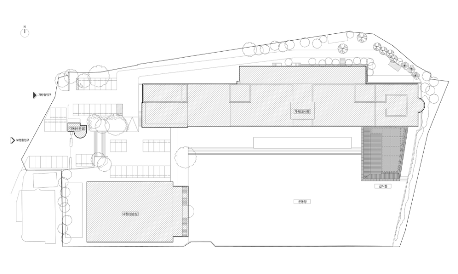
Site Plan

Elevation

Elevation
기존과 새로움의 관계 맺기
본 프로젝트는 지하에 위치하여 환경이 열악했던 급식공간을 재배치하여 기존 교사동 1층에 급식실과 학생식당을 증축 및 리모델링하는 작업이다. 증축되는 건축이 학교를 둘러싼 불암산, 1994년 준공된 붉은벽돌의 교사동, 그리고 탁 트인 운동장과 어울리며 새로운 관계를 맺어 학생과 교직원에게 쾌적한 급식공간과 휴게공간을 제공한다.




Section

Perspective view
어울림으로 새로워진 교육공간
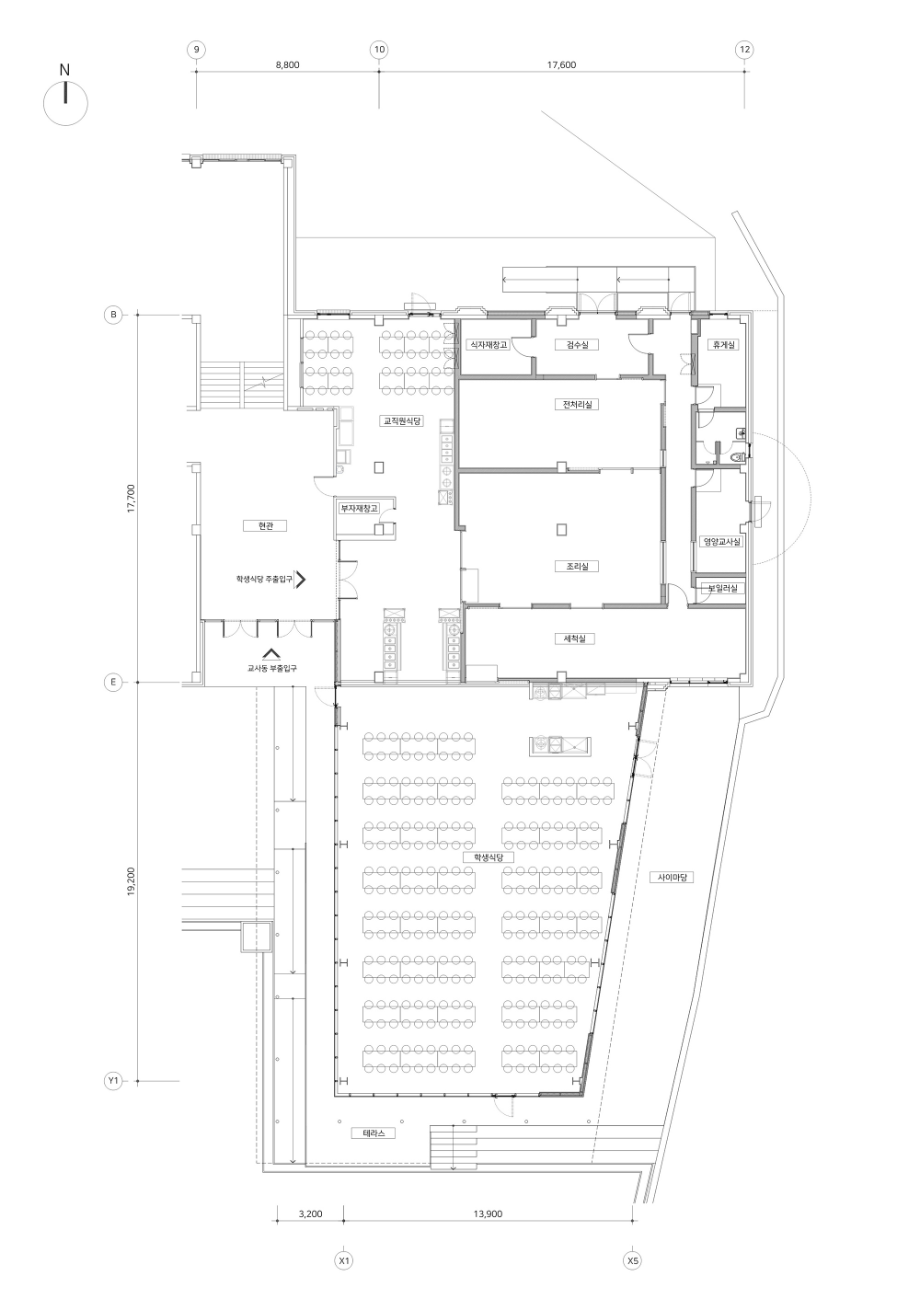
신설할 급식실과 학생식당을 모두 증축하면 좋겠지만, 건폐율의 한계로 일부 시설은 기존 건물에 배치해야 했다. 학교는 식당을 천장 높이가 3.3m로 낮은 기존 건물에 배치하고 주방을 운동장 쪽으로 증축할 계획이었다. 주방은 기계 설비를 위해 높은 천장이 요구되므로 합리적인 선택 같다. 하지만 우리가 중요하게 생각한 것은 학생식당이 자연스럽게 외부공간과 연결되어 불암산과 운동장의 전망을 즐길 수 있는 열린 공간으로 만드는 것이었다.
우리는 주방 대신 식당을 운동장 방향에 배치하는 것을 제안했다. 불암산의 풍경, 건물과 운동장의 높이 차이(약2m), 그리고 대지 우측의 옹벽을 고려해 식당 주변에 이동 동선, 휴게계단, 테라스, 그리고 사이 마당을 배치했다. 또한, 남향의 휴식 공간과 사용자의 움직임을 커버할 수 있도록 넉넉하게 처마를 설치했다. 식당이 외부와 접한 세 개의 입면에 투명한 창문을 설치해 실내가 자연스럽게 외부로 확장되고 연결됐다.
다음으로 식당의 볼륨을 세심하게 계획했다. 기존 건물에 붙여서 증축하기 때문에 식당은 층고가 낮은 답답한 공간이 되기 쉬웠다. 그래서 운동장으로 이어지는 축에 맞춰 천장 높이 변화를 줄 수 있는 고창을 계획했다. 이를 통해 충분한 채광과 환기가 원활한 입체적인 공간이 되었다. 식당에 들어서면 부드러운 빛이 고창을 통해 내려온다. 운동장을 향한 긴 빛줄기가 식당과 외부 공간을 시각적으로 연결한다. 깊은 루버가 설치된 고창의 매스(mass)는 수평적인 건물과 처마의 입면 비율을 보완하여 형태적 완성도를 높였다. 주변 환경과 적극적으로 관계를 맺는 개방적인 학생식당은 식사뿐 아니라 다양한 용도로 활용되는 다목적 공간으로 경직된 학교에 여유를 주는 매개체가 됐다.







Diagram

Diagram
새로운 어울림
서울은 산의 도시이다. 학교는 바위 절벽이 웅장한 불암산 아래 자리했다. 처음 학교에 방문했을 때 우뚝 선 불암산과 붉은 벽돌의 일자형 교사동 그리고 건물보다 2m 정도 낮은 운동장의 관계가 매우 어색해 보였다. 학교만의 지리적 장점을 살려 증축되는 급식실이 주변 환경을 존중하면서 관계를 개선하여 조화로운 풍경을 만들고자 했다.
주방이 아닌 학생식당을 운동장 방향으로 배치해서 증축건물 주변으로 다양한 외부 휴게공간을 조성했다. 식당 주변으로 운동장을 바라보며 여유 있게 걸을 수 있는 경사로와 이동 동선, 햇빛을 즐기며 휴식할 수 있는 테라스와 휴게계단, 그리고 개나리가 만발하는 옹벽 옆 아늑한 사이 마당을 조성했다. 기존 건물과 대비되는 새로움을 위해 철골구조에 투명한 창호를 설치하고 기단부에 외부 휴게공간과 동선을 계획했다. 그리고 이동 동선과 휴게공간을 덮어줄 넉넉한 길이의 현대적인 수평의 처마를 설치했다.





Plan_1F
전형적인 학교 공간의 경직된 틀을 깨는 새로움을 더하고자 운동장으로 뻗어가는 축에 맞추어 고창(Skylight)을 계획했다. 고창에서 내려오는 부드러운 빛과 입체적인 공간은 이용자에게 특별한 경험을 제공한다. 고전적인 방식으로 고창에 설치한 깊숙한 루버는 자연광 흐름을 시각적으로 인지시키고 공간에 리듬감을 더한다. 이러한 내부의 계획은 외부의 형태를 완성하는 합의점과 연결된다. 고창의 매스(Mass)는 입면 비례를 보완하고 동시에 기단부와 처마의 기다란 형상과 대응되는 상부의 면(Solid)을 구성하여 형태적 안정감을 준다. 증축부는 기존 건물과 다른 새로운 레이어로 명확히 구분됐다.
우리는 학교 공간이 기존 건물의 '경직됨'에서 벗어나 새로운 시대의 요구에 맞는 창의적인 공간으로 변화시키고자 했다. 또한, 기존 주변 환경과의 ‘어울림’을 만들고 전통적인 건축 요소들을 현대적으로 해석한 요소들로 다층적인 건축을 만들었다.◼︎



















