
사진
시공사



Elevation

Elevation
젊은 부부는 모친과 어린 두 자녀가 함께 거주할 수 있는 규모의 집을 의뢰했다. 이들의 집 짓기는 아파트 환경에서 아이들을 양육하며 하루하루 층간소음에 대한 스트레스로 버티는 일상의 반복 중 아이들에게 더 나은 환경을 만들어 주고자 하는 결단으로 시작됐다.
패션과 디자인, 식 공간 연출 등 각자의 전문 분야에서 학업과 경력을 쌓으며 남다른 심미안을 지닌 가족들의 요구는 섬세하고 구체적이었다. 그러면서도 취향이나 구조적 호불호, 조명 색온도까지 제시하는 그들의 적극성이 외려 다양한 가능성을 제한할 수 있다는 염려에서 인지 건축가를 전적으로 신뢰하겠다는 뜻을 피력하기도 했다.



Section

Section
부지는 광주전남 공동혁신도시 빛가람동 단독주거지에 위치한다. 도시 중심이 너른 호수공원과 전망대를 위시하여 볼륨 있는 상업건축물과 관공서 및 고층아파트들로 구심력을 형성하고 있는 반면에 집이 위치한 단독주거지는 도시의 가장자리에서 기존 농경지와 산 능선 방향으로 시야가 확장되며 주변의 목가적인 분위기와 맞닿아 있다. 날씨 좋은 날은 집 안에서 멀리 영암 월출산의 장관을 감상할 수 있다.




블록의 모서리에서 전면이 삼각형으로 구획된 집의 외형은 부정형의 경계를 따라 밝은 벽돌을 쌓아 올린 형태로 이곳의 장소적 특징을 드러낸다. 이와 함께 사생활 확보에 민감한 거주인을 위해 시선 차폐 역할을 하도록 들어 올려진 텃밭을 전면에 조성하고 이에 따라 높아진 경계벽의 위압감을 상쇄시키고자 다양한 위치에 'Slit'을 설치했다. 'Slit'은 높낮이가 제각각인 매스와 벽체 그리고 내부공간의 구석구석이나 건축의 세부요소들 사이에서 다양한 스케일로 등장하며 빛과 바람이 넘나드는 통로가 되고 실 환경을 제어할 수 있는 장치로서 기능한다.
각기 다른 세 개의 성격으로 조성된 전면 옥외영역은 각각이 맞닿은 내부 실과 직접적 관계를 맺으며 거실의 연장, 텃밭, 명상적 공간으로 활용된다. 외부활동 시에도 사생활이 지켜질 수 있도록 눈높이 이상의 벽을 쌓고 'Slit'을 통해 빛과 바람이 자유롭게 드나들 수 있도록 하였으며, 내, 외부 동선이 순환하는 막힘없는 공간으로 계획했다.







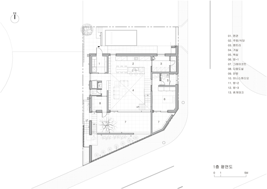
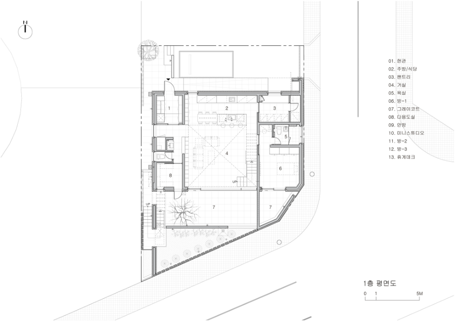
Plan_1F

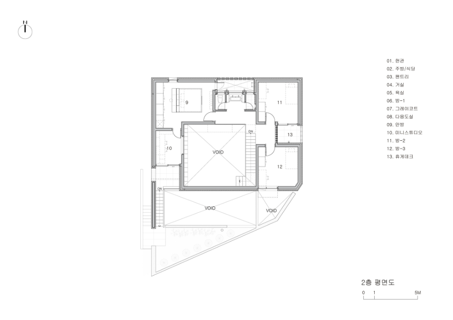
Plan_2F
간결한 조형, 비 일상의 내재화, 스트레스 없는 집과 같은 요구조건을 기점으로 하는 이 집의 설계는 'LDK(Living, Dining, Kitchen)'로 명명되는 거실과 주방, 식사 영역을 집의 중심에 두고 진행됐다. 'LDK'는 1층의 전면마당과 측 후면의 서비스영역, 2층의 침실 공간들에 위요된 구조로 집의 전체 분위기를 이끌어 간다. 가장 넓은 체적을 점유하고 있는 이곳은 대화와 책 읽기를 선호하는 가족들의 모임 장소이며 마당과 주방, 식탁, 2층까지 시선이 닿아 아이들이 부모의 관심 안에서 마음껏 뛰거나 소리 내며 발산의 자유를 누리는 곳이다. 이를 위해 소파와 TV를 배제하고 벽면 가득 찬 서고를 제작했으며 자연광을 적극적으로 유입해 밝고 활기찬 분위기로 조성했다.
집은 풍부한 자연광과 다양한 간격으로 맞물린 부드러운 공간들을 벽돌의 성채가 감싸안고 있는 듯한 내밀한 모습을 하고 있다. 가족들이 각자의 일생 중 가장 온화하고 밝은 볕이 드리우는 이 시절을 함께할 때, 견고하고 섬세한 감각의 총체로서 계획된 이 집이 더없이 의미 있는 장소가 되어주기를 바랐다.◼︎


















