





Site Plan
산 중턱에 위치한 대지로 멀리 능선이 중첩되어 풍경이 되어 들어온다. 해를 등지고 마주하는 산세는 밝고 다채로운 빛을 자아내며 오롯이 자연을 느끼게 된다. 대지의 가장 높은 곳과 낮은 곳의 차이가 2층 높이보다 심하다. 높은 곳으로 길이 면하지만, 집이 놓일만한 평평한 땅은 협소하다. 마당을 품기에도 부족한 조건의 대지는 산 그 자체다. 처음 건축주와 대지를 보면서 들었던 생각은 자연을 훼손하지 말고 있는 그대로 받아들이는 태도, 자연 속에서 삶의 자세를 어떻게 하고 그런 건축은 어떠해야 할까라는 문제의식에서 출발했다.





Elevation

Elevation




Section

Section
대지의 높은 면과 낮은 면의 경계에 콘크리트 지형을 구축한다. 경사면에 집을 필로티 구조로 지면에서 띄워 일자로 배치한다. 훼손을 줄이고 자연 그대로 순응하는 집이 될 것이다. 설계가 완료되고 인근 대지 조성 공사로 낮은 면의 경사 마당은 평평하게 성토되고 필로티 공간을 활용하는 방안이 검토되었다. 2층의 매스는 조망권 분쟁을 피하고 마당을 분절하는 십자형으로 들어 올려진다.





십자형 배치는 네 개의 성격이 다른 마당으로 나뉘고 집의 가장 으뜸인 공간이 된다. 조망 방향에 따라 색다른 경치가 이 집의 분위기를 좌우한다. 실내 모든 공간에서 다른 풍경을 감상하고 모든 마당에 집은 배경으로 관계한다. 진입하는 마당으로 주차장과 대문은 살면서 마련하겠다는 건축주의 요구다.
콘크리트 지형은 집을 띄우기도 하고 마당을 감싸며 입면이 되기도 한다. 경사지를 고려한 공법이자 날것 그대로 사용하여 자연의 재료로 치환되는 시간성을 담아보고 싶었다. 강한 인공의 재료 위에 목구조의 집이 얹어지고 인공 지형에 자연의 재료가 박혀 두 물성이 스스로 존재한다.








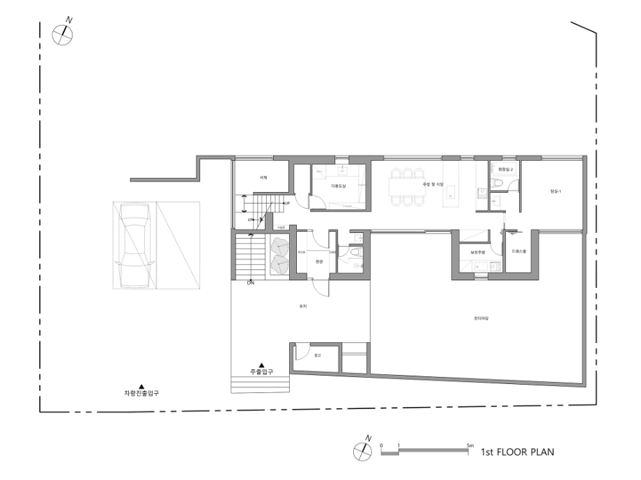
Plan_1F

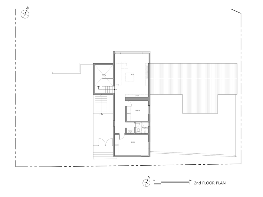
Plan_2F
건축주가 필요로 하는 공간과 마당을 편집한다. 조망하기에 좋은 공간들과 상대적으로 그렇지 않은 공간. 이용 빈도가 높은 주로 부부가 이용하는 공간들과 게스트를 위한 공간들이 수평 수직으로 조닝(Zoning)된다. 건축주 부부는 같이 있지만 독립된 영역의 공간을 요구한다, 거실은 남편의 영역, 다이닝과 주방은 아내의 영역으로 각각 2층과 1층에 분리해서 배치한다.◼︎


















